
2023昆明十个公租房项目信息介绍
普惠园、吉惠园、颐惠园、 青惠园、泓清惠园、盛惠园、子君村、俊福花城、铭惠园和泽惠园 。
普惠园
普惠园项目位于昆明市五华区西北片区陈家营地块,东邻王家乔迁村并点安置房地块、五华区市政绿化景观广场园博园、轨道4号线终点站 , 西邻西北三环路,南有已建成的楼盘中晟溪城,北邻社区级规划道路 , 周边市政配套完善 。

文章插图
(图源:昆明公租房公司,下同)
房源数: 542套
户型: 一室户型458套、两室户型84套
租金基准价: 13.00元/平方米/月
户型及面积
一室建筑面积36.71—54.28平方米
两室建筑面积64.38—70.56平方米

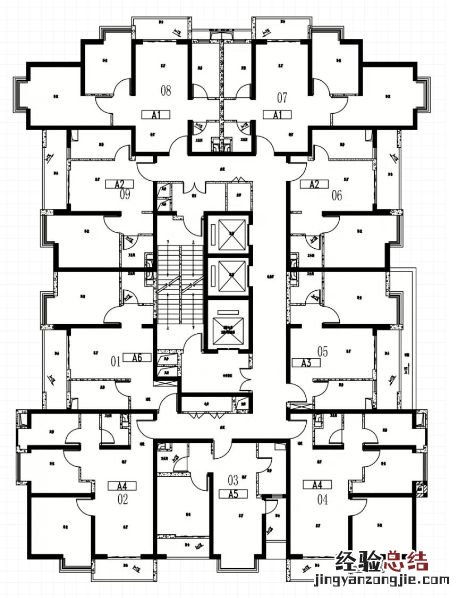
文章插图
一室户型楼层平面图
项目周边配套
01、教育配套: 五华区贝尔乐幼儿园、钟英实验学校 。
02、医疗配套: 云南省阜外心血管病医院、延安医院高新分院门诊部、昆明莲花骨伤科门诊部 。
03、商业配套: 小区配建了惠民标准化菜市场、食惑美食城、博得购物中心 , 小区周边汇集了凯悦特邻里商业中心、吾悦广场、中铁时代广场等多个商业综合体 。
吉惠园
吉惠园项目位于五华区泛亚新区大漾田村 ,东至轨道交通4号线停车?。现廖寤?7号路,西至西北三环,北至大漾田村 。小区内配套设施齐全,配建15班幼儿园一所,以及商业设施和社区服务中心 。

文章插图
房源数: 174套
户型: 一室户型146套、两室户型28套
租金基准价: 13.00元/平方米/月
户型及面积
一室户型(含一室一厅)建筑面积42.8—54.3平方米
两室户型建筑面积67.71—69.92平方米

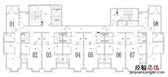
文章插图
一室户型楼层平面图

文章插图
二室户型楼层平面图
项目周边配套
01、教育配套: 龙苑金贝贝幼儿园、钟英实验学校 。
02、医疗配套: 云南省阜外心血管病医院、延安医院高新分院门诊部、昆明莲花骨伤科门诊部 。
03、商业配套: 小区周边汇集了食惑美食城、博得购物中心、凯悦特邻里商业中心、吾悦广场、中铁时代广场等多个商业综合体 。
颐惠园
颐惠园项目位于昆明市北市区大波村地块 。该项目交通条件优越,附近有西北绕城东连接线、昆曲高速、轨道2号线北部汽车站、北部客运站等 。项目内配套设施齐全 , 配建9班幼儿园一所,12班幼儿园一所,36班小学一所 , 以及商业设施和社区服务中心 。

文章插图
房源数: 610套
户型: 一室户型546套、两室户型64套
租金基准价: 12.00元/平方米/月
户型及面积
一室户型建筑面积37.78-57.34平方米
两室户型建筑面积54.17-70.78平方米
一室户型楼层平面图
项目周边配套
01、教育配套: 艾尔西辰颐幼儿园、昆明市盘龙区金实小学(源清校区) 。
02、医疗配套 昆明市第二人民医院、昆明市盘龙区龙泉中心卫生院 。
03、商业配套: 汇集滇客隆超市、惠铭生鲜超市等商业业态 。
青惠园
青惠园项目位于盘龙区东白沙河片区,南邻城市主干道寺瓦路,东邻东绕城快速路 。

文章插图
房源数: 68套
户型: 均为一室户型
租金基准价: 11.50元/平方米/月
户型及面积
一室户型建筑面积43.01平方米
青惠园13-16栋标准平层平面图

文章插图
一室户型楼层平面图
项目周边配套
01、教育配套: 两面寺小学、白沙河中学 。
02、医疗配套: 盘龙区青龙社区卫生服务站 。
03、商业配套: 毗邻花之城商圈 。
泓清惠园
泓清惠园项目位于昆明市盘龙区北部羊肠片区 ,位于滇投一级开发范围内,东邻昆曲高速公路 。

文章插图
房源数: 73套
户型: 均为一室户型
租金基准价: 15.00元/平方米/月
户型及面积
一室户型建筑面积43.01平方米

文章插图
一室户型楼层平面图
项目周边配套
01、医疗配套: 昆明市第一人民医院甘美医院、昆明市盘龙区龙泉中心卫生院 。
02、商业配套: 周边汇集缘福多购物中心 、中汇商业中心等商业业态 。
没想好选哪个项目的申请人,可以通过扫描以下二维码,一键了解泽惠园、盛惠园、青惠园等10个公租房项目的户型、价格、房源信息、周边配套信息,省时省心又省力 。
盛惠园
盛惠园项目位于昆明市官渡区东三环路方旺片区, 西距东三环250米,东、南、北侧均为城市规划道路,其中东侧有航空供油站169油库和天文观测台,北侧规划为方旺片区回迁安置房 。该项目交通便利,区位条件好,小区内配套设施齐全,配建15班幼儿园一所,以及商业设施和社区服务中心 。中、小学校结合片区预留教育设施地块内设置 。

文章插图
【2023昆明十个公租房项目信息介绍 2023昆明十个公租房项目信息介绍图】房源数: 336套
户型: 一室户型278套、两室户型58套
租金基准价: 13.00元/平方米/月
户型及面积
一室户型建筑面积36.61-52.47平方米
两室户型建筑面积61.85-75.51平方米

文章插图
紫色为两室户型楼层平面图
其余为一室户型楼层平面图
项目周边配套
01、教育配套: 盛惠幼儿园 。
02、医疗配套: 昆明市官渡区人民医院 。
03、商业配套: 汇集滇客隆超市、惠铭生鲜超市等商业业态 。
子君村
子君村项目位于昆明市官渡区矣六乡子君村片区,地处昆明东南区的腹地位置,南邻广福路,东面800米为昆玉高速公路,西面为彩云路及轻轨1号线 。配建18班幼儿园、子君中心小学 。

文章插图
房源数: 45套
户型: 一室户型19套,两室户型26套
租金基准价: 12.00元/平方米/月
户型及面积
一室户型建筑面积37.72-48.13平方米
两室户型建筑面积63.98-66.59平方米

文章插图
黄色为一室户型楼层平面图
其余为两室户型楼层平面图
项目周边配套
01、教育配套: 小区内配建18班幼儿园、子君中心小学 。
02、医疗配套: 官渡区矣六子君社区卫生服务站、星耀医院 。
03、商业配套: 周边汇集星天地商业广场、新螺蛳湾商贸城等商业业态 。
俊福花城
俊福花城项目位于昆明市官渡区矣六街道普自村以东 。该项目区位极好,交通、市政配套完善,小区内配套设施齐全 , 配建了商业设施和社区服务中心 。中、小学校及幼儿园结合片区预留教育设施地块内设置 。

文章插图
房源数: 195套
户型: 一室户型168套,两室户型27套
租金基准价: 12.00元/平方米/月
户型及面积
一室户型建筑面积47.79-58.37平方米
两室户型建筑面积63.98-69.99平方米

文章插图
K2为一室户型楼层平面图

文章插图
两室户型楼层平面图
项目周边配套
01、教育配套: 云南师范大学附属官渡小学、云南师范大学附属官渡中学 。
02、医疗配套: 官渡区矣六街道花田社区卫生服务站、亚东医院 。
03、商业配套: 周边汇集螺蛳湾国际商贸城、云南多能商贸等商业业态 。
铭惠园
铭惠园项目位于昆明市官渡区五腊片区, 东临绿色房地产,西临俊福花城 , 净用地面积约32.3亩 。项目区位极好,交通、市政配套完善,小区内配套设施齐全 , 中、小学校及幼儿园结合片区预留教育设施地块内设置 。

文章插图
房源数: 33套
户型: 均为一室户型
租金基准价: 12.00元/平方米/月
户型及面积
一室户型建筑面积41.41-42.28平方米

文章插图
除绿色外均为一室户型楼层平面图
项目周边配套
01、教育配套: 蜡笔树乐迪幼儿园、关锁中心学校、官渡区矣六中学 。
02、医疗配套: 云南省第三人民医院联盟医院 。
03、商业配套: 周边汇集嘉家乐购物中心、宏仁村农贸市场等商业业态 。
泽惠园
泽惠园项目位于南市区老海埂路片区,北侧紧邻龙江公园,东邻盘龙江,西至佳湖花园,南接大商汇 。项目区位极好,交通、市政配套完善,小区内配套设施齐全,配建12班幼儿园一所,18班小学一所,以及商业设施和社区服务中心 。

文章插图
房源数: 119套
户型: 一室户型107套、两室户型12套
租金基准价: 17元/平方米/月
户型及面积
一室户型建筑面积39.21—66.23平方米
二室户型建筑面积49.64—70.06平方米

文章插图
一室户型楼层平面图

文章插图
二室户型楼层平面图
项目周边配套
01、教育配套: 爱贝幼儿园、海青外国语学校 。
02、医疗配套: 昆明同仁医院、云南省中医院(滇池院区)、昆明市儿童医院 。
03、商业配套: 小区配建了惠民超市、爱心食堂、药店,小区周边有大商汇、万达购物广场、爱琴海购物公园、南亚风情第一城、公园1903等多个商业综合体 。
