
户型图
A系列
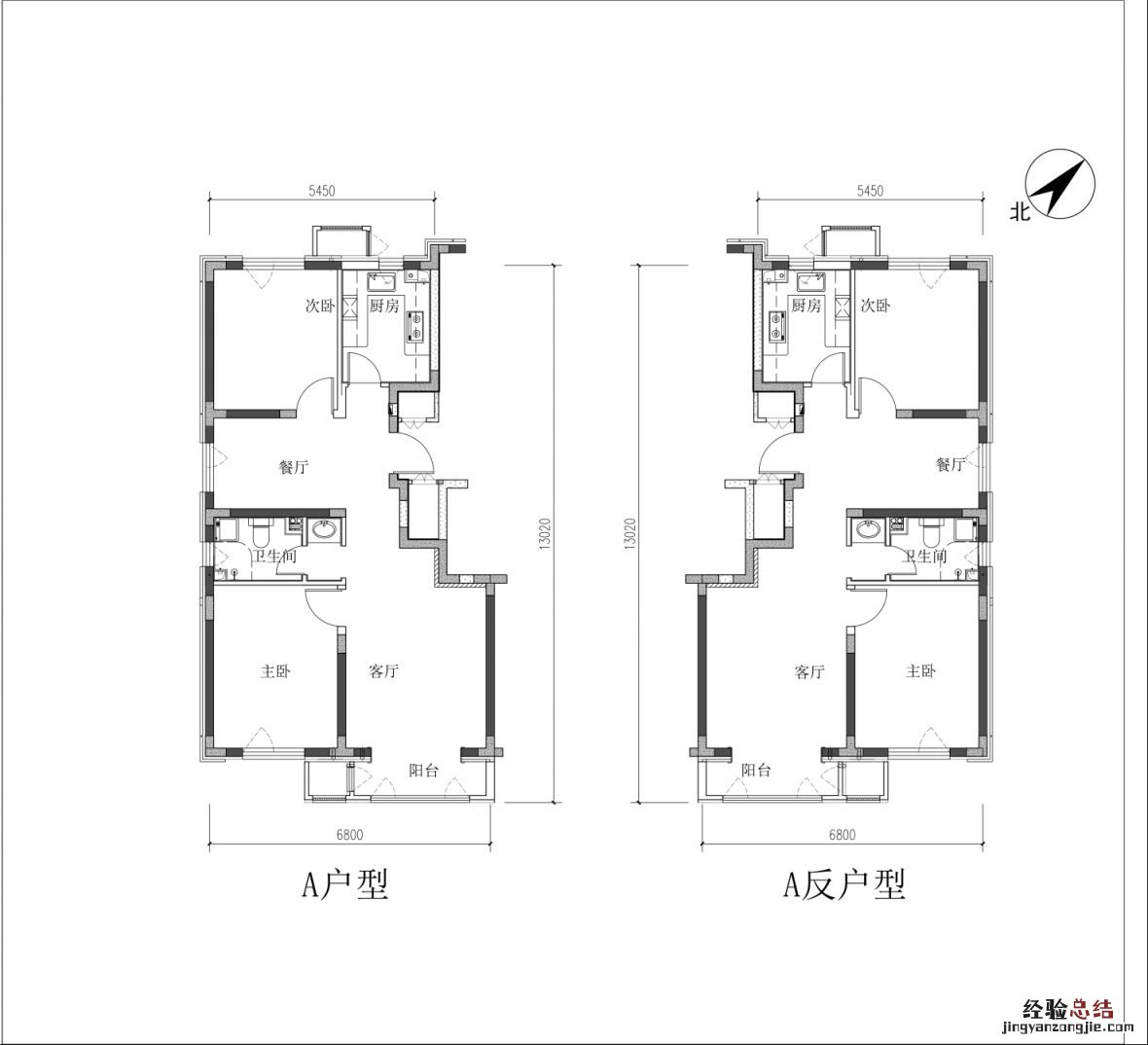
A户型(含正反):两室两厅一卫(建筑面积约89平方米)

文章插图
图源:北京市大兴区住房和城乡建设委员会
户型位置:
8号住宅楼1单元1-10层
3号住宅楼2单元1-10层
2号住宅楼1单元1-10层
2号住宅楼2单元1-10层
2号住宅楼3单元1-10层
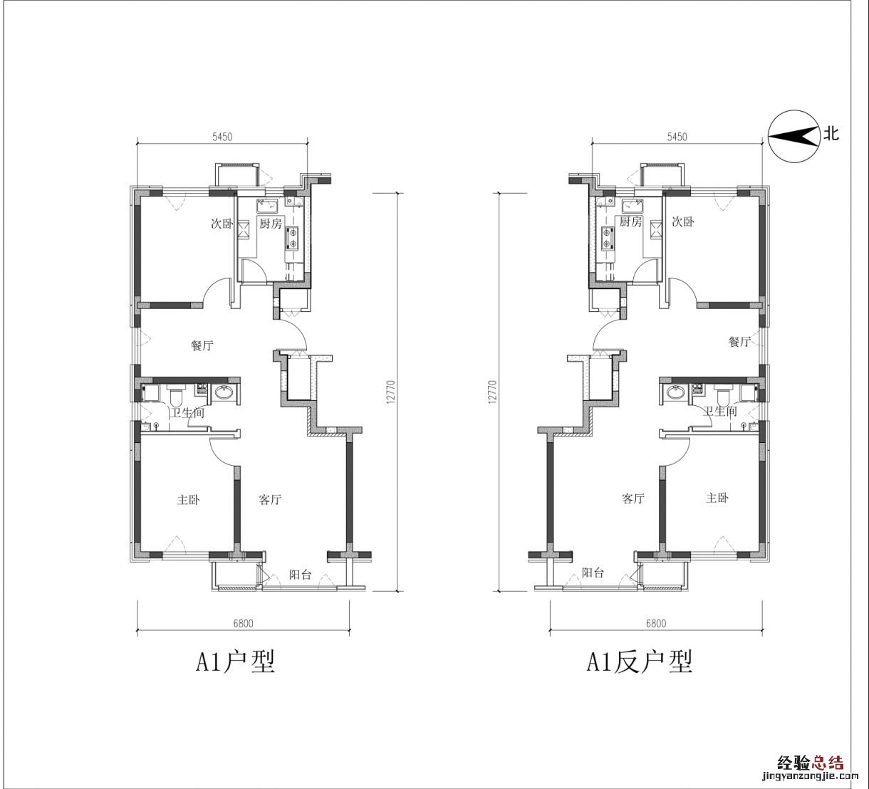
A1户型(含正反):两室两厅一卫(建筑面积约89平方米)

文章插图
图源:北京市大兴区住房和城乡建设委员会
户型位置:
7号住宅配套楼1单元2-10层
7号住宅配套楼2单元2-10层
7号住宅配套楼3单元2-10层
7号住宅配套楼4单元2-10层
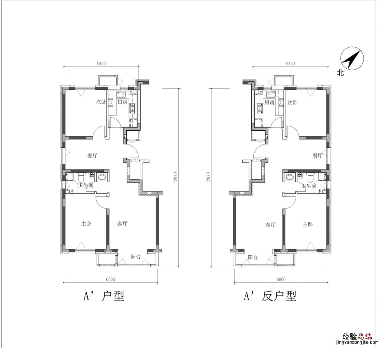
A’户型(含正反):两室两厅一卫(建筑面积约89平方米)

文章插图
图源:北京市大兴区住房和城乡建设委员会
户型位置:
9号住宅楼1单元1-10层
9号住宅楼2单元1-10层
1号住宅楼1单元1-10层
1号住宅楼2单元1-10层
B系列
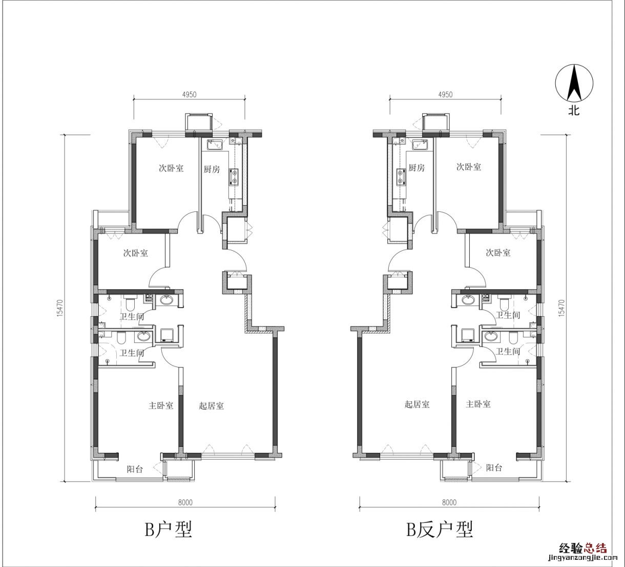
B户型(含正反):三室一厅两卫(建筑面积约119平方米)

文章插图
图源:北京市大兴区住房和城乡建设委员会
户型位置:
6号住宅楼1单元1-7层
6号住宅楼2单元1-7层
8号住宅楼2单元1-10层
3号住宅楼1单元1-10层
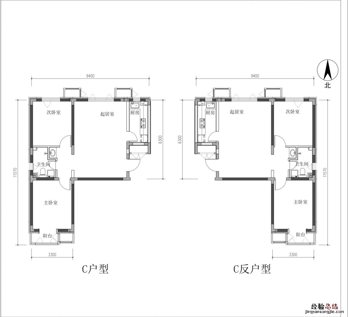
C系列
C户型(含正反):两室一厅一卫(建筑面积约89平方米)

文章插图
图源:北京市大兴区住房和城乡建设委员会
户型位置:
5号住宅楼1-10层
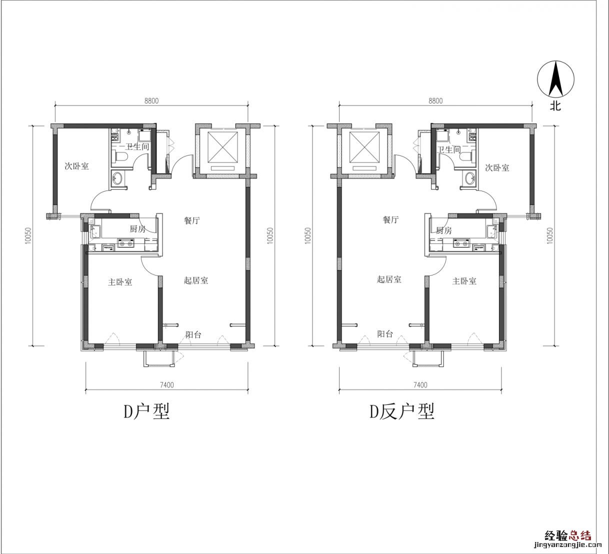
D系列
D户型:两室两厅一卫(建筑面积约89平方米)

文章插图
图源:北京市大兴区住房和城乡建设委员会
户型位置:
5号住宅楼1-10层
注:以上户型图均为边户型户型图 。
【北京大兴区兴宏雅苑共有产权房户型图一览】项目鸟瞰图

文章插图
图源:北京市大兴区住房和城乡建设委员会
