杭州香槟之约公租房户型图
【香槟之约公租房怎么样 杭州香槟之约公租房户型图一览】以下图源于:杭州住保房管官网,仅供参考,以实物为准
(一)项目概况
项目位于江拱墅区北部软件园内,毗邻杭州汽车城 。
(二)周边配套方面
汽车北站、欧尚 万达广场、
?。ㄈ┙煌ㄅ涮追矫?
67路、91路、313路、403路、932路
(四)教育配套方面
教育资源具体以区教育局公布为准 。
(五)医疗配套方面
祥符医院、市二
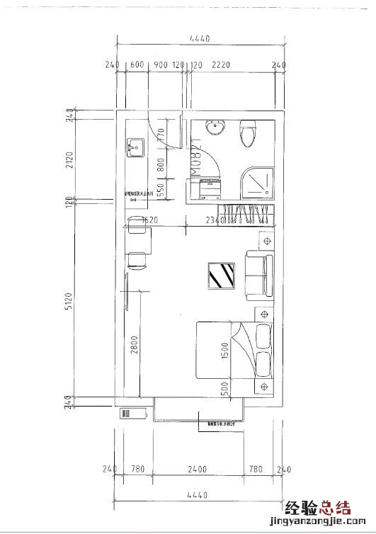
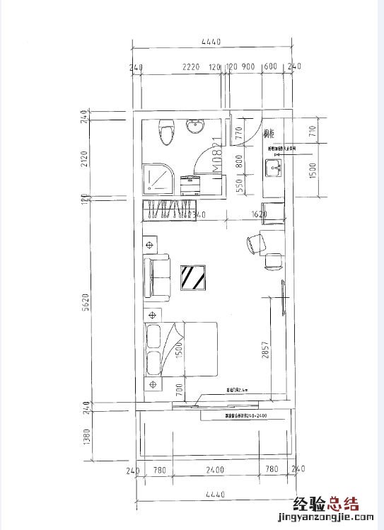
户型图

文章插图
香槟之约A-104(仅供参考)

文章插图
香槟之约C-1003、C-1005、C-1105、C-203、C-503(仅供参考)
经验总结扩展阅读
-
-
-
问·法|问·法|夫妻离婚,婚后男方父母支付首付款购买的房子属于谁?
-
-
-
-
买的鸭子如何煮才好吃窍门 买的鸭子怎么煮才好吃窍门
-
306不锈钢和304的区别,不锈钢304和306有什么区别
-
从前在一个大山脚下住着一户人家|故事:善良女子替母报恩,嫁给大蛇,却帮自己逃离苦海
-
-
-
2022年3月22日早上好问候语大全 周二早安祝福
-
-
01.“婚姻不同于恋爱。|在爱情中,遇到什么样的男人,才值得你托付终身?
-
-
-
-
安全感|为什么越喜欢的人越难追,99%的男生都有这个困扰!
-
2022年11月25日建猪栏吉日一览表 2022年11月25日建猪栏好吗
-
HR最怕的是什么?背锅!最最怕的是什么?背了法律的锅!小问题还好|HR不懂劳动法,就是在坑公司