六郎设计|夫妻改造市区60㎡平房,三角棚顶做挑高书房,全屋宽敞明亮又舒适

文章图片

文章图片

文章图片

文章图片

文章图片

文章图片

文章图片

夫妻改造市区60㎡平房 , 三角棚顶做挑高书房 , 全屋宽敞明亮又舒适市区内在老平房改造也是一项复杂工程 , 很多房子都年久失修 , 低矮昏暗 , 改造难度极大 , 但如果规划好了效果也是惊人的!
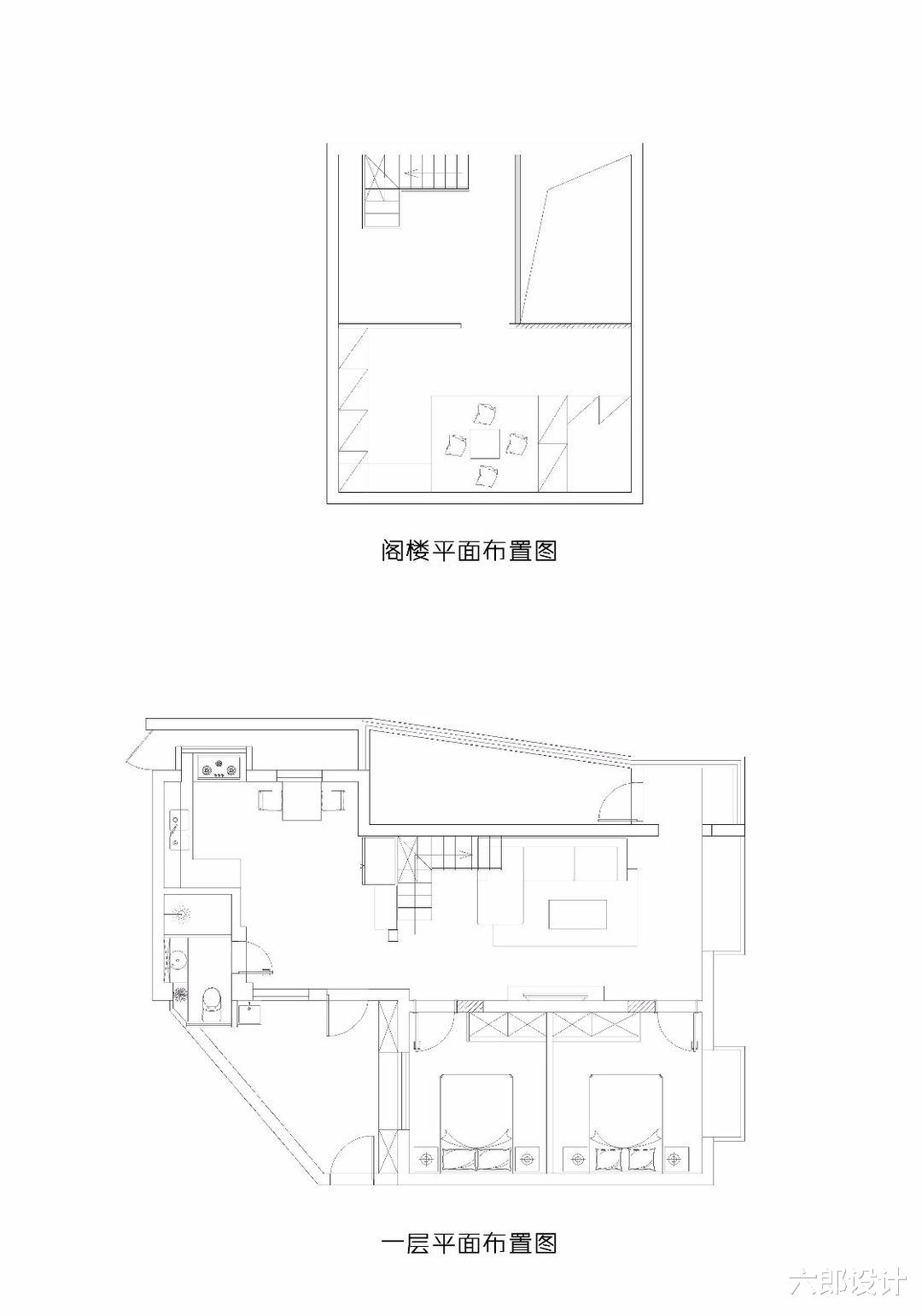
一对同父母在一起住的年轻夫妻就有一套这样的60平米老平房 , 为了提升舒适体验 , 夫妻先将父母安排在自己的楼房内 , 然而对原有平房进行重新改造 , 利用尖顶造型棚顶设计了挑高阁楼 , 做独立的小书房兼客卧 , 进门处的院区也搭建的玻璃棚顶 , 做成一个封闭的入户玄关空间 , 整体房间经过改造后宽敞明亮舒适 , 功能布局完善 , 父母回来都不敢认了!
玄关从院外的防盗门进来就是一个阳光棚顶的不规则封闭院区 , 做了入户玄关设计 , 左侧定做一排棕红色实木玄关衣帽柜 , 内窗下做了换鞋凳、鞋架等 , 一家人入户的衣物和鞋子、生活物品等都收纳在这里 , 十分宽敞明亮大气 , 再搭配一些大小绿植 , 让玄关空间空气更加清新 。
客厅客厅在进门里侧位置 , 做了半挑高设计 , 一半在阁楼之下 , 但比正常层高略低一些 , 并以大白墙为主 , 不显压抑 。 电视墙上安装一个悬空式电视柜 , 简约实用 , 轻盈时尚 。
对面摆放了米色2+1皮质沙发 , 舒适大气 , 很有档次 , 搭配两个圆形小茶几 , 十分得体不显空间拥挤 。
客厅顶部安装了吸顶灯 , 更显层高 , 客厅挑高处可以看到二层的阁楼的金属护栏及白色实木尖型棚顶 , 有一种小豪宅的即视感!
餐厅餐厨区在玄关进来对面位置 , 外侧是餐厅 , 靠窗摆放一张方形实木餐桌 , 上面铺着清新的薄荷绿色台布 , 搭配两把实木餐椅的坐凳 , 在这里用餐明亮时尚又清新 。
厨房开放式厨房规划了U型布局的实木橱柜 , 安装了功能强大、吸力充足的集成灶 , 并在白色墙砖上安装了置物搁架、挂杆、挂钩等 , 丰富厨房储物形式 , 与橱柜组合 , 满足各类用具、器皿和小厨电等收纳的需要 , 操作空间十分舒适宽敞 , 物品归纳井井有条 。
主卧
卧室在一层 , 主卧内布置得很简洁 , 是小夫妻的房间 , 白色墙面搭配原木色地板、大床、床头柜、衣柜等 , 再配上清新整洁的床品 , 营造出宁静轻松自然健康的睡眠氛围 。
次卧次卧是父母的房间 , 同样布置得简约舒适明亮清新 , 配置了舒适的大床和清新的床品等 , 窗外是玄关处院区 , 安装了深色玻璃 , 起到保护隐私作用 。
经验总结扩展阅读
- 化妆品包装盒厂家告诉你,医美化妆品包装盒定制也可以设计成这样
- 田国辉|广西边境民警夫妻两次推迟婚礼 共同坚守南疆国门抗疫一线
- 01孔夫子说过:“饮食男女 夫妻感情不和,离不开两件事
- 经验教程电商详情页设计教程,平面设计素材,广告设计培训,美工设计培训
- 体系设计展厅设计视觉体系彰显空间档次
- 迫于生活的压力 夫妻两地分居,为何男人都不想老婆?
- 前段时间 夫妻相处8年后,经常做这5件事,说明关系不好,彼此不爱了
- 设计第244期(教程) 真棒! 欧美风酷炫网页设计WEB视频教程
- 设计第241期(教程) 平面设计师逆袭之路,学完这些工作轻松找
- 疫情下餐厅空荡荡,哈尔滨夫妻相拥痛哭,网友:哭出餐饮人心声!
