梦想家|夫妻的简约清新两居,布局紧凑榨干每寸空间,小家生活同样有品质

文章图片

文章图片

文章图片

文章图片

文章图片

文章图片

文章图片

文章图片

夫妻的简约清新两居 , 布局紧凑榨干每寸空间 , 小家生活同样有品质前段时间到一对发小的夫妻家去串门 , 他俩也是我小时的邻居 , 可谓是青梅竹马 , 从小学同学到大学校友 , 最后步入婚姻殿堂 , 双方十分般配 , 感情很好 , 和我也是无话不谈 , 经常来往 。
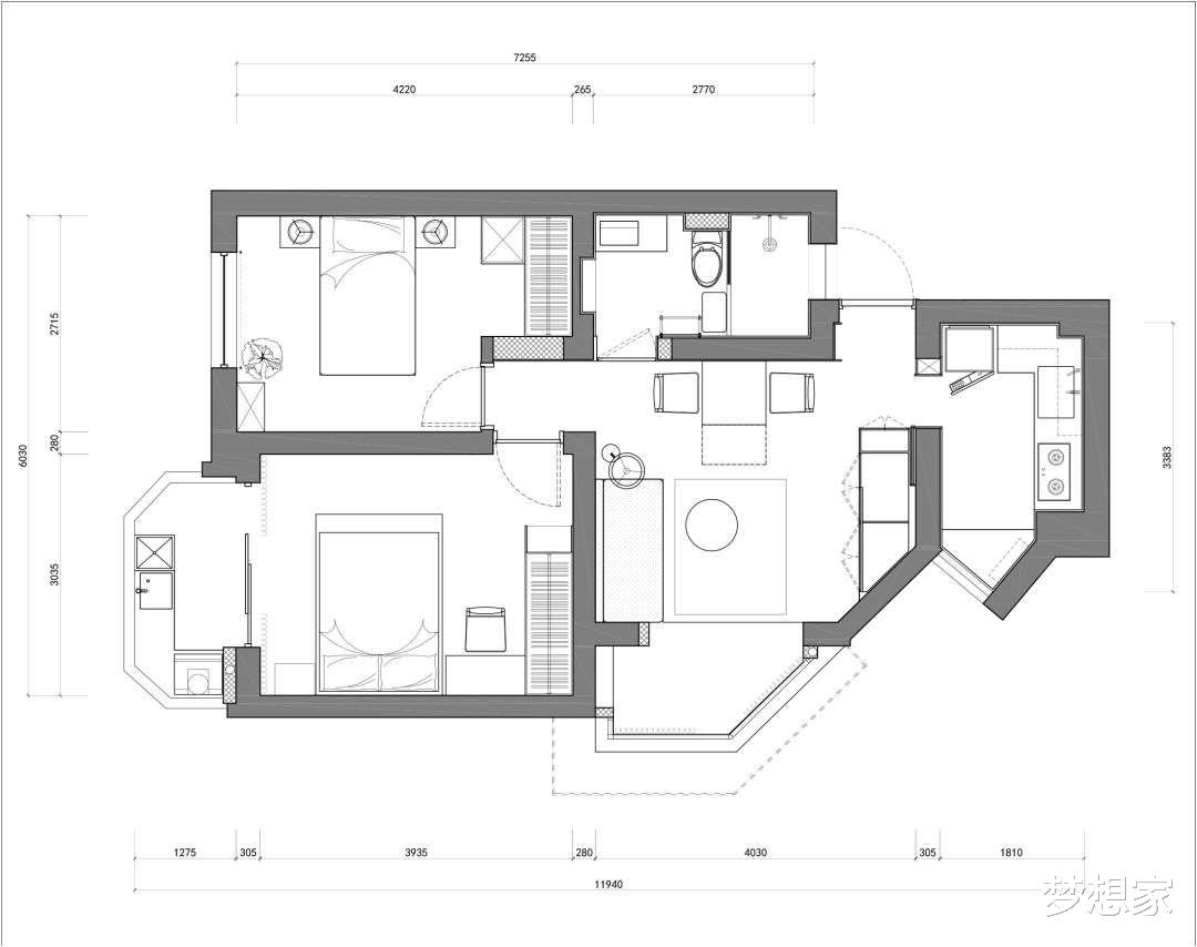
他家是一套54㎡的小两居户型的房子 , 采用简约风装修 , 看似不大的空间却布局十分紧凑 , 功能齐全 , 温馨舒适 , 进门感觉有种大户型的即视感 , 看出夫妻在装修时是认真态度!
入户玄关
从他家的外门进来两侧基本和门等同宽度 , 没放做玄关鞋柜 , 因此将玄关鞋柜设置在对面位置 , 在进门两侧安装了精致的黄铜挂钩 , 方便挂放随手物品等 。 一进门他俩的爱犬就过来热情地打招呼!
客厅进入室内是一个开放式的大开间 , 这里是客餐厅的公用区域 , 十分宽敞通透明亮 , 尤其的阳台还定做了加高地台和书架等 , 底部储物 , 上面休闲看书娱乐等 , 有客人留宿可能当客卧 , 太实用舒适大气了!
【梦想家|夫妻的简约清新两居,布局紧凑榨干每寸空间,小家生活同样有品质】
客厅沙发刷了淡淡的灰色墙漆 , 下面摆放一个烟粉色的布艺沙发 , 对面是黑色圆形小茶几和小地灯、边几等 , 在夫妻精心布置的插花、小抱枕等点缀下 , 让会客空间简单舒适而不失品位 。
他家的电视背景墙原则了实用性超强的整面墙柜设计 , 无拉手白色大柜简洁时尚气派 , 中间嵌入电视 , 底部增加藏光设计 , 与整体客厅搭配时尚而有层次感 。
餐厅餐厅内摆放着胡桃木色方形实木餐桌和两把餐椅 , 温润质朴舒适 , 顶部的小吊灯时尚优雅 , 柔和的灯光为夫妻二人用餐营造温馨舒适的氛围 。
厨房餐厅右侧的黑色边框玻璃门内是厨房的位置 , 长条型厨房却规划了空间利用率超高的U型布局橱柜 , 门口处还定做一个黑色开放式酒柜 , 与橱柜之间嵌入冰箱 , 真可谓而之榨干每寸空间 , 让厨房归纳得井井有条 。
淡蓝色橱柜与白色小方砖墙面搭配 , 简洁清新时尚 , 储物而后操作空间十分宽敞 , 再搭配吊柜底部的隐形灯带 , 让下厨视线更好 , 品质感更高 。
卧室卧室布置得时尚自然清新 , 宁静的浅灰色背景墙下放一个舒适的大床 , 整洁清新床品让睡眠更温柔轻松 。
经验总结扩展阅读
- 梦里的人,不会因为梦的荒诞,从而察觉是梦
- 补充三型胶原蛋白填充,肌肤抗衰不是梦
- 顿悟:这才是面对梦想的姿态
- 李奕霏19岁女孩花百万按照刘亦菲整容,梦想破灭后,她的现状如何
- 胡因梦|好的婚姻,需要三次放弃
- 田国辉|广西边境民警夫妻两次推迟婚礼 共同坚守南疆国门抗疫一线
- 01孔夫子说过:“饮食男女 夫妻感情不和,离不开两件事
- 我用这张图,启发孩子思考2022年梦想行动清单
- 故乡|无数日夜常相望,不尽山海梦他乡
- |凌梦飞:爸爸的旅程
