装修坊|70平的魔法空间,有独立浴缸和衣帽间,堪称两个人居住的首选

文章图片

文章图片

文章图片

文章图片

文章图片

文章图片

文章图片

这个房子是设计师好朋友的新家 , 业主和自己的妻子在大学毕业之后就来到了北京打拼 , 开始两个人也是租房子住 , 中间因为房东和租价等问题也搬过几次家 , 每次搬家就是两个人最头疼的时候了 , 东西全部拿走的话浪费时间也会占用很多面积 , 不拿走重新买又有一些可惜 , 所以两个人在事业比较成功之后做的第一件事就是买一个房子 , 让两个人可以不用再搬家 , 业主也说直到买了房子才真的感觉自己在这个城市安定下来了 。
70平的魔法空间 , 有独立浴缸和衣帽间 , 堪称两个人居住的首选
房屋户型:两室
【装修坊|70平的魔法空间,有独立浴缸和衣帽间,堪称两个人居住的首选】房屋面积:70平方米
装修预算:30到50万元
所在城市:北京
设计师:赵思思
主要建材:梧桐木、铁件、罗马白洞石、抛光石英砖、橡木染黑、清玻璃
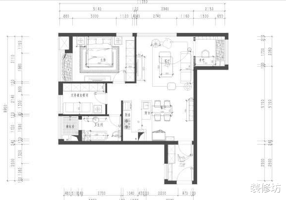
【户型图】
这个房子的面积不是很大 , 不过也是两个人第一个属于自己的家 , 装修的时候也是花费了很多心思十分的用心 。 设计师也在充分考虑之后对房屋的空间格局做出了一些合理的调整 , 将厨房的位置移动为家里增加了一个放置浴缸的地方 , 对其他地方也是做了一个改造 , 让家里不仅有浴缸还有独立衣帽间 , 堪称两个人居住的首选设计 。
【玄关】
设计重点:隐藏地暖分水阀
一边进门之后都会先放置鞋柜 , 不过为了将玄关旁边的地暖分水阀隐藏起来 , 装修的时候特意将玄关鞋柜向里面挪动了几公分 , 这样地暖分水阀就可以直接隐藏在鞋柜的后面了 , 另外在旁边放置了一个穿衣镜 , 增强了玄关位置的光线也方便日常进出家门的时候整理妆容 。
【客厅】
设计重点:石材壁纸作为背景墙
客厅的电视背景墙选择了石材壁纸 , 深灰色的壁纸和浅灰色的墙面融合在一起 , 让简单的背景墙也充满了设计感 , 在不喜欢的时候也可以直接将壁纸撕掉 , 日后自己想要改动的时候也很方便 。
客厅的沙发后面是一个不规则的墙体 , 装修的时候也没有将这个地方打通 , 而是选择设计了一个内嵌式的储物柜 , 不会占用外部的空间还可以增加收纳空间 。
【厨房】
设计重点:岛台设计
厨房设计了一个岛台 , 岛台的上面可以放置一些蔬菜水果方便日常做饭的时候使用 , 底部可以用来放置洗衣机还节省了卫生间放置洗衣机的空间 。
经验总结扩展阅读
- 洗面奶 敏感干皮补水用什么洗面奶好 平价的氨基酸补水洗面奶盘点
- 美容帮你有效抚平皱纹的必杀技
- 四大血型寿命排行榜,AB型平均年龄70岁,排第3,第1是哪个?
- 再回首 《再回首》发现平平淡淡才是真!
- 短发 别把抗衰老的护肤品想的这么贵,6款平价抗衰老精华,你买得起
- 什么“做完25万一平的美甲,我丑得睡不着”
- 面霜 销量Top10的平价修护面霜盘点!
- 经验教程电商详情页设计教程,平面设计素材,广告设计培训,美工设计培训
- 土豆 哪款平价遮瑕最好用?怎么挑选平价遮瑕?热门遮瑕液的真实测评 。
- 贺秀莲|《平凡的世界》“因吃两白馍挨少安打”的秀莲:请读懂,这个女人
