装修设计精选|102平的现代北欧风二居室,悠闲自在的设计让人羡慕

文章图片

文章图片

文章图片
【装修设计精选|102平的现代北欧风二居室,悠闲自在的设计让人羡慕】

文章图片

文章图片
今天分享的是一套建筑面积102平米的现代北欧风二居室案例 , 房子整体的搭配就给人一种年轻大方的感觉 , 设计师通过几何花砖、开放式的布局和舒适的软装来营造出一种悠闲自在的居住氛围 , 居住其中也会让人感觉羡慕不已 。
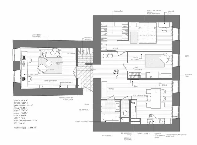
平面布置图
入户玄关走廊的地面铺贴了黑白色的几何花砖 , 在墙角摆放一个换鞋凳 , 换鞋凳上方做挂衣钩和置物架的设计 , 虽然收纳不多 , 但也够用 。
玄关走廊的边上是客厅空间 , 屋主更多的是把它作为一个休闲、阅读区来使用 , 两个带玻璃柜门的书架和电视柜结合 , 让客厅拥有更多储物空间 。
简简单单的灰色布艺沙发和地毯 , 搭配一个迷你的茶几和挂画、绿植、鹿角装饰等 , 客厅从软装细节处展现出了北欧风独特的美感 。
餐厅和厨房被放在了同一个空间 , 灰色调的橱柜和整墙的柜子满足了餐厨的收纳需求 , 白色的小砖和抽油烟机处的黑色墙面形成对比 , 让厨房更加时尚 。
餐桌椅选择了比较简单的款式 , 齐家小菜很喜欢这种不同颜色和款式的餐椅混搭的设计 , 给餐厅带来了更多的变化 。
主卧室的面积并不是很大 , 以白色为主的设计搭配浅木色的地板 , 带来了简洁而又舒适的感觉 , 角落里的小串灯也给卧室增添了一些色彩 。
在卧室靠窗的地方还摆放了一张书桌来代替床头柜 , 小书桌方便屋主平时化妆或者是工作 , 齐家小菜觉得大家都可以尝试这样做 。
卫生间内也是以黑色和白色的花砖来作为点缀 , 不同的花砖带来更为时尚的感官 。 用浴缸来代替淋浴房 , 可以拥有更为惬意悠闲的沐浴时光 。
马桶被放在了另一个单独的空间内 , 所以卫生间内有了更多的空间来做收纳 , 梯子状的收纳设计也是很多卫生间设计当中有用到的 。
齐家栗子提供更多装修资讯 , 喜欢的朋友记得收藏和关注哦!图片来源网络:侵权联系删除
经验总结扩展阅读
- 2022最新早安图片带字不用打字聊天的冬天早上好问候祝福图片精选
- 发型 流行发型有哪些?2022精选发型看这里,都是整容级别的
- 年度十篇小小 说精选,看完久久不能平静
- 早安祝福语录精选,来自朋友圈温馨祝福问候
- 鱼尾纹抗衰老的意义在于哪里?面部28种皱纹有哪些?(抗皱方法精选)
- 漂亮精美早上好动态图片,问候大家早安温馨祝福图片精选
- 发型流行发型有哪些?2022精选发型看这里,都是整容级别的
- 创意好看的冬日早安图片带字精选 唯美冬天早上好问候祝福图片
- 头顶 精选男士发型推荐这16款,既有型还精神,想不帅都难
- 刘海 五一精选小男孩发型来了,又帅又精神,喜欢请收藏
