妙妙谈装修|小两室的改造设计,轻装修重格局,小户型也可以变得很文艺
文章图片
文章图片
文章图片
文章图片
文章图片
文章图片
文章图片
小两室的改造设计 , 轻装修重格局 , 小户型也可以变得很文艺
这个房屋是一个使用面积56平方米的小两室房屋 , 也是一个二手房 , 之前刚买房子的时候家里只是很简单的装修设计 , 只能说可以满足日常的生活需求但一点都谈不上美观 , 所以买房之后的第一件事业主就是要重新装修这个房子 , 希望可以让家里变得美观一些 , 为了缓解家里的布局缺陷 , 设计师选择了轻装修重格局重装饰的设计 , 让小户型也可以变得很文艺 。
房屋户型:两室
房屋面积:56平方米
装修预算:30到50万元
所在城市:深圳
设计师:李怡雯
主要建材:天然木皮、跳色漆、木地板、大理石、系统柜
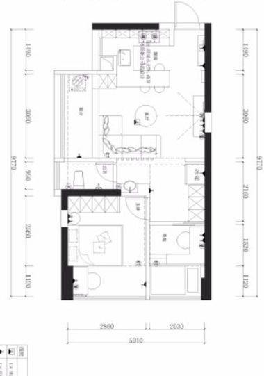
【户型图】
这是属于一个小两房的改造设计 , 装修的时候拆除了多余的墙体做成了开放式的厨房 , 也缓解了房屋过道采光不好的问题 , 书房方面也打开了门洞的位置将光线引入到室内 , 同时取消了客厅和阳台之间的推拉门设计 , 让空间最大程度的打开 , 扩大了家里的视觉空间 , 同时添加了很多用心的小设计 , 让小户型也就可以变得很文艺 。
【玄关】
设计重点:超薄鞋柜
入户的玄关位置比较拥挤 , 为了满足家里的生活需求装修的时候只是选择了一个超薄的鞋柜 , 最大限度的利用家里的空间 , 也满足了进出家门换鞋的需求 。 鞋柜的上方是家里的弱电箱 , 业主特意在电箱外部贴上了软木板 , 挂上自己和家人朋友的照片之后也变得很有仪式感 , 让人回家之后就能看到温馨的小空间 。
【客厅】
设计重点:客餐厅打通设计
客厅、餐厅和厨房全部选择了打通的设计 , 让每一个空间都变得很通透 , 增强了房屋内部的采光 , 让小户型的空间看着更加宽敞大气 , 视觉面积扩大了很多 , 家里也是小户型的朋友也可以参考这样的设计 。
从阳台的位置看家里的整个客厅 , 也不会觉得拥挤 , 客厅的墙壁基本都选择了打通的设计 , 只留下了电视背景墙是一整面的墙壁 , 淡绿色的墙壁也很清新亮丽 , 看电视的时候也会更舒服一些 。
【厨房】
设计重点:花色地砖
厨房选择了花色的小地砖搭配上白色的橱柜 , 让厨房感觉很清新简约 , 橱柜的收纳空间也很大 , 可以满足日常的生活需求 。
【餐厅】
设计重点:吧台代替餐桌
家里没有设计传统的餐桌 , 而是选择用厨房的吧台代替餐桌来使用 , 在吧台的顶部设计了铁艺的吊灯 , 也很有设计感 。
【卧室】
【妙妙谈装修|小两室的改造设计,轻装修重格局,小户型也可以变得很文艺】
经验总结扩展阅读
- 《今生有你》:谈静老公闹事,儿子生病,她能把一手烂牌打成王炸
- |63岁大爷相亲:找老伴就是图感情和陪伴,要和我谈钱是不可能的
- 恋爱|老年人想好好谈个恋爱,咋就那么难呢
- 彩礼|男女谈婚论嫁,彩礼到底意味着什么?
- “找个爱我的人谈恋爱 不要和苦追过你的人结婚,其实原因很简单
- 朋友圈|“我想谈一场可以发朋友圈的爱情。”
- 分手|分手还钱,狗都不谈!全网爆火的“8毛饺子男”,真相没那么简单
- 化妆品化妆品代加工厂家浅谈靓白成分烟酰胺
- 中梁控股大裁员,谈谈我所了解的中梁和认识的一些中梁人
- 作者:黎荔今天去见了一个老同学我记得他两三年前也会因为一件鸡毛蒜皮的小事笑一整天无忧无虑...|谈谈男性自恋