装好宅|美式复古风的公寓,无论室外多么嘈杂,室内都是鸟语花香和舒适

文章图片

文章图片

文章图片

文章图片

文章图片

今天和大家分享的这个房屋是一个位于温州的公寓 , 家里的使用面积有120平方米 , 业主装修的时候特意选择了美式复古的装修风格 , 这个公寓位于高层楼房的 , 虽然房屋的原始格局看着很方正 , 不过内部的细节还是需要做出一些调整和改动的 , 所以在和业主商量之后对家里的一些空间也做出了调整和改动 , 另外增加了家里的储物空间 , 满足业主一家人对于储物空间的需求 , 提升家里的实用性和美观性 , 打造一个充满美式复古风的空间 , 无论室外多么嘈杂 , 室内都是鸟语花香和舒适 , 达到了业主对于新家的期待和设想 。
美式复古风的公寓 , 无论室外多么嘈杂 , 室内都是鸟语花香和舒适
房屋户型:三室
房屋面积:120平方米
装修预算:50万元以上
所在城市:温州
设计师:王思文
主要建材:大理石、铁件、玻璃、实木贴皮、跳色漆、壁纸、文化石
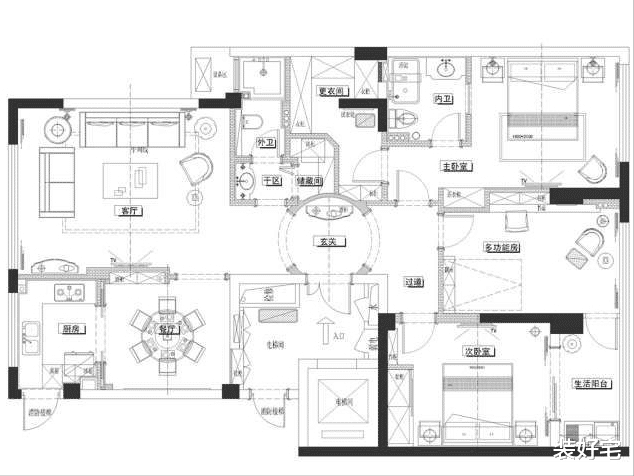
【户型图】
装修的时候对家里的的外卫和内卫空间都做出了调整和规划 , 通过合理的规划和设计让家里的空间得到了充分合理的利用 , 动静分离的设计让家里的生活区域和休息区域分开 , 同时让家里看起来更为舒适大方 , 为业主和家人打造了一个舒适温馨的家居空间 。
【玄关】
设计重点:圆形吊顶
入户的玄关区域本来是一个长方形的区域 , 为了让入户玄关的区域看起来更柔和一些 , 特意选择了圆弧形的设计 , 圆形的吊顶和地面圆形的瓷砖相互呼应 , 就连鞋柜和墙壁都特意选择了圆弧形的设计 , 让进门的空间变得更为舒适带有艺术感 。
【厨房】
设计重点:暖色仿古瓷砖
厨房选择了暖色仿古风格的操作台面和墙面瓷砖的 , 搭配上白色的实木橱柜 , 这样业主做饭的时候心情也会更好一些 , 同时也保证了厨房的实用性 。
【餐厅】
设计重点:藏蓝色皮质座椅
餐厅选择了圆形的餐桌 , 藏蓝色的皮质座椅还带有精致的雕花 , 让整个用餐空间也变得优雅了很多 , 朋友到家里做客的时候也可以坐在一起享受美味的饭菜 。
【客厅】
设计重点:复古风设计
家里的客厅整体是选择了一个美式复古的风格 , 精致的家具搭配恰到好处的装饰 , 打造了一个精致带有复古风格的家居空间 。
【装好宅|美式复古风的公寓,无论室外多么嘈杂,室内都是鸟语花香和舒适】深棕色的沙发搭配上亮丽的窗帘和色彩 , 让客厅的空间都变得生动了很多 , 不会让家里过于沉闷 , 平时在家休息的时候也会更舒适一些 。
家里的储物柜也是业主精心挑选的 , 精致的雕花设计充满了艺术性 , 女主人精心搭配的鲜花也起到了很好的装修效果 。
经验总结扩展阅读
- 国内最大私人豪 宅!比故宫大10万平方米,被称为“中国民间故宫”
- 北京独居大爷曝 光1300平住宅后,我才明白有钱从来就不等于富有
- 白景琦|《大宅门》:漫谈白景琦娶香秀为太太的背后—白家权力悄然交接
- |杨受成孙女庆生礼物摆满豪宅,准儿媳张罗拍照,生娃两年仍未结婚
- |刘嘉玲被曝将出售上海三层复式豪宅,叫价1.8亿,自带花园游泳池
- 成膜教你宅在家里如何养出好皮肤
- 杨九红|大宅门:同样母女分离,把大格格和杨九红对比一下,差距就出来了
- 戴安娜王妃|戴安娜的生活有多奢侈?每年买衣服花百万,为和情人幽会买乡间豪宅
- 女神宅男女神石原里美,五官没有一个突出,组合在一起却堪称完美
- 李靓蕾|王力宏死性不改!带3壮汉闯李靓蕾住宅,被质疑是为了抢孩子
