小拾谈装修|精装房没质感?看他90㎡新家,简单改造后,立马高级多了

文章图片

文章图片

文章图片

文章图片

文章图片

文章图片

文章图片

文章图片
说到精装房这个话题 , 相信很多屋主都有一肚子话要说 。 因为就当下的精装房来说 , 不管是空间表现 , 还是面积利用 , 又或者是居住体验 , 都非常的一般 , 且无法满足我们的居住需求 。 因此 , 给精装房二次改造 , 也几乎成为了必做的处理了 。
本期就给大家分享一套精装房改造案例 , 虽说在二次改造时 , 也是以简单为主的 , 但当空间效果出来后 , 不仅较之前有了明显的质感提升 , 整个空间表现 , 也透着一抹高级的格调 , 非常值得参考 。
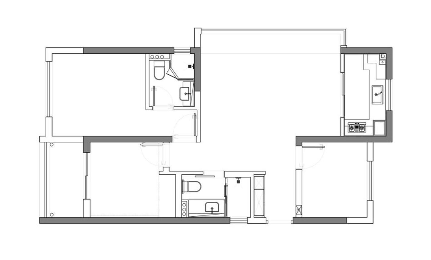
平面结构图
新房坐标杭州 , 面积90㎡ , 三室两厅的格局 , 屋主是一位95后男生 。 其实原户型不管是面积分配 , 还是动线体验 , 都相当不错 。 再加上屋主是一个人居住 , 对空间的功能需求率不高 , 所以在二次改造时 , 也基本保留了原有的空间结构 。
平面方案图
从改造好的方案来看 , 整体是以两室两厅两卫一书房的功能来规划的 , 从而为后期保留下了更多种居住可能性 。 而在结构改造上 , 则给书房做了半开放式设计 。 这样既可以提高入户的采光 , 以及空间的通透性 , 也不会影响到应有的私密性 。 具体通过下面的实景 , 再来分析 。
原空间效果
原空间效果十分一般 , 虽说整体是以简约的基调来定位的 , 但不管是色彩搭配 , 还是材质运用 , 都没有质感 。 因此 , 选择二次改造 , 也是希望能改变整个空间的表现 , 使其更加符合屋主的个人气质 。
入户
原入户本身就有一组内嵌式鞋柜 , 不过原木色的柜体饰面 , 看起来实在过于土气 。 因此 , 在二次改造时 , 就将柜门更换成了白色的平板门 , 并安装上了石材台面 , 从而给人一种干净、简约的视觉感 。
客厅
考虑到原客厅预留的是立式空调 , 会比较占用空间 , 所以给顶面做局部吊顶 , 并安装上风管机 , 既可以起到节省空间的作用 , 也能弱化空间的复杂 , 进一步加深简约的格调 。
而给电视墙刷上灰色的艺术漆 , 则在这个以白色调为主的空间中 , 有了鲜明的明暗对比 , 并提高了空间层次 。 当然 , 考虑到实际的需求性 , 放弃电视机 , 并以悬挂的方式安装上电视柜 , 也比较符合屋主的生活方式 。
为提高空间的律动性 , 给地面重新铺上鱼骨造型的地板 , 既让视觉有了一种无限的延伸性 , 看起来也更有质感了 。 而为了保证统一 , 所有的木门也都做了更换处理 。
保留原有的飘窗台 , 并将米黄色的石材更换成白色的石材 , 再一次地保证了空间的工整性 。 同时 , 还兼具了休闲功能 , 以方便屋主阅读、放空 。
经验总结扩展阅读
- 什么家有柯基:柯基幼犬可以吃什么 小柯基吃什么又营养又健康?
- 下巴伊人小课堂 | 护肤:人人都有的“面霜”,怎么用才有效?
- 小美女子做全麻隆鼻,术后2天竟发现当时已怀孕,术前检查却毫无征兆
- 《开端》众生皆苦!除了小人物让人破防,还隐藏着什么样的思考?
- 母猫人会出现难产,猫也会,当你的猫遇上难产的问题时保大还是保小呢
- 悲痛!代驾小哥惨遭门砸死,生命最后6小时,他有多绝望?
- 本文转自:晋州普法如果人在7到15天之内连续不睡觉 河南一女子40年没睡过觉,专家监控48小时之后,终于揭开真相
- 怀念小时候过春节,真好!
- 倪虹洁|43岁倪虹洁自曝感情经历,结过婚,生过娃,热恋男友比她小
- 雀斑「斑后」关于长斑你了解多少?吐血整理知识点必须要记住!
