小拾谈装修|为引光,她不惜“浪费”5㎡,这套34㎡新家,真是处处有惊喜

文章图片

文章图片

文章图片
【小拾谈装修|为引光,她不惜“浪费”5㎡,这套34㎡新家,真是处处有惊喜】

文章图片

文章图片

文章图片

文章图片

文章图片

文章图片

即便不懂设计的人都应该知道 , 小户型装修设计 , 最不能让人容忍的 , 就是出现空间浪费的情况 。 因为在空间面积有限的情况下 , 每一块空间都格外的宝贵 。 所以常规的设计思路 , 都是以提高空间利用率为主 。
不过本期带来的这套案例 , 却恰恰打破了常规的设计思路 , 在空间面积仅有34㎡的情况下 , 屋主为了有一个良好的采光环境 , 不惜“浪费”5㎡的空间 。 虽说看起来挺让人不解的 , 但当新房完工后 , 也真的是处处让人惊喜 。
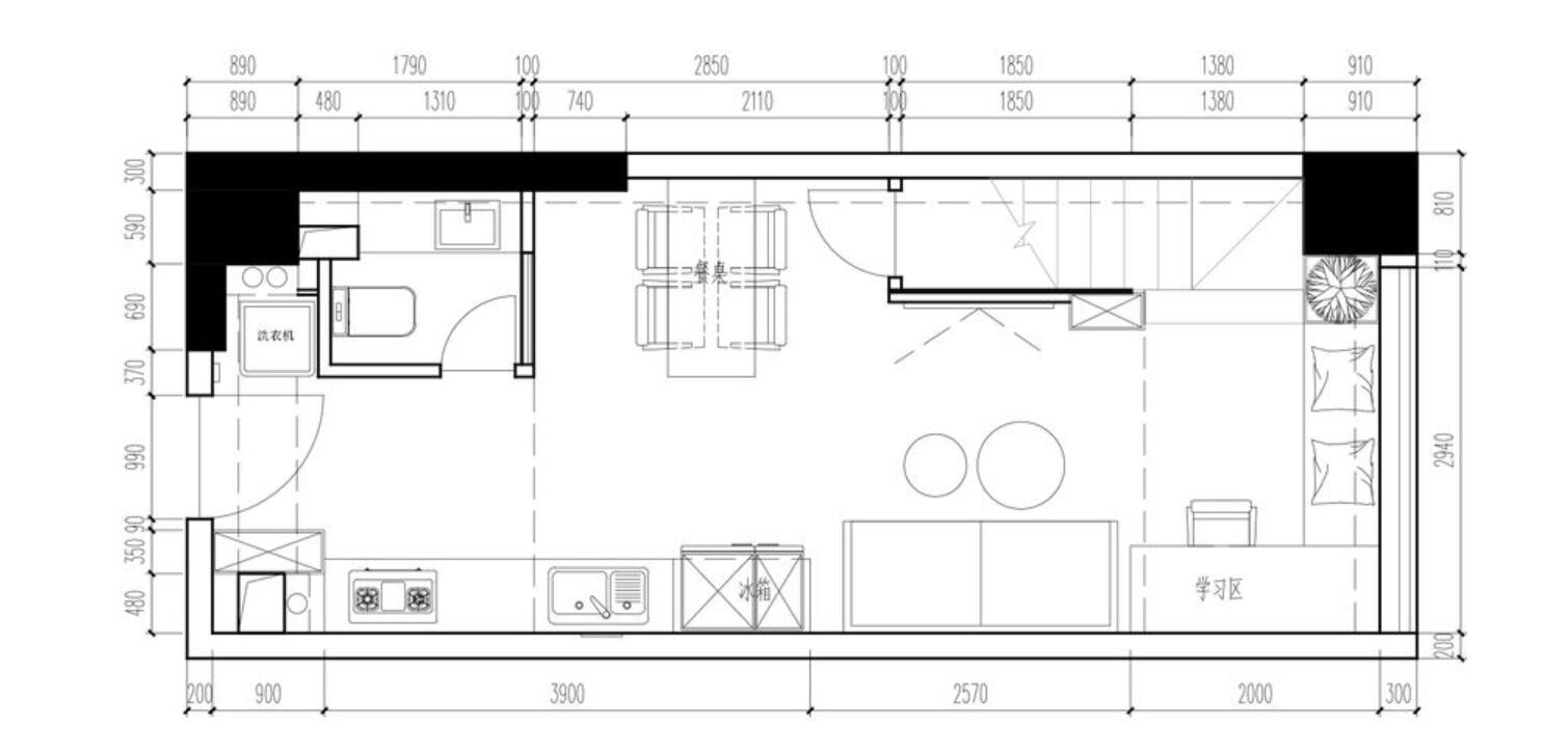
一层平面户型图
本案坐标昆明 , 建面34㎡ , LOFT空间结构 , 屋主一家三口 。 整个空间布局 , 大体上和我们常见的差不多 , 楼下为日常的活动区 , 楼上为私密的休息区 。 不过有一点处理和我们常见的不太一样 。
就是在空间布局上 , 给入户区做内退挑空处理 。 也正是这个处理 , 直接导致楼上少了近2㎡的实用空间 。 再加上客厅的局部位置也做了挑空处理 , 所以综合算下来 , 起码有5㎡的空间 , 没有真正利用起来 。
二层平面户型图
楼上是以两室一卫的格局来规划的 , 满足了基本的居住需求 。 具体通过下面的实景 , 再来一步步分析 。
玄关
其实像这种LOFT结构的住房 , 除了空间面积比较紧凑之外 , 采光和通风 , 也是一个非常大的问题 。 因此 , 为了解决这两个问题 , 就借用天井的原理 , 在入户玄关处做了内退挑空设计 。 这样一来 , 不仅让入户变得更加光亮 , 超高的层高 , 还让人有了一种入户仪式感 。
厨房
厨房看向入户视角 , 虽说玄关区做了内退挑空设计 , 但楼下的空间并没有浪费 。 左边为一组到顶的鞋柜 , 解决了基本的收纳需求;右边则是借用卫生间的空间 , 让洗衣机实现了内嵌 。
入户第一视角 , 由于客厅部分位置也做了挑空设计 , 所以也最大化为室内引入了采光 , 从而给人一种通透、明亮的视觉体验 。 同时 , 入户区的人工补光 , 也和客厅的自然采光 , 有了一个平缓的明暗过渡 , 让空间更有层次 。
入户旁边的厨房 , 不管是墙地面的瓷砖 , 还是橱柜柜门 , 都选择了仿大理石的饰面 , 看起来既有了一丝硬朗的大气 , 又多了一丝高级 。 同时 , 墙砖以纵向的方式来铺贴 , 还起到了拉伸视觉层高的作用 。
经验总结扩展阅读
- 什么家有柯基:柯基幼犬可以吃什么 小柯基吃什么又营养又健康?
- 下巴伊人小课堂 | 护肤:人人都有的“面霜”,怎么用才有效?
- 小美女子做全麻隆鼻,术后2天竟发现当时已怀孕,术前检查却毫无征兆
- 《开端》众生皆苦!除了小人物让人破防,还隐藏着什么样的思考?
- 母猫人会出现难产,猫也会,当你的猫遇上难产的问题时保大还是保小呢
- 悲痛!代驾小哥惨遭门砸死,生命最后6小时,他有多绝望?
- 本文转自:晋州普法如果人在7到15天之内连续不睡觉 河南一女子40年没睡过觉,专家监控48小时之后,终于揭开真相
- 怀念小时候过春节,真好!
- 倪虹洁|43岁倪虹洁自曝感情经历,结过婚,生过娃,热恋男友比她小
- 雀斑「斑后」关于长斑你了解多少?吐血整理知识点必须要记住!
