极家居 极简风的四居室,用现代元素装点家居,把生活过成理想中的样子

文章图片

文章图片

文章图片

文章图片

文章图片

文章图片

文章图片

文章图片

文章图片

文章图片

极简风的四居室 , 用现代元素装点家居 , 把生活过成理想中的样子
家里面更多的是爱 , 一个有爱的家才是有温度的 , 有欢声笑语的 。 这一切是无关装饰无关风格 , 有了爱再单调的设计也会焕发光彩 。
房屋户型:四室
房屋面积:290平方米
装修预算:50万
所在城市:四川 成都
主要建材:实木 , 理石
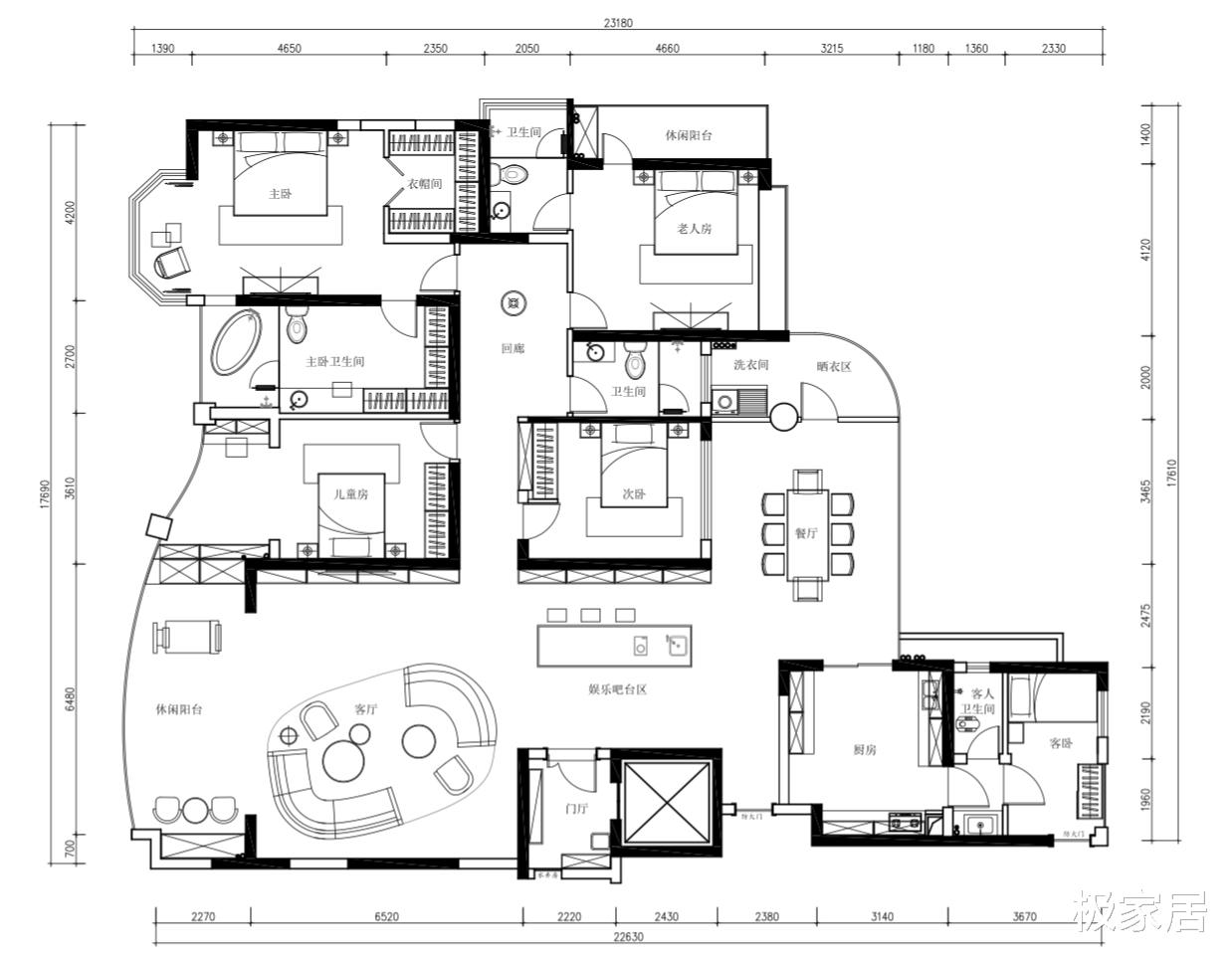
【户型图】
改造之前空间还是比较杂乱 , 很多空间都没有被利用上 , 而且主要的活动区功能也有所欠缺 , 多业主一家来说十分的不便 。
改造以后扩大了部分空间的面积 , 把主要的活动区重新进行了改造 , 增设了宽敞的休闲区 , 更方便招待亲朋好友来家小聚 。
【玄关】
设计重点:多功能空间布局
玄关因为是开发商统一做的装修 , 在改造的时候设计师没有进行大幅改动 , 只是增设了软装 , 让玄关更加漂亮 。
而在进入玄关以后增设了一个吧台空间 , 这里不仅有组合的吧台 , 还有齐全的操作台 , 可以在这里做些简单的小食或者调制美酒 , 这里也可以作为聚餐区 , 朋友来了可以在这里开派对 。
【客厅】
设计重点:极简空间设计 , 回归初心
【极家居 极简风的四居室,用现代元素装点家居,把生活过成理想中的样子】有的时候不是装饰越多越华丽才更好看 , 一些简约大气的设计反而更显空间高级有品位 。 客厅面积非常大 , 但是只是摆放了基本的家具 , 浅灰色的皮质沙发搭配一张茶几 , 温暖的大地毯铺满客厅的地板 , 就构成空间的全貌 。
旁边是超大的落地窗 , 一直延伸到整个空间 , 阳光可以满满的照射进来 , 让客厅更显通透明亮 。 没有任何多余的装饰但是丝毫不会让人觉得空旷或者单调 。 相反这种极简的设计更能让人纯粹地享受生活 。
【厨房】
设计重点:暖白色系更显干净
厨房的面积比较大 , 用玻璃推拉门和餐厅做隔断 , 这样保证独立性的同时也能加强和外界的沟通 。
厨房内增设了大量的橱柜 , 可以存放非常多的厨房用品 , 嵌入式设计把一些大型家电都隐藏在橱柜中 , 节省空间的同时还能提高使用效率 。
经验总结扩展阅读
- 明星 艺人经纪曝明星减肥采用极端方法,精神差眼神不聚焦,不停地喝水
- 护肤品 宝宝护肤品成分越少越安全吗?育婴师教你看懂极简配方!
- 人参“减法”更健康,参谷无硅油健康洗护挑战三大极致体验
- 内脏产品公司可以用448K极热塑发烧大师搭配产品使用吗?
- 艺伟|只因爸爸太偏心,积极上进的女儿突然回家啃老,跟哥哥争房子
- 蒋南孙|男人爱一个女人到极致的样子:两方面情不自禁
- 自律美白补水乳液合集:给肌肤提供必要的营养,从而打造出极润的肌肤!
- 曾沛慈 “终极女神”曾沛慈官宣结婚,接住幸福之前,她做了这2个准备
- 伴侣|嫁错人后,我差点被家暴致死:自私极端的伴侣,有多可怕?
- 系列让肌肤再现光彩的宝藏找到了!姬存希肆极而生璀璨系列实力赞
