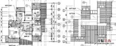
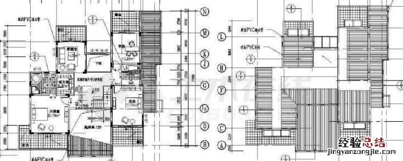
建筑详图的特点有比例大、图示详尽、尺寸标注齐全 。建筑详图是建筑细部的施工图,是建筑平面图、立面图、剖面图的补充 。因立面图、平面图、剖面图的比例尺较小 , 建筑物上许多细部构造无法表示清楚,根据施工需要,需另外绘制比例尺较大的图样才能表达清楚 。
【建筑详图的特点有哪些 建筑详图的特点】
经验总结扩展阅读
-
-
-
-
奶奶是十里八乡有名的长寿老人 给90岁奶奶做的早餐,晒朋友圈火了,朋友:搭配合理营养还美味
-
-
-
-
-
我从小父母离异|我生双胞胎我妈来照顾,孩子满月前,她给我说件事,听完后我傻了
-
-
-
-
-
-
小伙吃鱼不吐刺 60岁阿姨一天直播14小时,做菜带货还“挽救”粉丝婚姻
-
-
-
-
百娱星谈 魔兽60轮回服:P1阶段这些道具价值很高,得其一者千G马无忧
-
时尚装修设计大全|餐桌总是堆满杂物? 这些餐边柜设计一个比一个实用,照着装准没错