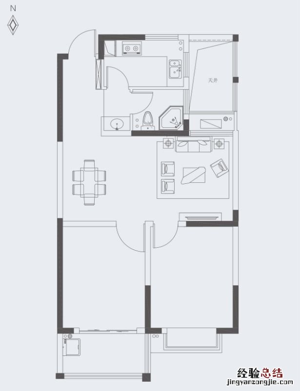
南京观泓雅苑共有产权房82平米户型图如下:

文章插图
来源:南京房产微政务
以上内容仅供参考,以实际为准 。
1、此户型图不适用于所有的[82]㎡户型;
2、本户型示意图为标准层户型,本户型的建筑面积约[82]㎡,最终以房产管理部门实测面积为准;
【观泓雅苑82平方米户型图 观泓雅苑82平方米户型图片大全】3、本户型图所标尺寸家具布置、摆设等仅供参考之用,不作为交付标准;相同户型因楼练、单元、楼层等差别,房屋尺寸和面积、室内外局部结构、门窗的样式和开启方式方向、阳台、外立面、入户门厅样式等可能不同 , 以双方签署的房屋买卖合同约定和实际交付为准 。
经验总结扩展阅读
-
怎么开心怎么过 致35岁的女人:往后你要怎么开心怎么过
-
-
-
葡萄干配一物,每天喝一杯,不贫血了,眼睛亮了,女人常喝不显老
-
-
2022年农历腊月初九搬新家吉日 2022年12月31日搬新家好不好
-
-
热水器不出热水怎么回事,电热水器不出热水怎么回事?
-
相思梧叶影视情感说|《北辙南辕》:中年夫妻应该如何经营婚姻?不妨学学杜世均和司梦
-
8月底,痛定思痛,爱恨清空,展望未来,高傲离去,真爱就在眼前
-
喝不完的奶粉可以放到下次喝吗,喝剩的奶粉可以下顿喝吗
-
-
-
涂抹 “一款三用”的平价口红,不挑肤色巨显白,素颜涂也能彰显高级感
-
-
2022年农历九月十六修坟吉日 2022年10月11日适合修坟吗
-
因为走丢了的哈士奇被送进了派出所,结果把派出所拆了,不愧为拆家王
-
-
-
总有人在问 太多婚后的真爱,不过只是一时的激情,根本就当不得真