南京大成雅境花园人才房均价为44200元/㎡,其中包括约89㎡的户型和约118㎡的户型 , 具体的人才房户型图如下:
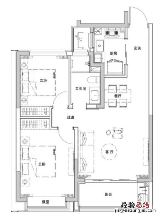
88㎡两室两厅一卫

文章插图
来源:金地商置江苏
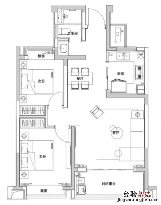
89㎡两室两厅一卫

文章插图
来源:金地商置江苏
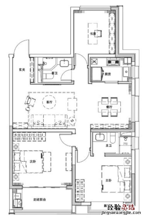
118㎡三室两厅两卫

文章插图
来源:金地商置江苏
以上图片仅供参考,以实际为准 。
【大成雅境年度重磅作品值得投资 大成雅境人才房户型图】本项目推广名为金地大成雅境,地名办核准地名为大成雅境花园;开发公司为南京威磐房地产开发有限公司;代理销售公司为南京新景祥房地产经纪有限公司、南京蓝风房地产投资顾问有限公司 。
经验总结扩展阅读
-
-
35岁在工厂上班,无车无房存款不到5万,应该怎么改变现状?
-
-
-
方法我家柯基拉稀后,精神状态却没有受到影响,该怎样解决这个问题?
-
-
-
-
-
-
-
-
-
手机起水雾能自己好吗,手机屏幕上有层水雾,怎么办?
-
如果你问另一半对婚姻什么想法和态度?如果Ta给你一个相对完美的答案 如果你问另一半对婚姻什么想法和态度?
-
-
-
-
-