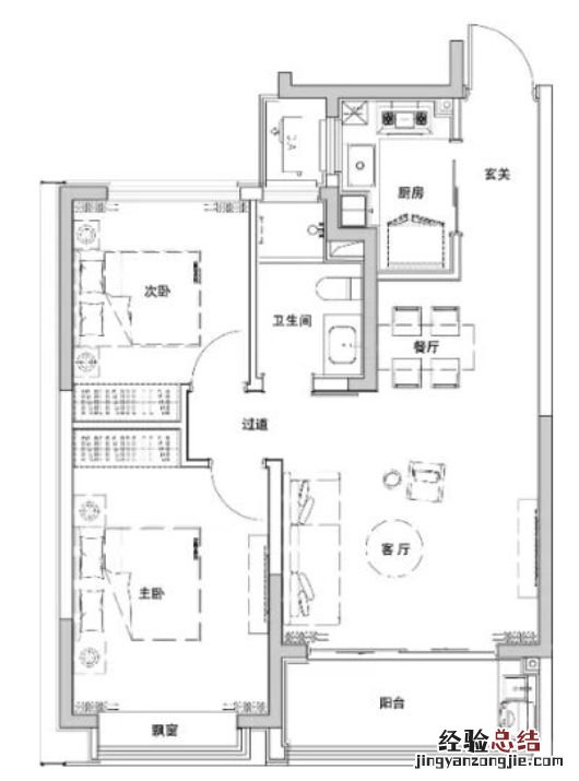
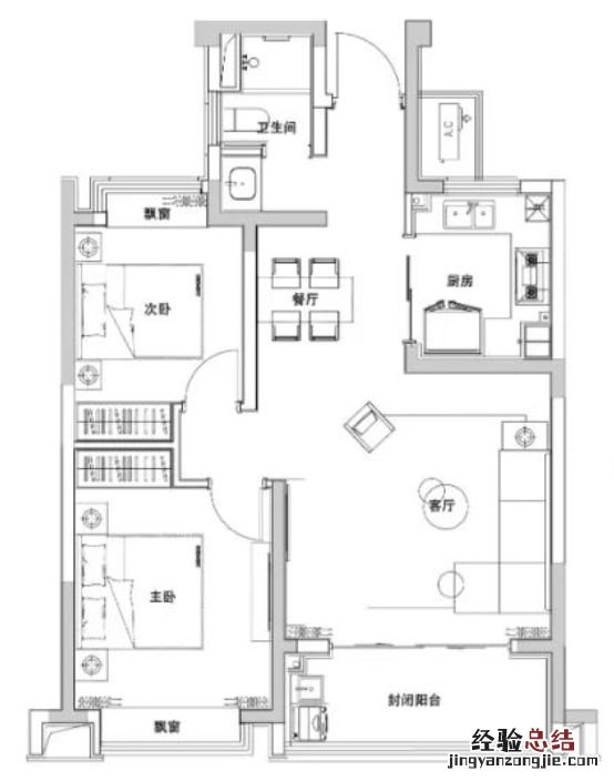
南京金地大成雅境两室两厅的户型建面为88㎡的户型和89㎡的户型,都是人才房,具体的户型图如下:
88㎡两室两厅一卫

文章插图
来源:金地商置江苏
89㎡两室两厅一卫

文章插图
【大成雅境房价 大成雅境花园两室两厅户型图片】来源:金地商置江苏
以上图片仅供参考,以实际为准 。
经验总结扩展阅读
-
-
-
-
-
情问 情问:如何跟互动的还不错,但态度有一点点转冷的女生继续相处与来往?
-
-
-
-
-
米粥的阅读时光 儿子新婚当晚没让母亲住婚房,导致母子决裂。儿子:她就是变态
-
2023年2月29日星期几 2023年2月有没有29号
-
-
-
-
-
张檬|张檬小五疑似“婚变”,发消极动态后又删除,两人结婚仅2个月
-
网易 两性相处,倘若男人经常给你如此“感觉”,就别爱了
-
2023年1月1日殡葬行吗 2023年1月1日殡葬吉日一览表
-
-
在感情中,被发“好人卡”后,真的没有机会在一起了吗