
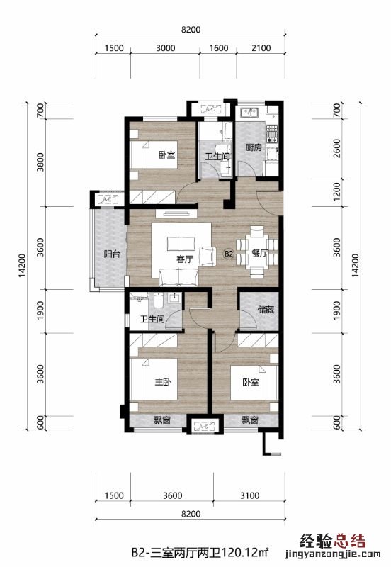
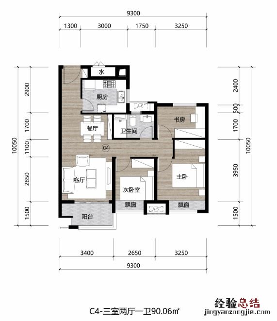
璟阅新寓项目位于栖霞区龙潭板块 , 东至知贤路 , 南至临港路,西至金港南路,北至后曹路 。项目总建约10.2万方,容积率约2.6 , 绿化率约30%,6栋总高23-25层的精装修住宅共576户 。商品住宅销售面积约为9.3万方,产权年限70年 。项目工程编号6幢为人才房,合计92套,销售面积9500㎡,均价为17750 元/㎡,分别为120㎡、90㎡户型 。人才房具体户型图如下:
三室两厅两卫 120.12平方米

文章插图
来源:宜居南京
三室两厅一卫 90.06平方米

文章插图
来源:宜居南京
【璟悦府房价多少 璟阅新寓人才房户型面积多大】以上图片仅供参考,以实际为准 。
