居集|轻奢质感的婚房,充满格调和张力,让屋主得到身心的双重满足

文章图片

文章图片

文章图片

文章图片

文章图片

文章图片

文章图片

文章图片

文章图片
轻奢质感的婚房 , 充满格调和张力 , 让屋主得到身心的双重满足
这套房子是一对年轻小夫妻的婚房 , 充足的预算以及使用者的个人喜好 , 让整个房子充满了奢侈感 , 各种包材与实木家具的运用 , 搭配大理石瓷砖 , 让房间张力有了更好的体现 , 也能更加直接的提升物屋子的格调 , 让屋主在使用时拥有身心双重满足 。
案例:大坪空间
居住成员:大人、小孩
房屋面积:140平方米
房屋类型:大坪数
空间格局:3房2厅1卫
主要建材:大理石、皮质家居、实木家具
设计师:余辉
这个房间整体给人的感觉就是极尽奢侈 , 充足的预算以及明确的设计要求 , 让这个房屋所达成的效果很符合屋主的预期 , 精致 , 浪漫 , 有点小情调是这个屋子特有的标签 , 由于作为新婚夫妻 , 儿童房的加入又能满足业主二人的长久需求 。 是值得参考的设计案例 。
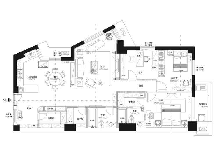
【户型图】
房屋使用面积有一百四十平米 , 两面通透 , 结构三室两厅一卫 , 附有一个阳台 , 能很好地满足三口或多口之家的日常使用 。
【卧室】
设计重点:静谧氛围
卧室的搭配偏重庄雅厚重 , 整体给人的感觉十分踏实 , 而奢侈作为整个房屋的基调 , 在卧室上也有所表现 , 实木家具搭配香槟色软包 , 凸显奢华气质 , 而两旁氛围灯的加入 , 在保障日常使用的同时 , 也增添了几分静谧感 。
【客厅】
皮质沙发搭配青铜色茶几 , 整体给人的感觉更加有格调 , 同时这两件家具的质感更加轻奢 , 与整个房间的奢侈感相得益彰 。
设计重点:多元组合
与卧室不同的是 , 客厅作为功能区与活动区的集大成者 , 既要与房间整体基调相同 , 又要与保持自身的特别 , 而作为空间的最直接体现 , 家具的不同搭配 , 不同种类的多元混合 , 让客厅与各屋连接时能形成完美过渡 。
【餐厅】
设计重点:干净素雅
餐厅虽然与客厅有所连接 , 但是整体设计风格却有所不同 , 虽然整体都是凸显奢侈感 , 但是客厅通过各式摆件及家具来实现 , 而餐厅则是通过氛围 , 整个餐厅给人的感觉更加干净素雅 , 让人在用餐时更加专注享受美食 。
【厨房】
设计重点:收纳设计
厨房的整体设计比较开放 , 由于房屋中间整体是连贯的 , 因此厨房在保障烹饪美食的功能时 , 还需要兼顾餐厅的部分收纳功能 , 通过瓷砖暖色瓷砖、实木家具以及瓷器的摆放 , 让屋子在保证奢侈感时 , 还可以让房屋更加温馨 。
经验总结扩展阅读
- 时代真珠美学APP把握时代潮流,打造轻奢美妆护肤产品
- 鳞片 染发后多久可以洗头发?搞懂这三个细节,颜色更持久发质更有质感
- 时髦 今年冬季流行染“奶茶色”,看似低调却很有质感,不换发型也时髦
- 腮红 《闪耀暖暖》发型换色功能差强人意,换了颜色后质感会变差
- 浅色欧曼谛化妆质感眼妆教程,提升质感这一款怎么行
- 发型迎接2022,从头开始。轻奢美发造型品牌,烫染二选一,领券立减,只需79!
- 卷发宋妍霏穿紫色look西服套装,加上公主卷发造型,真提气质感
- 卷发 为你推荐7款卷发新发型,烫完显脸小增发量,气质感满满!
- 构造优柔的质感将豹纹狂野的天性破解得云消雾散
- 卷发显小脸又具气质感 6款减龄显嫩的锁骨发型推荐
