装修优姐|上海夫妻舍弃郊区新房,买市区80㎡公寓,装修设计太黄了,高级

文章图片

文章图片

文章图片

文章图片

文章图片

文章图片

文章图片

这是一套位于上海老城区的小户型公寓 , 建筑面积约80㎡ 。 房子的建筑年代是20世纪 , 虽然年限比较久 , 但是由于地处在城区中 , 交通比较方便也比较热闹 , 所以这对外地小夫妻义无反顾的放弃郊区的新房 , 选择了这样一所具有年代化的公寓 。
户型图
户型分析:整个室内平面呈倒L型 , 不是南北通透户型 , 但好在开发商多预留的几面窗户 , 整个公寓的空气流动还算可以 。 其次 , 倒L户型因为缺角 , 不是户型方正的设计 , 所以私密性会比较差 , 从进门玄关处就可以看到客厅 。 所以需要增加装饰墙 , 把玄关 , 客厅等空间分离凸显出来 , 营造房屋布局 。
设计过的户型图:
设计重点:1、重新构造房屋空间布局 , 减少过长的走道 , 打造多功能厨房墙、浴室墙以及卧室墙 , 增加隐私感 。
2、整个风格以亮黄色与白色为主要搭配色系 , 使空间变得轻盈 , 这样空间视觉效果看起来更开阔 。
3、厨房改成开放式 , 客餐厨为一体 , 这样使空间看起来更明亮开阔;尽可能的增加储物空间 , 避免厨房显得杂乱 , 做到厨房用品有足够的空间收纳 , 提高利用率 。
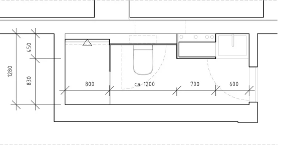
4、卫生间打造成三分离设计 , 每个区域独立使用 , 更方便 。
改造分析
玄关玄关处做了收纳柜 , 也可以充当隔断作用 , 即使开门也不会一眼看到底 , 私密性也大大增加了不少 。
卧室卧室在玄关右拐角处 , 布置上也是尽可能的简洁美观 , 没有很复杂的吊顶设计 , 采用简单的平顶 , 只预留了空调风口与检修口 , 这样也不容易积灰 , 打扫也比较方便 。
因为房间的面积不大 , 所以整个室内并没有摆放很多家具 , 就连衣柜颜色的选择也是白色 , 这样整个视觉看起来比较宽敞与柔和 。 对面是一个小阳台 , 做的玻璃推拉门 , 这样既不会遮挡视线 , 还可以增加空间感 。
卫生间
左边是卫生间 , 做了浴室墙 。 空间虽然不算大 , 但依旧选择干湿分离设计 。 整体布局是洗手区 , 如厕区与淋浴区 。 三区分离设计 , 这样在淋浴时 , 其他人也可以正常洗漱与如厕 。
淋浴区的防水条做得比较高 , 避免洗澡水会蔓延至其它区域 。 在如厕区与洗手区之间做了收纳柜 , 一是增加储物空间 , 二是卫生间不算大 , 做不了隔断设计 , 这样收纳柜还可以做一个遮挡 , 避免如厕的尴尬 。
厨房
卫生间右拐靠墙区域利用闲置空间做了两个储物柜 , 左边是设计的重点 , 做了一整面的厨房墙 。
经验总结扩展阅读
- 上海容大:凝聚团队力量 铸造企业精神
- 品牌玫卿序发力“科技护肤”, 携手上海应用技术大学“升级”玫瑰精油萃取技术
- 本文转自:上海长宁“夜以继日”“白加黑”“连轴转”“不眠不休”……自上海本轮疫情开始后这...|这些天,长宁这些医务工作者的朋友圈刷爆了……
- |引争议!上海一小区规定:送外卖必须坐摆渡车!网友褒贬不一
- 窝里拉窝里尿!上海男子失恋后没出过门,屋内无处下脚蟑螂满地跑
- 上海|上海一20平米奶茶店成“最小”中风险地区,网友:上海温度
- 我,在上海的三甲医院工作,告诉你职工退休后的退休工资有多少
- |暖心!抗疫一线,武警上海总队休假军医和妻子的特殊合影
- |刘嘉玲被曝将出售上海三层复式豪宅,叫价1.8亿,自带花园游泳池
- 指令上海男主人花七千元送宠物狗上学后仍被咬,当事人:绝不弃养
