小拾谈装修|家里有长过道,就学她家设计,布局巧妙,还多出来一个衣帽间


小拾谈装修|家里有长过道,就学她家设计,布局巧妙,还多出来一个衣帽间
文章图片
小拾谈装修|家里有长过道,就学她家设计,布局巧妙,还多出来一个衣帽间
文章图片
小拾谈装修|家里有长过道,就学她家设计,布局巧妙,还多出来一个衣帽间
文章图片
小拾谈装修|家里有长过道,就学她家设计,布局巧妙,还多出来一个衣帽间
文章图片
小拾谈装修|家里有长过道,就学她家设计,布局巧妙,还多出来一个衣帽间
文章图片
【小拾谈装修|家里有长过道,就学她家设计,布局巧妙,还多出来一个衣帽间】
小拾谈装修|家里有长过道,就学她家设计,布局巧妙,还多出来一个衣帽间
文章图片
小拾谈装修|家里有长过道,就学她家设计,布局巧妙,还多出来一个衣帽间
文章图片
小拾谈装修|家里有长过道,就学她家设计,布局巧妙,还多出来一个衣帽间
文章图片
小拾谈装修|家里有长过道,就学她家设计,布局巧妙,还多出来一个衣帽间
文章图片
小拾谈装修|家里有长过道,就学她家设计,布局巧妙,还多出来一个衣帽间

不管是大户型 , 还是小户型 , 当家里的格局出现过道后 , 装修时总会让人十分的烦恼 。 因为过道一般都是作为主通道存在 , 在改造时受到了局限性非常大 。 可若不做改造 , 不仅会浪费面积 , 还会影响空间动线体验 。 那么针对这种情况 , 我们该怎么办呢?
本案屋主家的设计思路就很棒 , 通过合理的改造 , 不仅弱化了过道的狭长 , 还延伸出了一个衣帽间 , 从而让使用面积得到了充分利用 。 所以大家若也苦于这个问题没有办法解决的话 , 完全可以来参考一下 。
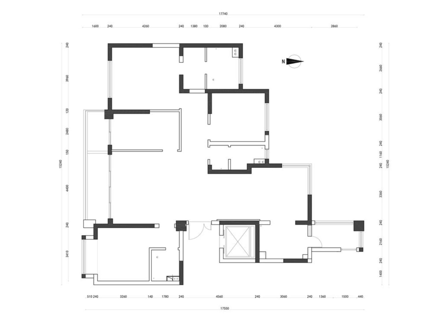
原始结构图
新房建面196㎡ , 坐标上海 , 四室两厅三卫的格局 , 屋主是一对90后小夫妻 , 原户型使用面积分配相当不合理 , 比如客厅过大 , 走道狭长 , 厨卫过小等等 。 不过最让屋主夫妇接受不了的 , 还是主卫门对着床 。 因此 , 整个空间布局改造也非常大 。
平面方案图
空间布局改造如下
1、厨房做开放式 , 并将外面的小阳台纳入进来 , 提高使用面积 。
2.、重新定位南边小卧室结构 , 并向客厅、过道延伸 , 这样一来解决了过道的狭长 , 也让使用面积分配更加合理了 。
3、调整主卧、主卫的门洞位置 , 在优化空间动线的情况下 , 解决主卫门对着床的尴尬 。
4、北卧室同样做门洞位置调整处理 , 以提高客卫的使用面积 。
入户
当南边小卧室结构重新调整 , 并采用格栅移门之后 , 立马就解决了原过道的狭长 , 并且还将过道的面积给充分利用了起来 。 同时 , 大面积的原木材质运用 , 也为空间奠定了日式小清新的基调 , 从而让居住空间充满治愈气息 。
入户墙面以灰色的艺术漆为主 , 既可以与空间基调融为一体 , 也在静谧的氛围中 , 凸显出了一抹禅意 。 而鞋柜则是以悬挂的方式 , 设计在了入户门旁边 , 解决了日常的收纳需求 。
电视背景墙同样采用了原木来处理 , 考虑到次卧门洞在这里 , 所以采用整体外凸的方式设计造型 , 不仅让电视机实现了内嵌 , 还让次卧门实现了隐形 。 同时 , 也加深了空间层次 。
客厅

经验总结扩展阅读