翔说家居|30㎡一字形小房间,轻奢有美感,5w预算实现温馨小家

文章图片

文章图片

文章图片

文章图片
30平方米的实际使用面积 , 对于我们的感觉应该是小了一点 , 在视觉上 , 小房间除非不隔断 , 一旦隔断了空间 , 视野就会受阻 , 视线是心灵的写照 , 如果视线受阻 , 那么心理就会感受到压抑 , 小房间的压抑感就从这里来的 。
其次 , 小编也是提醒您:如果您家的房间面积也十分有限 , 那么还是推荐您避免选用欧美风格作为装饰 , 因为欧式风格相对简约和日式风 , 更加厚重 , 所需要的渲染强度也更好 , 就会导致空间压迫感上升 , 而且欧式风格需要的装饰也很多 , 会让仅有的房间面积受到侵蚀 , 变得中看不中用 。
今天小编就带您看一下这个30平方米的案例房 , 房间颇有简约风格 , 但不乏轻奢之气 , 非常好看 。
案例房型:1居室简约风
房间面积:30平方米
装修预算:5w
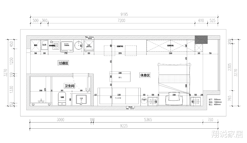
户型图如下:
从户型图中我们也能看出 , 整体的房间布局还是十分规整的 , 一字形的房间总体格局 , 能够让横向视野得到放大 , 当然这也归功于设计师的“浅隔断”操作 , 房间多处运用开间处理 , 这样的好处我们也提到了 , 能够提高视野 , 让心情更加舒畅 。
【翔说家居|30㎡一字形小房间,轻奢有美感,5w预算实现温馨小家】玄关
进入房间 , 来到玄关的位置 , 玄关是一条走廊 , 并没有过多的玄关修饰 , 一侧悬挂了一个衣服挂钩 , 房间是一个人居住 , 所以一个衣服挂就能够满足主人的日常出行需要了 。
客厅+餐厅
走出玄关的小走廊 , 来到了客厅的位置 , 客厅比较宽敞 , 也中规中矩 , 一个半月形的灰白色布艺沙发坐落在一侧 , 墙壁上是一个隐藏式的灯带 , 前方是一个电视 , 木质的电视柜将电视撑起 , 整体的氛围轻奢有内涵 , 颇有几分质感 , 又不觉得厚重 , 整体给人的氛围感非常好 , 也没有因为空间的狭小感觉得闭塞的感觉 。
电视柜的延长 , 充当了餐厅的功能 , 小户型就要这样 , 小编也是建议您:如果您家的房间面积也很小 , 那么还是希望您能够做到一厅多用 , 客厅充当餐厅 , 阳台充当工作间 , 这样的方法能够减少空间的占有 , 同时也会增强空间的层次感 。
厨房
由玄关进入的位置 , 一侧就是厨房 , 厨房的空间不是很大 , 但是炊具、油烟机、冰箱、微波炉一样都不少 , 一个人生活使用是绰绰有余的 。
卫生间
虽然房间不是很大 , 但是卫生间还是很宽敞的 , 洗手台的下侧还进行了抬高 , 增加了存物空间 , 而且还用一道灰帘阻隔 , 起到了干湿分离、保护隐私的作用 。
卧室
在整体房间的最远处 , 就是卧室的位置 , 卧室并没有进行隔断 , 休息的时候视野更加宽阔 , 远处还有一个窗户 , 透过窗户还能看到星星和月亮 , 生活也十分惬意 。
总结:
看过了案例房 , 小编也是提醒您:小户型在风格和实用性上 , 还是尽量要选择实用性 , 就像是本案例房 , 虽然没有具体的确定风格 , 但是整体给人的感觉依旧是舒适美观的 。
经验总结扩展阅读
- 致我们人生中,那些说散就散的人
- 人群染发对身体有伤害吗?不妨直说:这几类人群可能不适合染发
- 阿富汗与不同国家商业体系
- 生活听语兮:大声说爱你,喜欢就大胆说出来
- 真正的友情,从不喧哗
- 深圳宝山技工学校│有些事,说出来,那都不是事!
- 直发 为什么说直发是纯欲天花板?那些直发女神都有什么发型秘诀呢?
- 换一种思维,换一种人生
- 会偷三种懒,享尽一生福
- 短发 女士发型别乱来,选对目标再裁剪,都说很不赖
