弥高空间设计|26平超小单身公寓爆改,一室一厅,超强收纳能力
文章图片
文章图片
文章图片
文章图片
文章图片
文章图片
| 基本信息建筑面积:35平方
套内面积:26平方
【弥高空间设计|26平超小单身公寓爆改,一室一厅,超强收纳能力】户型:单身公寓改两室一厅
城市:南京市
小区:辰龙广场
| 户型解析▼ 户型优点
虽然户型超小 , 但是由于套内承重墙较少 , 实际面积利用率高 , 给设计师留出了很大的创作空间 。
▼ 户型缺点
1、只有一扇朝南 , 可采光窗户;
2、厨房位于入户处 , 面积小 , 操作空间非常有限;
3、套内柱子、房梁位置不够理想 , 限制了空间设计;
4、收纳空间太少;
▼ 业主需求
1、整体户型狭长 , 面积很小 , 但是户主还是希望能隔出两间卧室 , 分别供大人和小孩休憩使用;
2、小朋友需要写字学习的空间 , 也需要练琴的空间;
3、卫生间需要做到干湿分离 , 并且还要放置进洗衣机和烘干机;
4、必须要厨房 , 因为每天还得照顾家人的生活起居;
5、需要一定的收纳能力 , 让家里的闲置有地方存储;
| 改造方案如果按照建筑原有隔墙去设计 , 会发现很多业主的需求我们无法实现 。 如卫生间的干湿分离 , 学习区的布置 , 扩大厨房的功能等等 。
所以 , 我们要对原有墙体作出必要的拆改 。
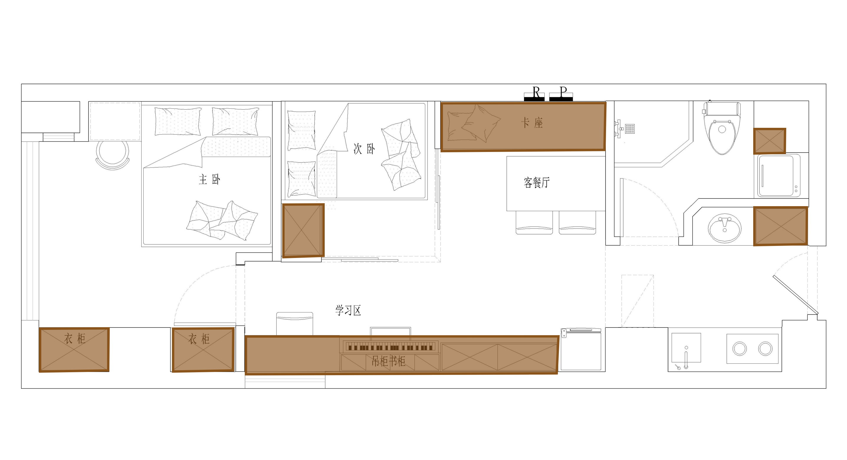
首先 , 我们沿着套内柱子的位置 , 画出五根线条 , 如图中蓝线所示 , 来辅助我们规划设计 。 再依次从左至右 , 将主卧、学习区、厨房、卫生间、客餐厅、次卧室设计规划出来 。
1、主卧分割出最大区域 , 拥有大落地窗 , 衣柜正好嵌入原有的立柱中 , 既有设计感又增加储物空间 , 还节省了卧室的使用空间 。
2、根据业主需求设计出的学习区 , 将客餐厅台面延伸区域放置钢琴和书桌 , 书桌放置在窗户位置 , 增加了学习区域的光线 。
3、厨房受烟道限制 , 只能设计在入户处 。 但我们可以在旁边墙面位置放置个折叠隐形小桌子 , 作为厨房台面的补充 。 同时橱柜和餐边柜结合 , 放置在厨房旁边 , 超大收纳能力 。
4、入户右手边墙体区域稍作调整 , 划分出干、湿区域 , 提高使用率 。 卫生间内烘干机和洗衣机采用叠放 , 中间利用钢架支撑 。 干区安排在厨房对面 , 既做到了干湿分离 , 又方便了日常用水 。
5、餐桌区域采用卡座形式 , 既能当沙发用还能储物 , 客厅柜子前面加了电动投影幕布 , 形成一个小的客餐厅独立空间 。 既节省空间又满足了影音需求 。
6、次卧采用可移动玻璃隔断门 , 借助玻璃材质达到采光及通风效果 , 能保证卧室私密性 , 平时打开可以和客餐厅空间连在一起 , 还能增强屋内面积的视觉效果 。
▼ 收纳区分
1、主卧衣柜正好嵌入柱子中 , 满足业主平时穿衣需求 。 同时也留出了梳妆台、隔板空间 。
经验总结扩展阅读
- 鲤鱼空间设计 125㎡现代风,简雅轻奢,童趣舒适
- 鲤鱼空间设计 插座用时方恨少?别急,全屋开关插座攻略来了!
- 鲤鱼空间设计 新中式,重新定义关于理想生活的标准
- 鲤鱼空间设计 80款入户鞋柜设计方案,人家这样装,太亮眼了!
- 鲤鱼空间设计 现代轻奢二居室,简约却不乏高贵
- 鲤鱼空间设计 遇见最心动的家!
- 鲤鱼空间设计 砖砌的橱柜到底好不好
- 鲤鱼空间设计 知道这几点,真的少走好多弯路
- 鲤鱼空间设计 108㎡现代轻奢,自然大方的木质空间
- 鲤鱼空间设计 35个榻榻米卧室设计方案,总有一款是你喜欢的!