美家手记|看了这对重庆夫妇125㎡的婚房,不禁令人大呼过瘾,果然:越简约,越舒适

文章图片

文章图片

文章图片

文章图片

文章图片

文章图片

文章图片

文章图片

文章图片

文章图片

文章图片

\">像本期要分享的案例就是如此 。 位于重庆 , 面积125㎡ , 是一对年轻小夫妻的婚房 。
一直觉得越简约的家 , 其效果不仅干净整洁 , 而且能够令人倍感幸福!
装修上 , 整个家简约而不简单 , 既有时尚精致的质感 , 也不失敞亮大方的氛围 。
重要的是 , 其家居场面引起极度舒适的同时 , 还让人看了不禁大呼过瘾 , 真的太漂亮了!不信我们一起来看看吧 。
平面图
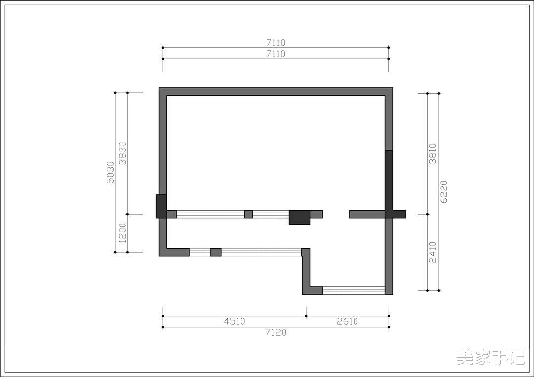
一楼原始结构图
一楼平面布置图
一楼为横厅结构 , 客餐厅互为一体 , 如此没有沙发墙 , 加之开间大 , 空间显得特别敞亮 。 另外是以客餐厨为主的公共区 , 所附带的阳台做三段分区处理 , 左侧是解决衣物清洗和晾晒问题的生活区 , 中间纳入餐厅 , 右侧设置书房 , 显然这样的布局要更为实用 。 需要补充的是 , 入户玄关还赠送了一个花园 , 如此布置成休闲阳台用来养花赏景什么的 , 非常惬意 。
二楼原始结构图
二楼平面布置图?
二楼将多余的墙体和隔断拆掉 , 然后化零为整的同时 , 再新建隔墙重组空间 , 进而打造成了一个兼有衣帽间、主卫和书房的主卧 。
客厅
现在看实景 。 客厅作为此次装修的重点 , 首先就从这里开始讲起吧 。 可以发现 , 这里的配色以大面积的白为主 , 辅以灰色地砖 , 加上软装家具作为点缀色和调色 , 看着干净清爽 , 很有品味 。 重要的是 , 硬装并不繁杂 , 造型上 ,
另一面是电视墙 , 这里选用木饰板打底 , 显然看着比单纯的只刷漆 , 要更有质感 , 再结合大理石 , 和悬空结构的电视柜 , 就更是如此了 , 整洁时尚又精致 。
需要补充的是 , 硕大的装饰画 , 配上一把灰色的单椅也不错 , 看着很闲适 , 完全没有那种冰冷生硬的感觉 。
经验总结扩展阅读
- 亮片穿婚纱做什么美甲好看?这六款女生看了都会喜欢~
- 辣椒 看了58岁何赛飞的波浪发型,就知道中年女人,烫卷发其实最有魅力
- 发型女子做完发型后变大妈,她的父母看了直摇头,网友:少女变婆婆
- 卷发看了58岁何赛飞的波浪发型,就知道中年女人,烫卷发其实最有魅力
- 口红 让李佳琦amazing的口红,热门口红试色,太温柔太好看了吧!
- 眼睛温柔的西柚红将活力元气的少女感描摹得恰到好处,简直太耐看了
- 发型 看了张敏20年前的发型,和现在流行款式没区别,经典是不会过时的
- 姐妹看了龚雪的淑女造型,突然发现:“再过30年,穿衣也不如她优雅”
- 丝瓜 看了明星“涂眼霜”,才发现自己错了多年,怪不得用再贵的眼霜也没效果
- 男生 不管多大年纪的男人,这4种发型要少留,尤其第1个,看了想绕道
