小拾谈装修 其实婚房不需要多么华丽精致,像她家简简单单,同样很幸福
文章图片
文章图片
文章图片
文章图片
文章图片
文章图片
文章图片
文章图片
说到婚房设计 , 相信在很多人的印象中 , 应该都是十分华丽、精致的 。 毕竟是人生中的第一套房 , 也是人生中最重要的一个阶段 。
不过对于本案这对新婚小夫妻来说 , 相较于华丽、轻奢的居住空间 , 他们更倾向于简约淡雅的居住氛围 。 因此 , 在空间设计中 , 就舍去了繁复的造型 , 并以简约的调性为主 。 而从最后完工后的效果来看 , 也相当的不错 , 十分耐看 。
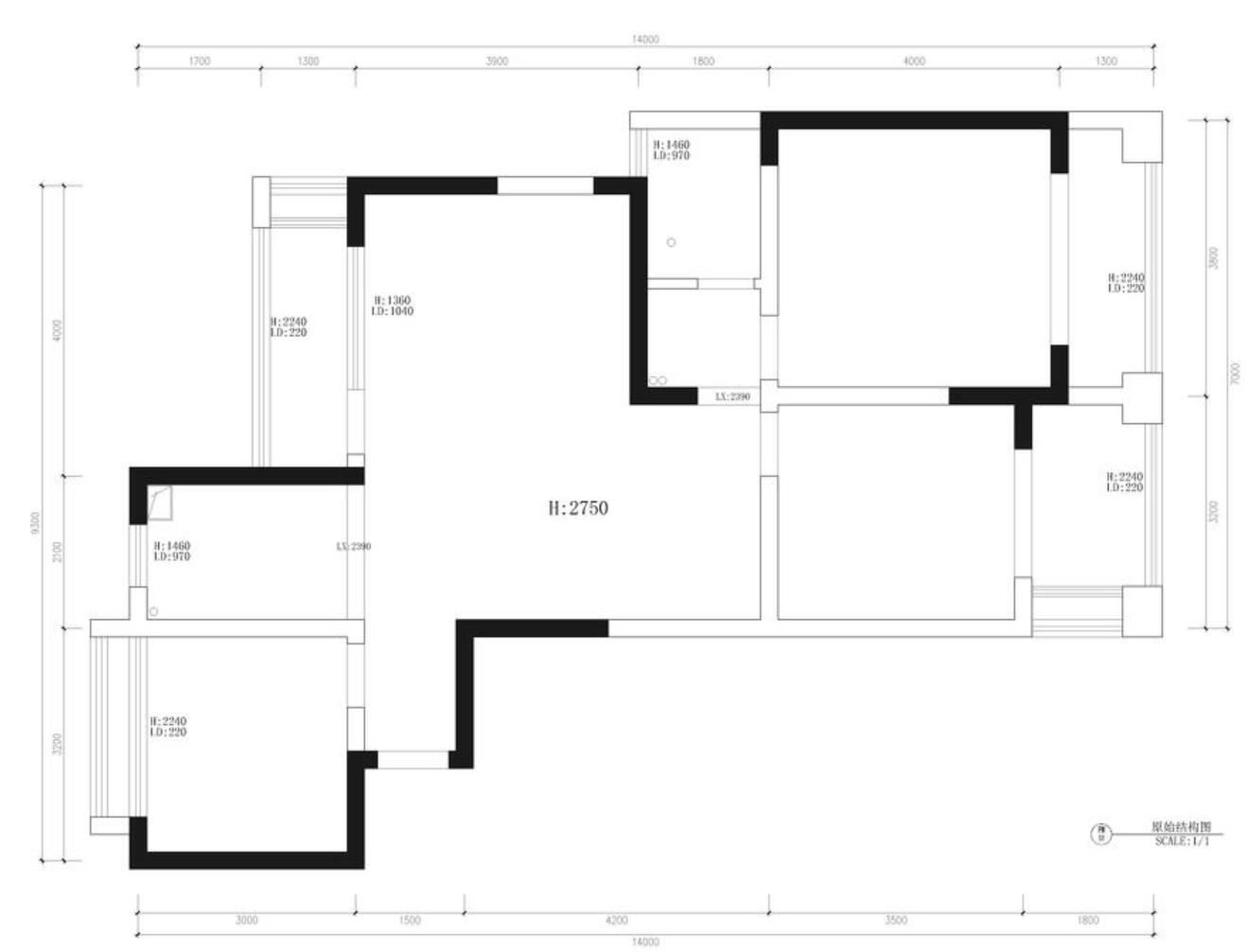
平面结构图
新房位于江苏常州 , 面积109㎡ , 常规的三室两厅一卫格局 。 原户型规划除了入户缺少收纳及玄关之外 , 也并没有明显的空间缺陷 。 所以在空间改造这块 , 就对部分区域做了调整 , 从而让空间更加符合屋主的居住需求 。
平面方案图
空间布局改造如下
1、厨房与旁边的小房间做空间内退处理 , 以解决掉入户过道过于狭窄的问题 , 并延伸出一个鞋柜 , 解决日常收纳需求 。
2、餐桌以横向的方式设计在客厅旁边 , 这样既提高了空间的互动性 , 也间接性为客厅遮挡了一点私密性 。 同时 , 还让次卧延伸出了一个衣帽间 。
3、考虑到卫生间干区对着主卧门 , 所以将台盆纳入室内 , 并在干区增加一组储物柜 , 弥补主卧室的收纳能力 。
玄关
当空间结构重新调整之后 , 入户后的空间体验明显宽敞了许多 。 当然 , 厨房和小房间虽做了空间内退处理 , 但面积也并没有浪费 。 像厨房外就增加了一组储物柜 , 小房间旁边就增加了一组鞋柜 , 最大化提高了空间的实用性 。 而进门对面的位置 , 则采用墙体隔断的方式设计一个端景墙 , 有效提高了空间仪式感 。
餐厅
餐厅侧面设计了一块与端景墙一样的造型墙 , 完美弱化了大白墙的单调 。 同时 , 壁灯的增加 , 也提高了空间的氛围感 , 并突显出了简约、温馨的基调 。
由于餐桌移到了客厅旁边 , 所以原餐厅的部分面积则纳进了次卧 , 并延伸出了一个衣帽间 , 充分保障了家里的收纳储物能力 。 而衣帽间背面 , 也设计了一组餐边柜 。 藏露有度的柜体结构 , 不仅仅实现了不同的收纳需求 , 也间接性加深了空间层次 。
餐桌以横向的方式摆在客厅旁边 , 自然起到了隔断作用 , 并且还拉近了与客厅的距离 , 让空间充满了互动、交流属性 。 当然 , 该餐桌也可以作为办公桌、手工台来使用 , 一抬眼便是幸福的味道 。
客厅
客厅以简约的白色调为主 , 并放弃了墙顶面造型 , 甚至就连吊灯选择 , 也是最普通的吸顶灯 。 不过也正因为这样 , 当空间穿插上其它元素后 , 却也体现出干净、耐看的格调 。
经验总结扩展阅读
- 什么家有柯基:柯基幼犬可以吃什么 小柯基吃什么又营养又健康?
- 下巴伊人小课堂 | 护肤:人人都有的“面霜”,怎么用才有效?
- 小美女子做全麻隆鼻,术后2天竟发现当时已怀孕,术前检查却毫无征兆
- 《开端》众生皆苦!除了小人物让人破防,还隐藏着什么样的思考?
- 母猫人会出现难产,猫也会,当你的猫遇上难产的问题时保大还是保小呢
- 悲痛!代驾小哥惨遭门砸死,生命最后6小时,他有多绝望?
- 本文转自:晋州普法如果人在7到15天之内连续不睡觉 河南一女子40年没睡过觉,专家监控48小时之后,终于揭开真相
- 怀念小时候过春节,真好!
- 倪虹洁|43岁倪虹洁自曝感情经历,结过婚,生过娃,热恋男友比她小
- 雀斑「斑后」关于长斑你了解多少?吐血整理知识点必须要记住!