格斯设计师 在装修报建时,需要什么图纸和注意事项?
文章图片
文章图片
文章图片
文章图片
文章图片
文章图片
无论是商品房装修 , 还是商铺、办公室、餐厅、娱乐场所装修 , 都需要在装修时提交报建图纸给到物业管理处等相关部门报批 , 审批通过后会有一张装修许可证 , 把它贴在装修现场 , 你就可以进场装修了 。
那么 , 报建图包括有那哪些图纸?
一般物业管理处的报建图纸包括:原始平面图、平面布置图、拆墙平面图、间墙开线图、天花布置图、电位布置图、给排水布置图、卫生间沉池大样图、强电系统图等 , 有了这些图纸基本上可以满足95%以上的报建要求 , 剩下的5% , 有些部门可能还会要求主要空间的效果图 。
因此 , 报建之前 , 要先问清楚相关部门需要提供哪些报建图纸 , 避免不必要的麻烦 。
下面详细说下报建图纸的内容要求和注意事项:原始平面图
▲原始平面图
原始平面图是指毛坯状态下 , 没装修前的平面图 。 需要把承重柱、窗、阳台门、卫生间沉池表示出来 。
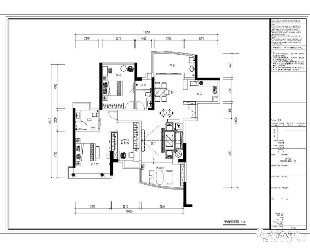
平面布置图
▲平面布置图
平面布置图是指经设计改造而布局的图纸 , 要有家具布置和空间文字说明 。
【格斯设计师 在装修报建时,需要什么图纸和注意事项?】拆墙平面图
▲拆墙平面图
拆墙平面图是根据平面布置图要求而拆除墙体的图纸 。 要注意承重柱绝对不能拆除 , 不然审批不会过 。
间墙开线图
▲间墙开线图
间墙开线图是根据平面布置图要求而砌筑墙体的图纸 。
天花布置图
▲天花布置图
天花布置图是指顶面设计的图纸 。 要有标高、材质、灯具等内容 。
电位布置图
▲电位布置图
电位布置图是指室内的电源插座、网络插座、电视插座的分布图纸 。 要有图例、标高等说明 。
给排水布置图
▲给排水布置图
给排水布置图是指室内的地漏、排水口、水龙头、花洒的分布图纸 。 也要有图例、标高等说明 。
卫生间沉池大样图
▲卫生间沉池大样图
卫生间沉池大样图是指沉池的架空施工工艺 。
强弱电系统图
▲强电系统图
强电系统图是指室内强电的漏电开关、电源线径等的分组图纸 。
需要注意的事项:
- 报建图纸不能出现有违建项目 , 例如:卫生间和厨房改变位置 , 阳台不能封闭 , 承重墙不能拆和改建等等 。
▲铝合金窗封阳台
温馨提示:原则上报建图和装修施工图是两套不同的图纸 。 报建图最好在原始平面图基础上做最少的改动 , 因为只要出现一点违建就给你打回去重改;装修施工图则是按设计方案出的图纸 , 就算有违建只有业主和装修公司知道 。
经验总结扩展阅读
- 人性潜规则:你的价值,决定着你在别人心里的位置
- 人生的意义,就是接纳生活的所有,在生活中改变自己
- 厉害的人,都在培养自己这几种能力,希望你也有
- 付出过才知道,这三种人,不值得放在心上
- 卡耐基告诉你:提升女人气质的方法,在于这四点
- 一个没太大能力又无学历的离异女人在深圳有房有车,未来会怎样?
- 本文转自:晋州普法如果人在7到15天之内连续不睡觉 河南一女子40年没睡过觉,专家监控48小时之后,终于揭开真相
- 经常在办公室讽刺我们的女同事,净身出户了,如今送外卖为生
- 想念不联系,牵挂不打扰,把你放在内心深处,是我最后爱你的方式
- 发型 光遇:绊爱迎来重在优化,发型与发饰拆开,玩家:你到是返场啊?