做建筑的老和尚 6X15m的地块怎么设计住宅?看看这个住宅你就知道了

文章图片

文章图片

文章图片

文章图片

文章图片

文章图片

文章图片

文章图片

文章图片

文章图片

文章图片

文章图片

文章图片

文章图片
建筑外观
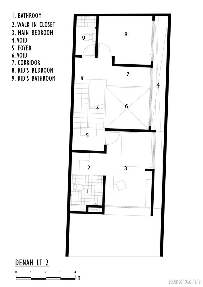
该项目位于印度尼西亚的雅加达 , 基于场地的尺寸 , 一个小尺度的建筑如何在空间舒适度上令人满意呢?这或许才是这类住宅最重要的需求 , 而不是天花乱坠的设计理念 。 而空间舒适常常涉及一些因素 , 比如自然采光、通风等等 。 因此 , 建筑师从这些因素出发 , 试图设计出一个拥有充足采光和自然通风的房子 , 并希望能在有限的预算下 , 节省建造成本 。
建筑外观
卧室
卫生间
建筑入口
入口停车场
会客厅
会客厅
会客厅与楼梯
满足一个住宅的自然采光和通风 , 通常只能说是一个建筑最基本的诉求 , 在这个前提下 , 如果能够为空间带来更多的附加价值 , 或许才能称得上是值得借鉴的优秀作品 。 而这个住宅正是如此 , 建筑师提出了分离和增长的概念 , 随着使用者居住的时间的加长 , 现有的空间未必能满足未来的需求 。 因此可能会产生扩建或加建的需求 , 而这个地块的局限就在于左右被邻居住宅紧紧挨着 , 地块也比较局限 , 扩建的位置比较不现实 。 而业主原先表达的诉求也是希望在未来在纵向上往上加盖 , 这不仅对于周围邻居的采光可能会有影响 , 而且建筑立面势必会被改变 , 两者之间的平衡可能会带来较大的经济预算 。
经验总结扩展阅读
- 女神“宽胯”的鲨鱼裤美女,擅长打造优雅靓丽风,魅力无穷
- 人性潜规则:你的价值,决定着你在别人心里的位置
- 梦里的人,不会因为梦的荒诞,从而察觉是梦
- 计划真为难江疏影了,跟84斤的佟丽娅同框,腰勒的衣服全是褶子
- 氧化人到多少岁开始有老年斑?可能和你想的不一样,早知早好
- 人生的意义,就是接纳生活的所有,在生活中改变自己
- 厉害的人,都在培养自己这几种能力,希望你也有
- 女人,永远不要羡慕别人的生活
- 下巴伊人小课堂 | 护肤:人人都有的“面霜”,怎么用才有效?
- 中国最有名的3座名山,你都去打卡了吗?有生之年建议都去一趟
