做建筑的老和尚 破旧的体育大楼改造成私人住宅:新与旧的碰撞( 二 )
文章图片

文章图片

文章图片

文章图片
“世界上并不缺少美 , 而是缺少发现美的眼睛 。 ”这是法国著名雕塑家罗丹的一句名言 , 我想大家都不陌生 。 对于这句话的理解 , 我想能够无限拓宽我们对于空间的理解 , 常有人对不加修饰的室内空间戏称为叙利亚风 , 这当中或许更多的表达了经济实力上的缺陷和无奈 , 当然也是一种自嘲方式 。
不加修饰的处理 , 总是以表现材质本身自带的肌理感来表达空间 , 粗野主义便是其中的代表 。 而破旧不堪的旧房子或许跟粗野主义本身没有太大的关系 , 只是表现出来的形式有所类似罢了 。 试想粗野主义有其自带的空间美感 , 那如果是破旧不堪的旧房子呢?它有其自身的价值所在吗?如果将其放在一个真正的开发商角度 , 或许它的价值低到可以忽略 。 毕竟它面对的是大多数的市场消费者 , 这种对于空间美感的理解本身就被平均化了 。 而当它作为一个私人住宅空间去思考时 , 或许就能碰到真正欣赏并理解其美感的主人了 。 今天小编就要给大家介绍一个由破旧的体育大楼改造而成的私人住宅 , 看看它在新旧之间碰撞出了什么样的火花 。
建筑外观
该项目位于荷兰的鹿特丹 , 原有建筑是一个废弃的战前体育大楼 , 自从被废弃后 , 就从来没有被修整过 。 原本的功能属性令其本身具有自身的空间属性 , 尤其是其连续的大跨度空间 。 这个属性作为一个废弃多年的建筑来说 , 是最为突出的空间特点了 。 这对于常见的私人住宅来说 , 是很特别的空间尺度 。 因此对其的改造 , 便着重关注在如何保留这种连续空间的可能 。
建筑入口
细部
建筑外观
室外休闲平台
室外休闲平台
室外休闲平台
室外休闲平台夜景
室外休闲平台夜景
室外休闲平台夜景
室外休闲平台夜景
休闲平台看向室内
建筑夜景图
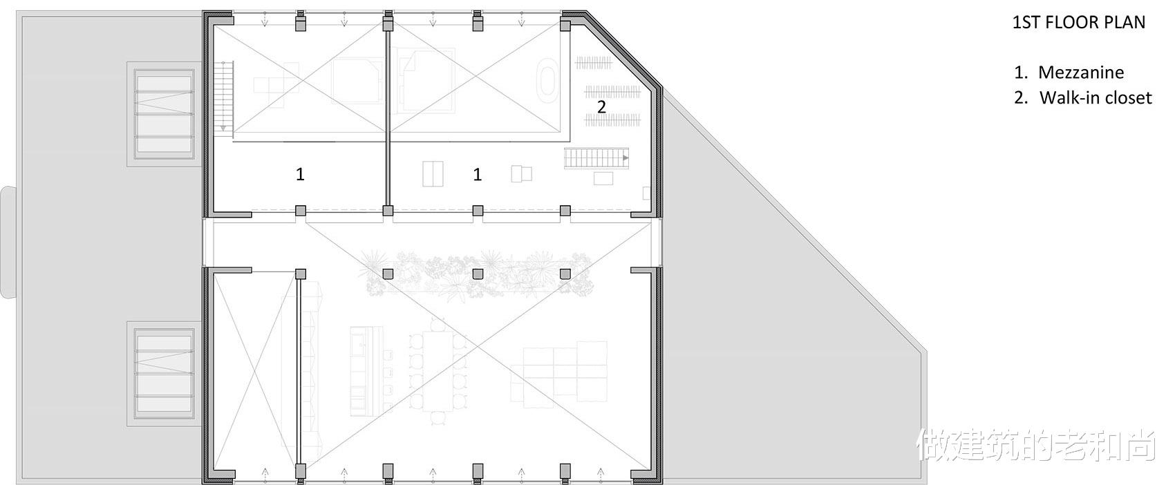
基于保留连续空间的设计策略 , 建筑在拆除了天花和一些墙体后 , 便没有进行更多的拆除了 。 留下一个大跨度的连续空间 , 而在此基础上 , 便是通过置入不同的功能区来进行划分 。 并且在划分的过程中 , 并未将分隔的单元直接到顶 , 而是在正常的尺度下 , 从上方封住形成内部空间 。
泳池看向室外
泳池
泳池
泳池看向生活公共区
泳池夜景图
泳池夜景图
泳池夜景图
过道
过道
客厅看向室外平台
客厅
新置入的独立空间单元与拆除后的裸露混凝土屋顶及部分墙体形成了鲜明的对比 , 而原先的体育大楼是一个连续的大空间 , 对于住宅来说 , 势必会影响到采光 。 因此在屋顶处两个采光天井的置入 , 可以很好地解决空间中部采光不足的问题 。 而将其他重要功能空间都往建筑的四周布置 , 并将原有的侧高窗改成了大面积的玻璃窗及落地玻璃窗 。
【做建筑的老和尚 破旧的体育大楼改造成私人住宅:新与旧的碰撞】
客厅看向厨房和餐厅
客厅
厨房看向客厅
客厅
厨房与餐厅
经验总结扩展阅读
- 女神“宽胯”的鲨鱼裤美女,擅长打造优雅靓丽风,魅力无穷
- 人性潜规则:你的价值,决定着你在别人心里的位置
- 梦里的人,不会因为梦的荒诞,从而察觉是梦
- 计划真为难江疏影了,跟84斤的佟丽娅同框,腰勒的衣服全是褶子
- 氧化人到多少岁开始有老年斑?可能和你想的不一样,早知早好
- 人生的意义,就是接纳生活的所有,在生活中改变自己
- 厉害的人,都在培养自己这几种能力,希望你也有
- 女人,永远不要羡慕别人的生活
- 下巴伊人小课堂 | 护肤:人人都有的“面霜”,怎么用才有效?
- 中国最有名的3座名山,你都去打卡了吗?有生之年建议都去一趟
