合肥李秀玲设计师 这种u型奇葩户型,采光差动线过长,开发商不好出手,设计师有招

文章图片

文章图片

文章图片

文章图片

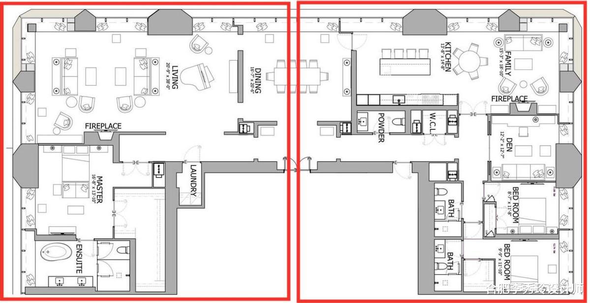
遇到奇葩户型更是伤脑筋 , 见过枪型、缺角等奇葩户型 , 没想到还能遇见U型户型 , 这要是入手这样的户型 , 该咋装呢?
我们国内大部分买房 , 都会追求户型方正、南北通透 , 这是好房型的最基本要求 , 如果缺角或是南北不通 , 便是差户型 , 印象大大减分 。 装修中见到的U型衣帽间、U型厨房 , 却没见过U型的奇葩户型 , 它暴露出来的缺陷 , 大概有以下这3条:
装修的时候 , 除了业主的设计需求外 , 以上暴露出来的户型问题得逐一解决才行 , 到底如何来改造装修呢?
针对户型进深太深的问题 , 四周都是公共墙和承重墙 , 无法拆改了 , 所以只能从内部来解决 。 这里选择在客厅和阳台之间打造极窄玻璃门 , 尽可能让光线更多的进到室内来 , 改善采光和通风 。
针对空间长而窄 , 整个客餐厅空间做开放式布局 , 没有隔断阻隔 , 同时柜体或家具选择极简风 , 天花板顶面也不做复杂吊顶 , 吊平顶 , 四周走边来装饰 , 这样一点不压层高 , 空间感更敞亮一些 。
针对动线问题 , 主要是因为U型户型造成的 , 因此将U型户型 , 中间分两半 , 一半作为共享动区 , 一半作为独立静区 , 这样动静区不混乱 , 也让动线距离尽可能的缩短 。
比如客餐厅和厨房在U型户型的同一侧 , 会客、就餐以及烹饪斗线距离比较短 , 方便生活;
比如另一半作为静区 , 三个卧室+2个卫生间 , 让卧室功能集中 , 这样共享动区和静区之间不会相互打扰 , 有利于获得更好的睡眠 , 家人之间也有自己独立的空间 。
紧挨着卧室的两个卫生间 , 方便晚上起夜上厕所 , 或者平时一起床 , 就能刷牙、洗漱 , 很方便 , 不用从U型户型这边跑到那边 , 大大提高效率 。
如果U型户型两侧的进深不深的话 , 那么更适合作为公寓房或者是三世同堂之家 , 在U型户型中间的位置 , 可以打造双客厅和餐厅 , 一侧作为爷爷奶奶的卧室 , 另一侧是业主和孩子的卧室 , 这样三代人居住都OK , 不会互相打扰 , 但也可以相互照料~
除了U型户型 , 现在很多U型别墅或自建房 , 相比一般的方形房子 , 这样的布局 , 即使只有一层 , 能够拥有更多的房间 , 中间空白的地面 , 可以用来种花草 , 打造成花园 , 或者铺满甲板 , 打造成休闲区 , 悠然自得日子非常惬意 , 退休后住上这样的房子 , 想想都开心~
(图片部分源于网络)
经验总结扩展阅读
- 本文转自:合肥交通广播前段时间孙海洋寻子成功后 邢台寻亲男孩刘学州疑被生母拉黑,发声称再遭亲生父母遗弃
- 设计第241期(教程) 平面设计师逆袭之路,学完这些工作轻松找
- 头发 5款短发过渡期发型图鉴!不用设计师也好整理,轻松撑过卡脖期
- 进行保姆级设计师色彩攻略
- 发型换发型堪比整容,网红设计师示范大饼脸胖妹到“瓜子脸宋慧乔”
- 实时UI设计师好用的配色网站和实时预览技巧
- 护肤品 被包装劝退,却被品质折服,这些国产护肤品难道请不起设计师吗?
- 恒美安徽合肥:女子在一美容机构脂肪填充后脸上竟长“肉球”
- 我国[合肥平面设计培训] 现在学习平面设计还有前途吗?
- 女神为了瘦,女人们极尽能事,为了瘦,设计师们的想象力变得丰富。
