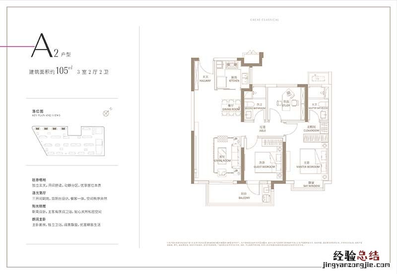
南京市秦淮区大成雅境花园建筑面积为105㎡的户型是三室两厅两卫的户型,具体户型图如下:

文章插图
来源:南京网上房地产
图片仅供参考,以实际为准 。
【南京大成雅境花园105平方的户型是怎样的?】拓展阅读:怎么去大成雅境花园
乘坐地铁2号线到达大明路地铁站,从大明路地铁站4号口出 , 步行1.3公里即可到达;
乘坐公交708路/703路/126路/168路/46路到达南京市中医院公交站下,步行即可到达;
乘坐公交27路/99路到达春天家园公交站下,步行即可到达 。
以上内容仅供参考,以实际为准 。
经验总结扩展阅读
-
-
如何设置卡西欧手表闹钟,这种卡西欧手表如何关掉闹钟,老是在12点响很多次-烦人。谢谢!
-
-
女子远嫁后和老公吵架,一气之下回娘家,父母闭门不见
-
莜面和荞面的区别有哪些,荞麦面与莜面有什么区别,荞麦面和莜麦面的区别
-
-
-
-
-
-
2022年12月31日大写怎么写 教你如何书写2022年12月31日大写
-
-
染发 女人到了花甲之年,尝试这些“白发造型”才高级,比染发洋气多了
-
-
-
-
-
心灵小店|中秋团圆,被想念的你也在想念远方的他吗?
-
风雨兼程 1984年,程琳一曲《风雨兼程》,传遍九州方圆!
-