
南京市秦淮区金地大成雅境花园户型图如下:
人才房户型图
南京大成雅境花园人才房均价为44200元/㎡ , 其中包括约89㎡的户型和约118㎡的户型,具体的人才房户型图如下:
88㎡两室两厅一卫

文章插图
来源:金地商置江苏
89㎡两室两厅一卫
【金地大成雅境户型图 金地大成雅境 户型图】

文章插图
来源:金地商置江苏
118㎡三室两厅两卫

文章插图
来源:金地商置江苏
以上图片仅供参考,以实际为准 。
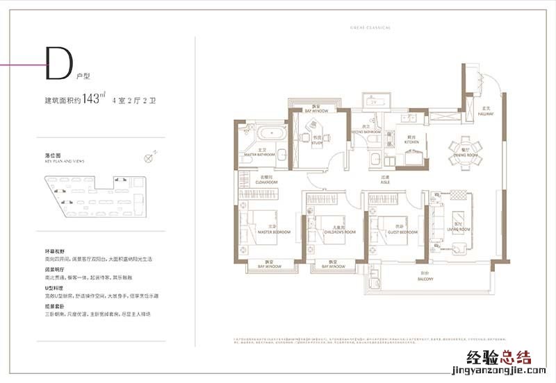
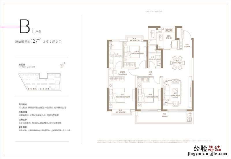
其他房屋户型图

文章插图
来源:南京网上房地产

文章插图
来源:南京网上房地产

文章插图
来源:南京网上房地产

文章插图
来源:南京网上房地产

文章插图
来源:南京网上房地产

文章插图
来源:南京网上房地产
以上图片仅供参考 , 以实际为准 。
