杭州三塘公寓公租房户型图
以下图源于:杭州住保房管官网,仅供参考 , 以实物为准

文章插图
三塘公寓1单元807,907,1007(仅供参考)

文章插图
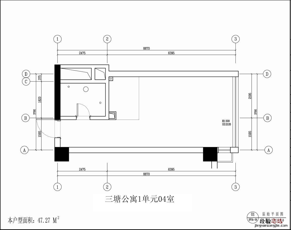
三塘公寓1单元404,504,704,804,1004(仅供参考)
[右键“目标另存为”下载原图]

文章插图
三塘公寓1单元1807(仅供参考)

文章插图
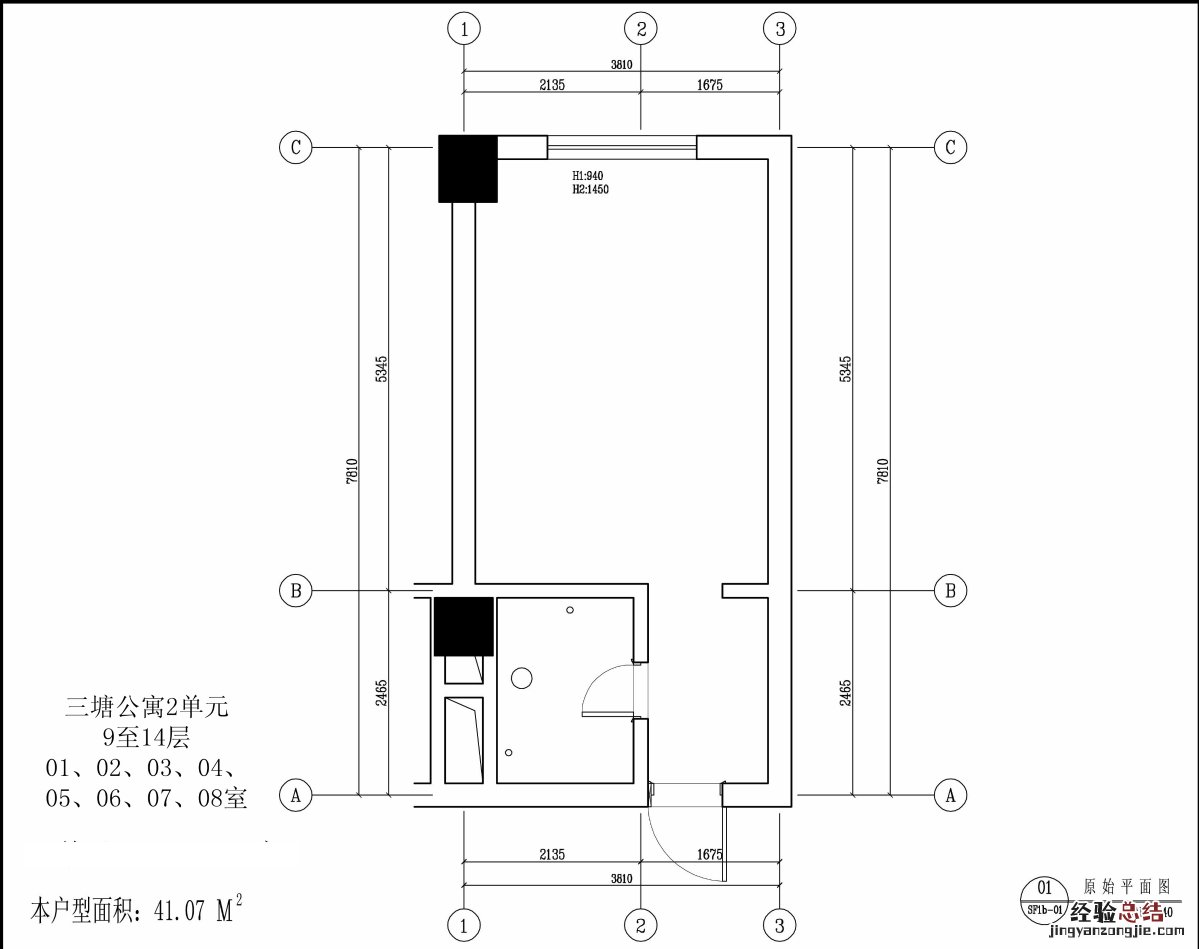
三塘公寓2单元1001,1005(仅供参考)

文章插图
三塘公寓3单元1007(仅供参考)

文章插图
【杭州三塘公寓公租房户型图一览表 杭州三塘公寓公租房户型图一览】三塘公寓3单元1807(仅供参考)
经验总结扩展阅读
-
刘秉|民间小故事:一碗鸡汤,五人送命,有些时候,友情比亲情更加靠得住
-
-
|给56岁有钱男人生了女儿后,我深深体会到了什么叫做从天堂到地狱
-
你持续奋斗的勇气才是你是这个世界上最值得关注的人或事他人的点醒才是你应该是梦醒时分的时候...|人生的关键在于自我的内心和自我的满足
-
电脑上的注册表是什么意思怎么用 注册表机制源处何处
-
别格一楼 这款欧式别墅,色彩搭配温馨优雅,与乡村美丽的小镇风格非常协调
-
口头语言表达的三要素是什么 口头语言表达的三要素分别是什么
-
-
-
-
中国易经风水|鼻子看运势,“穷鼻子”“富鼻子”,看你的鼻子值不值钱?
-
-
-
-
-
-
父亲|搞笑GIF段子:妹子,你还是悠着点,腿受了伤还敢玩滑板!
-
-
2022年10月29日买牛黄道吉日 2022年农历十月初五买牛吉日
-