
璟阅新寓项目位于栖霞区龙潭板块,东至知贤路,南至临港路,西至金港南路,北至后曹路 。璟阅新寓有建筑面积为120.12㎡的三室两厅两卫户型、96.95㎡的两室两厅两卫户型、90.06㎡的两室两厅一卫户型和73.41㎡的两室两厅一卫户型等,具体的户型图如下:
【中骏东原璟阅新寓户型图 中骏东原阅璟山户型图】三室两厅两卫 120.12平方米

文章插图
来源:宜居南京
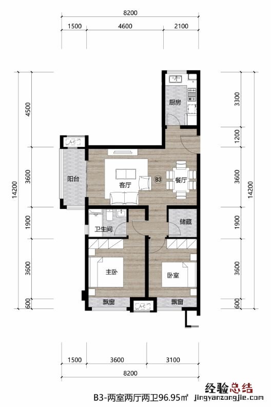
两室两厅两卫 96.95平方米

文章插图
来源:宜居南京
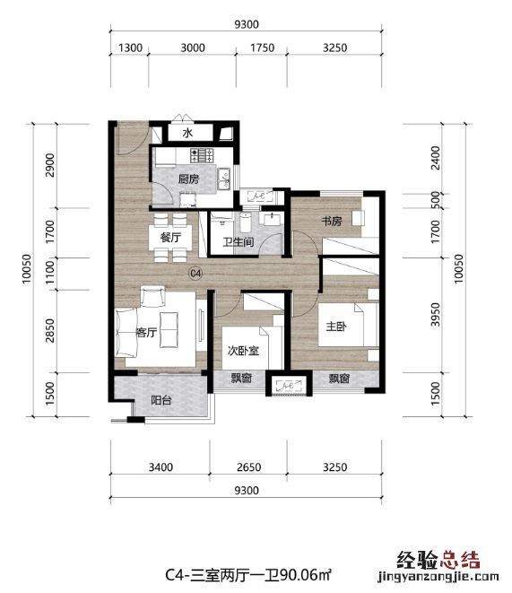
三室两厅一卫 90.06平方米

文章插图
来源:宜居南京
两室两厅一卫 73.41平方米

文章插图
来源:宜居南京

文章插图
来源:中骏in东南

文章插图
来源:中骏in东南

文章插图
来源:中骏in东南

文章插图
来源:中骏in东南

文章插图
来源:中骏in东南

文章插图
来源:中骏in东南
以上图片仅供参考,以实际为准 。
