小拾谈装修|看了她家,才知道低饱和度的空间有多舒适,全屋没有一丝俗气

文章图片

文章图片

文章图片

文章图片

文章图片

文章图片

文章图片

文章图片

在新房设计中 , 很多人为了能让空间表现出惊艳 , 抢眼的视觉效果 , 都会穿插大量高饱和度的色彩来做点缀 。 事实上 , 这种做法虽有最直观的视觉效果 , 但也容易让人产生审美疲劳 。 因此 , 若打算久居的话 , 是不建议这样做的 。
像本期案例中的这位屋主在装修时 , 为了避免审美疲劳问题 , 就是以低饱和度色彩来定位空间的 。 虽说完工后的效果 , 没有那么的抢眼 , 但全屋所透露出的气息 , 却让人十分的舒适 , 并且还非常显品质 , 没有一丝的俗气感 。
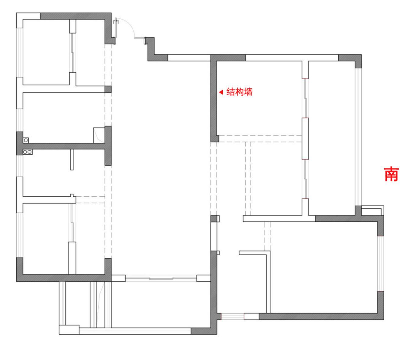
平面结构图
新房位于苏州 , 建筑面积146㎡ , 加上赠送的面积 , 算是四室两厅两卫的格局 。 虽说新房面积很大 , 但结构却不太理想 。 尤其是客厅朝东这个问题 , 极大影响了居住体验 。 同时 , 由于结构墙的存在 , 对空间改造也产生了比较大的影响 。 因此 , 如何提高空间的通透与采光 , 也是要作为设计重点来考虑的 。
平面方案图
空间布局改造如下
【小拾谈装修|看了她家,才知道低饱和度的空间有多舒适,全屋没有一丝俗气】1、考虑到厨房面积比较小 , 且屋主夫妇对厨房的需求率比较高 , 直接将其与旁边的房间打通 , 既让空间合理化了 , 也实现了一个大厨房的功能 。
2、由于南阳台空间过于鸡肋 , 将次卧延伸出去 , 并重新规划出一个房间 , 也保留了原户型四室的功能 。
3、将东阳台两边墙体拆掉 , 并纳入到客厅中 , 可以进一步提高空间感 。
餐厅
入户就是餐厅 , 墙面以留白为主 , 并通过部分浅咖元素来点缀 , 既可以弱化白调的单一 , 又能为空间赋予一抹温柔的气息 。
考虑到餐厅采光不足 , 采用少即是多的设计手法来处理 , 不仅避开了空间的繁杂 , 低饱和度的原木运用 , 也点缀出了一抹诗意的空间意境 。 同时 , 圆形餐桌配置 , 也提升了空间的流畅性 , 从而让生活动线更加的自然、舒适 。
进门鞋柜则是以功能柜的结构 , 设计在了餐厅侧面 , 以满足全家人的入户收纳需求 。 当然 , 该储物柜也兼具了餐边柜的功能 。
餐厅看向客厅视角 , 顶面直接拉平 , 并采用无主灯设计 , 可以让空间显得更加简约、干净 。 而给地面铺上中性色的地板 , 则起到了加深空间层次的作用 , 以避免空间产生轻浮俗气感 。
经验总结扩展阅读
- 什么家有柯基:柯基幼犬可以吃什么 小柯基吃什么又营养又健康?
- 下巴伊人小课堂 | 护肤:人人都有的“面霜”,怎么用才有效?
- 小美女子做全麻隆鼻,术后2天竟发现当时已怀孕,术前检查却毫无征兆
- 《开端》众生皆苦!除了小人物让人破防,还隐藏着什么样的思考?
- 母猫人会出现难产,猫也会,当你的猫遇上难产的问题时保大还是保小呢
- 悲痛!代驾小哥惨遭门砸死,生命最后6小时,他有多绝望?
- 本文转自:晋州普法如果人在7到15天之内连续不睡觉 河南一女子40年没睡过觉,专家监控48小时之后,终于揭开真相
- 怀念小时候过春节,真好!
- 倪虹洁|43岁倪虹洁自曝感情经历,结过婚,生过娃,热恋男友比她小
- 雀斑「斑后」关于长斑你了解多少?吐血整理知识点必须要记住!
