珊珊为何来迟|90平现代三居室,一眼就被这个艺术风格十足的电视墙吸引
文章图片
文章图片
文章图片
文章图片
文章图片
文章图片
几年现代风格深受广大业主的喜欢 , 对于90平米三居室的房子来说 , 现代无疑是一个很好的选择 。 一位业主花8万装修出90平米现代三居室 , 装修完效果好到爆 , 亲戚朋友都争相模仿 。
客厅是一个家的中心 , 也是一家人活动最密集的场所 , 因此客厅装修不光要光鲜亮丽 , 还要满足日常的生活需求 。
一眼就被这个艺术风格十足的电视墙吸引 , 极具格调品味 , 为整体的设计都增色不少 。
餐客空间靠的很近 , 墙面显眼的装饰做了很好的区分 。
换个角度看依旧十分喜欢电视墙 , 明亮的空间感也让人身心愉悦 。
整体简洁大方 , 格调高雅 。
简单那的沙发墙也让人眼前一亮 , 原本素色的客厅瞬间变得气质活跃 。
卧室作为休息使用的房间来说 , 最好是方方正正的 , 不规则的不大好 , 多角形的也不好 。 一是利用率不高容易浪费空间 , 而是容易产生压迫感 , 容易让神经变得紧张 。
衣柜门也格外有特色 , 黑白格子很现代 。
主卧墙面刷成清新的单色调 , 打造舒适纯净的休息环境 。
粉粉嫩嫩的儿童房 , 窗台正好布置小书桌 , 为孩子提供安静的学习场所 。
卫生间最好要装防水式的插座 , 或者加上一个外壳 , 用来防水 。 地漏要装在最低点 , 防水施工的时候最适合的方法就是涂抹防水法 , 浴室防水的高度不要少于180cm 。
灰色调卫生间 , 时尚大方
餐桌的选择需求注意与空间大小配合 , 小空间配大餐桌或者大空间配小餐桌都是不合适的 , 因为购买的实质问题 , 业主很难把东西拿到现场开展比较 , 因此 , 在餐厅装修的时候先测量好所喜好的餐桌尺寸后 , 拿到现场做比较 , 可避开过大过小 。
黑框玻璃门隔断厨房和餐客大空间 , 也保持了整体的采光 。
现代厨房布局的主要特征是按操作顺序设置设施 , 使操作者能按部就班地操作 , 从而减少往复交叉的重复做功 。
近处看更有时尚感 , 很现代风格的厨房 。
书房装修的颜色不要太复杂 , 书房颜色一般以浅色为主 , 这样有利于集中注意力 。 书房环境的颜色和家具颜色 , 使用冷色调居多 , 这有助于人的平稳心境 。
榻榻米次卧 , 来客的时候可以做临时客房 , 平时也是可以做休闲的书房 。
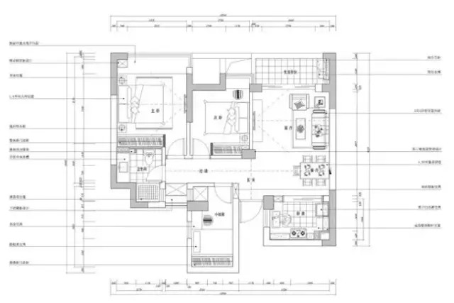
【珊珊为何来迟|90平现代三居室,一眼就被这个艺术风格十足的电视墙吸引】户型图
经验总结扩展阅读
- 林庆昆|《完美伴侣》“离婚了,我就没有家了!”林庆坤为何是这个反应?
- 葛薇龙|三刷《第一炉香》:明知道乔琪不爱自己,葛薇龙为何还要嫁给他?原因有三
- 全麦面包 为何减肥瘦了十几斤,体型却没变化?或跟5个原因有关,早做了解
- 分析面部美学分析一下,为何一些演员扮演古装会变丑
- 两性关系|为何男人害怕40岁的女人?男人坦言:原因只有3点
- “我们公司只招聘未婚人士”,为何企业会有这样的要求?
- 孙磊|完美伴侣:孙磊年薪200万,为何又被开除?两点原因说明孙磊活该
- 江南征|《王牌部队》高粱与江南征的爱情,为何一波三折?
- 完美伴侣:孙磊年薪200万,为何又被开除?两点原因说明孙磊活该
- 吴敏 完美伴侣:吴敏因为爱情而来的婚姻,为何走到如今局面?三个原因