小拾谈装修|不设主卫,不设造型墙,她家的空间氛围,真的太让人羡慕了
文章图片
文章图片
文章图片
文章图片
文章图片
文章图片
文章图片
文章图片
文章图片
其实在新房设计中 , 不设造型墙 , 不设主卫生间 , 也算是比较正常的情况 , 毕竟每个家庭的需求以及户型结构都不一样 。 可在户型面积大的情况下 , 不设主卫生间 , 就比较少见了 。 毕竟多一个主卫 , 在生活中也会更加便捷一点 。
本期带来的这套大户型案例 , 就没有设计主卫生间 。 虽说这种处理方式挺让人费解的 , 但当设计重点转变到空间氛围营造上后 , 却立马表现出了令人羡慕的空间气息 , 就仿佛家里的每个角落 , 都透露着惬意与慵懒 。
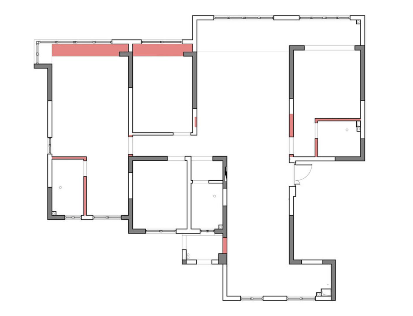
平面结构图
本案坐标南京 , 建筑面积180㎡ , 四室两厅三卫的户型 , 屋主一家三口 。 或许是因为当下的生活节奏太快 , 或许是想给孩子打造出一个亲近自然的居住环境 。 所以在空间定位上 , 屋主十分希望能营造出一个慢生活方式的姿态 。
而从原户型上来看 , 整体也算是比较工整 , 不过考虑到家里用不到那么多房间 , 以及不喜欢主卫这个功能 , 所以在空间布局上 , 也进行了一番调整 。
平面方案图
空间布局改造如下
1、直接以开放式来设计书房 , 这样既与客餐厅形成了一体化结构 , 也解决了入户缺少收纳的问题 。
2、餐厨区同样采用一体化的结构来设计 , 从而让每块空间都实现贯通 , 并突破固有的空间边界 。
3、南阳台以多功能来定位 , 以兼具生活与休闲的需求 。
4、原主卧为套间结构 , 不过考虑到屋主不喜欢主卫这个功能 , 所以将卫生间独立在外 , 让空间实现双客卫功能 。
餐厅
入户就是餐厅 , 空间以灰白调来定位 , 似乎一进门就为空间赋予了静谧的气息 。 考虑到入户没有合适的收纳位置 , 鞋柜采用转角的方式并延伸到书房 , 不仅带来了大量的收纳能力 , 也保证了墙体的工整性 。
当餐厨区采用一体化的结构来设计后 , 不做过多复杂的造型 , 直接搭配中岛台将餐桌居中而设 , 既简约又保证了动线的舒适性 。 而侧面整面墙的餐边柜设计 , 不仅充分利用了空间 , 拼色造型的饰面处理 , 也与墙面有了呼应 。
客厅
相较于餐厅区的静谧 , 客厅则充满了温暖的空间氛围 , 从而让屋主可以静心享受生活的小美好 。 墙顶面放弃造型设计 , 并以最简单的留白方式来处理 , 则巧妙还原了空间本质 , 并带来了不俗的品质感 。
经验总结扩展阅读
- 什么家有柯基:柯基幼犬可以吃什么 小柯基吃什么又营养又健康?
- 下巴伊人小课堂 | 护肤:人人都有的“面霜”,怎么用才有效?
- 小美女子做全麻隆鼻,术后2天竟发现当时已怀孕,术前检查却毫无征兆
- 《开端》众生皆苦!除了小人物让人破防,还隐藏着什么样的思考?
- 母猫人会出现难产,猫也会,当你的猫遇上难产的问题时保大还是保小呢
- 悲痛!代驾小哥惨遭门砸死,生命最后6小时,他有多绝望?
- 本文转自:晋州普法如果人在7到15天之内连续不睡觉 河南一女子40年没睡过觉,专家监控48小时之后,终于揭开真相
- 怀念小时候过春节,真好!
- 倪虹洁|43岁倪虹洁自曝感情经历,结过婚,生过娃,热恋男友比她小
- 雀斑「斑后」关于长斑你了解多少?吐血整理知识点必须要记住!