珊珊为何来迟|130平现代风四居室大气流畅,充足的采光为灰调空间注入温暖

文章图片

文章图片

文章图片

设计师给我们展现了一个灵活开放的空间 , 将隔断的空间打破 , 做到各功能区的融合 。 空间的流通正如家人或爱人之间彼此割不断的羁绊 。 大理石肌理如流水般接连着客餐厅 。 泼墨般大气流畅 , 充足的采光为灰调空间注入温暖与生命 。
客厅的设计 , 制造宽敞的感觉是一件非常重要的事情 , 不管家的空间是大还是小 , 在室内设计中都需要注意这点 。 宽敞的感觉可以带来轻松的心境和欢愉的心情 。
软装陈设为家带去独特的调性 。 经典百搭的皮质沙发和柔软的地毯带来极致的居家感受 。 听着小曲 , 仿佛瞬间回到了与你相遇的阳光明媚的午后 。
泼墨般大气流畅 , 充足的采光为灰调空间注入温暖与生命 。
卧室的整体设计是比较通透和明亮的地板壁纸的装修和家具都不要那么的繁琐复杂装饰品也要简单大气.主要以实用功能为主 。
主色调为灰茶色 , 原木地板与地毯的融合为房间注入阳光般的温暖 。
次卧是准备给未来孩子的房间 , 相对于主卧 , 次卧更简洁 。 橙色代表创造与活力 , 枕边的小熊正静静等待着那位小主人的降临 。
书房的素色搭配为业主创造冷静思考的氛围 。 灵活调节的百叶窗可随时隔绝室外的纷扰 , 还你一个纯粹独立的学习空间 。
餐厅装修风格是让很多人头疼的问题 , 其实流行风格每年都会变化 , 选择自己最喜欢的即可 。 我们在餐厅装修的时候可以简单装饰 , 像装饰画、挂盘都可以使用 , 不需要花费多大力气 。 如果餐厅的桌椅家具都买齐了 , 就差钱不知道怎么弄了 , 这种做法是最适合的 。
餐厅与厨房沿袭了客厅的整体风格与配色 , 厨房台面与吧台结合 , 更具功能性 。 嵌入式厨房家电和大面积的收纳柜腾出了更多的空间 。
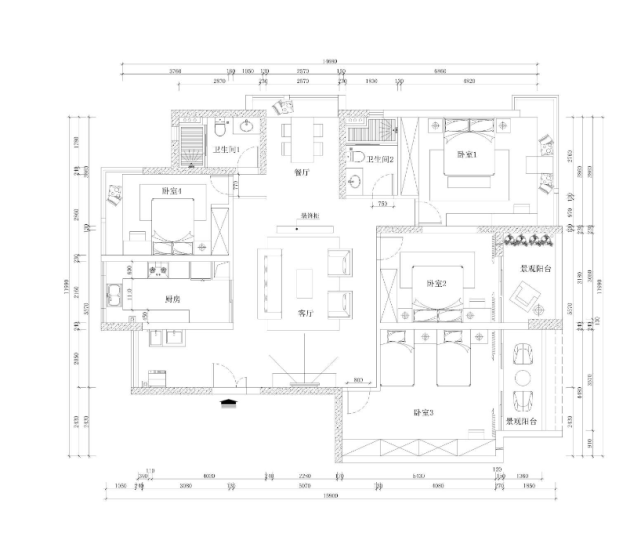
【珊珊为何来迟|130平现代风四居室大气流畅,充足的采光为灰调空间注入温暖】130㎡四居室现代风格平面布置图
经验总结扩展阅读
- 林庆昆|《完美伴侣》“离婚了,我就没有家了!”林庆坤为何是这个反应?
- 葛薇龙|三刷《第一炉香》:明知道乔琪不爱自己,葛薇龙为何还要嫁给他?原因有三
- 全麦面包 为何减肥瘦了十几斤,体型却没变化?或跟5个原因有关,早做了解
- 分析面部美学分析一下,为何一些演员扮演古装会变丑
- 两性关系|为何男人害怕40岁的女人?男人坦言:原因只有3点
- “我们公司只招聘未婚人士”,为何企业会有这样的要求?
- 孙磊|完美伴侣:孙磊年薪200万,为何又被开除?两点原因说明孙磊活该
- 江南征|《王牌部队》高粱与江南征的爱情,为何一波三折?
- 完美伴侣:孙磊年薪200万,为何又被开除?两点原因说明孙磊活该
- 吴敏 完美伴侣:吴敏因为爱情而来的婚姻,为何走到如今局面?三个原因
