梦想家|新娘设计师自己打造婚房,90平北欧风小家功能全,有品质更有颜值!
【梦想家|新娘设计师自己打造婚房,90平北欧风小家功能全,有品质更有颜值!】

文章图片

文章图片

文章图片

文章图片

文章图片

文章图片

文章图片

文章图片

新娘设计师自己打造婚房 , 90平北欧风小家功能全 , 有品质更有颜值!当家装设计师真好 , 不但可以为别人设计温馨舒适的小窝 , 获得成就感 , 自己有家的装修设计也不用愁了!小编认识的一位美女设计师不但经常帮助别人规划新房 , 还为自己和爱人打造出一个现代时尚浪漫舒适的北欧风小婚房 , 让身边的朋友的闺蜜羡慕不已!
她和老公的爱巢是一套建筑面积90平米的小两居户型 , 老公长得高大帅气 , 是一名摄像师 , 有时经常到外地拍摄 , 婚纱照是同事帮助拍照的 , 太省钱了!因原有户型比较规矩方正 , 并没有做太大格局调整 , 只是在狭小的玄关走廊内拆除右侧部分墙体做了嵌入式玄关鞋柜 , 并次卧做了榻榻米书房 , 规划出一个独立的小衣帽间 , 方便入户衣物等收纳的需要 。
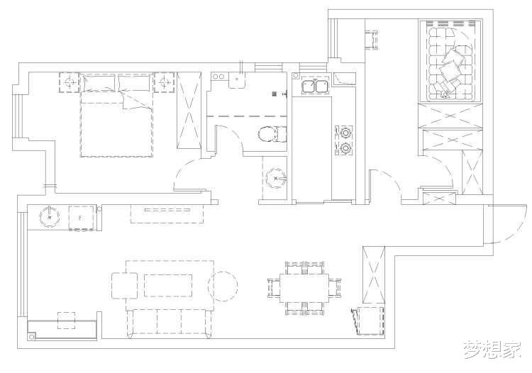
平面布置图整体室内装修简洁实用 , 品质颜值兼具 , 二人世界温馨浪漫又美好!
客厅从玄关走廊进来就是客餐厅的公用区域 , 阳台打通后让整体空间更有延伸感 , 有种大房子的通透感觉 。 客餐厅墙面选择了淡淡的灰色墙漆 , 与白色天花板和原木色地板搭配 , 清新自然 , 明亮舒适 。 电视墙上安装一台超大的LED液晶电视 , 底部安装一个白色悬空式隔板充当电视柜 , 简洁时尚大气 , 置放着大小绿植点缀而后美化室内环境 。
电视对面放一副灰色长条布艺沙发 , 两侧是同色系的脚凳和休闲座椅 , 中间摆放着小巧的圆形小茶几 , 下面铺着北欧风格的地毯 , 在装饰挂画和小抱枕等点缀下 , 让时尚端庄的会客空间更显活泼优雅 , 大方得体 。
沙发右侧还摆放一个精致的圆形小边几 , 上面放着清新的小绿植 , 为室内增添生活情趣 。
休闲椅后侧打通的阳台内一侧规划为工作区 , 配置了连接书架的实木工作台和黄色小座椅 , 在这里临时工作明亮舒适又安静 。
对面规划为洗衣区 , 定做了白色吊柜和洗衣柜 , 并在洗手池台面下嵌入洗衣机 , 方便日常洗衣晾晒及洗涤用品、用具收纳等 。
餐厅
餐厅在玄关走廊进来左侧位置 , 靠墙定做了白色餐边柜和实木搁架 , 用于收纳和置放餐厅餐具、调味瓶、饮品及小电器等 。 里侧墙角处摆放来双门大冰箱 , 为厨房释放了更大储物空间 。 对面放一张简约式的四人位餐座椅 , 点缀着相框和饰品 , 营造出清新自然舒适的用餐氛围 。
经验总结扩展阅读
- 梦里的人,不会因为梦的荒诞,从而察觉是梦
- 补充三型胶原蛋白填充,肌肤抗衰不是梦
- 顿悟:这才是面对梦想的姿态
- 李奕霏19岁女孩花百万按照刘亦菲整容,梦想破灭后,她的现状如何
- 胡因梦|好的婚姻,需要三次放弃
- 我用这张图,启发孩子思考2022年梦想行动清单
- 故乡|无数日夜常相望,不尽山海梦他乡
- |凌梦飞:爸爸的旅程
- 摄影Lolita:阳光、糖果、就如早春的苏醒,留下一个甜美的游乐园之梦
- 新娘|河南一新娘穿羽绒服结婚,婆家不愿意租婚纱:怀孕了,省点钱
