装好宅|256平的别墅装修,家具简洁款式新颖,恰到好处的精致很完美

文章图片

文章图片

文章图片

文章图片

文章图片

文章图片

文章图片

文章图片
今天和大家分享的这个装修案例是一个天津的别墅设计 , 别墅周围的环境也很优美 , 整个被绿水环绕着让人感觉十分的舒适 , 家里装修的时候选择了美式轻奢风的设计 , 去繁从简保持了功能至上的装修理念 , 简化家里的装修设计和布置 , 家里选择了大面积的白色护墙板作为背景 , 家具也是比较简洁新颖的款式 , 整个房屋的装修和布局都很有特色 , 用恰到好处的精致装饰了这个256平方米的别墅 , 营造了一个完美典雅的家居空间 。
256平的别墅装修 , 家具简洁款式新颖 , 恰到好处的精致很完美
房屋户型:别墅
房屋面积:256平方米
装修预算:50万元以上
所在城市:天津
设计师:王文琦
主要建材:茶镜、灰镜、烤漆玻璃、壁纸、铁件
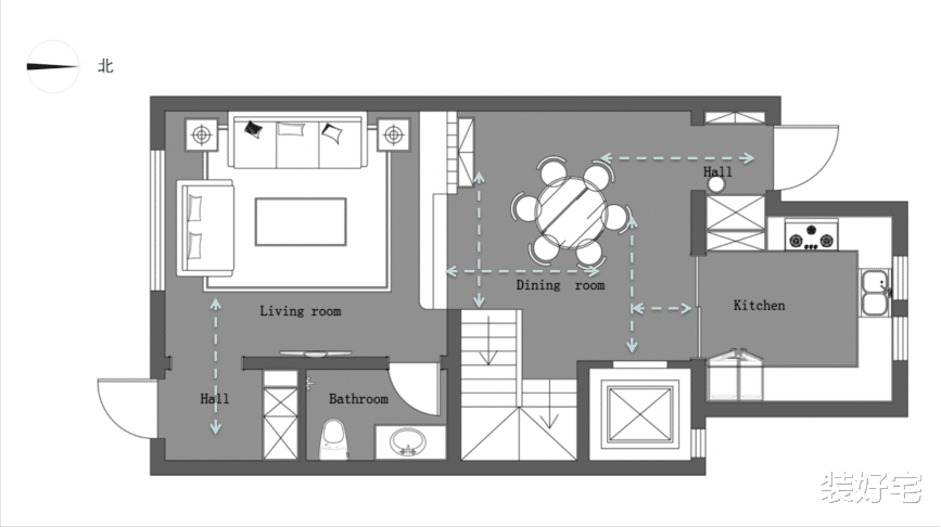
【户型图】
家里是地下一层地上三层另外还赠送了一个阁楼 , 所以家里的使用面积也要比实际的面积更大一些 , 装修的时候也是多出了很多可以利用和调整的面积 , 让家里的每一处空间都很宽敞结构也很合理 , 这个房屋是一家人在居住 , 所以装修的时候选择了家人都比较喜欢的美式轻奢风设计 , 用恰到好处的设计来打造舒适的家居空间 。
【装好宅|256平的别墅装修,家具简洁款式新颖,恰到好处的精致很完美】
【客厅】
设计重点:简单不失特色
客厅整体的装修设计都比较简单 , 整体是以简洁为主的设计 , 简单大方却不式特色 , 白色为主的空间设计也很简洁 , 保证了室内的光线 。
家里的家具都是很明确的美式风格 , 搭配上硬装的线条设计之后也很舒适美观 , 提升了整体的居住品质 。 孔雀蓝和柠檬黄的加入也为客厅的空间增添了生机和活力 , 金属元素的加入也是整个客厅的一个亮点所在 。
客厅的电视背景墙特意用线条打造出了壁炉得造型 , 给人一种温暖的氛围感 , 壁炉的上面还可以当做置物架用来摆放装饰品和摆件 , 提升了客厅的时尚气息 。
另外家里也选择了一些镜面的设计 ,提亮了整个客厅的光线 , 同时也丰富了空间的层次感 , 恰到好处的镜面就可以代替奢华的装饰 。
【厨房】
设计重点:超强储物柜
厨房创新的选择了超大的储物柜 , 增加了厨房的收纳空间 , 一般这种定制的储物柜都是设计在玄关区域 , 没想到放在厨房也很实用 。
厨房的电器都选择放置在橱柜里面 , 节省了外部的空间同时也会更加安全 , 很好的保护了厨房的电器 。
经验总结扩展阅读
- 国内最大私人豪 宅!比故宫大10万平方米,被称为“中国民间故宫”
- 北京独居大爷曝 光1300平住宅后,我才明白有钱从来就不等于富有
- 白景琦|《大宅门》:漫谈白景琦娶香秀为太太的背后—白家权力悄然交接
- |杨受成孙女庆生礼物摆满豪宅,准儿媳张罗拍照,生娃两年仍未结婚
- |刘嘉玲被曝将出售上海三层复式豪宅,叫价1.8亿,自带花园游泳池
- 成膜教你宅在家里如何养出好皮肤
- 杨九红|大宅门:同样母女分离,把大格格和杨九红对比一下,差距就出来了
- 戴安娜王妃|戴安娜的生活有多奢侈?每年买衣服花百万,为和情人幽会买乡间豪宅
- 女神宅男女神石原里美,五官没有一个突出,组合在一起却堪称完美
- 李靓蕾|王力宏死性不改!带3壮汉闯李靓蕾住宅,被质疑是为了抢孩子
