惠泽设计|夫妻爆改二手房,80㎡黑暗二居变实用三房,父母同住也不挤,佩服

文章图片

文章图片

文章图片

文章图片

文章图片

文章图片

文章图片

文章图片

文章图片

文章图片

文章图片
夫妻爆改二手房 , 80㎡黑暗二居变实用三房 , 父母同住也不挤 , 佩服刘先生和妻子是一对90后 , 暂时还没有宝宝 , 由于父母年龄有些大了 , 准备接过来一起住 , 方便照顾 , 又考虑到将来要宝宝的问题 , 因此夫妻决定对新买的一套80平米的两居室二手房进行格局调整和改动 , 准备再增加一个房间 , 满足将来一家5口在一起居住的基本要求 。
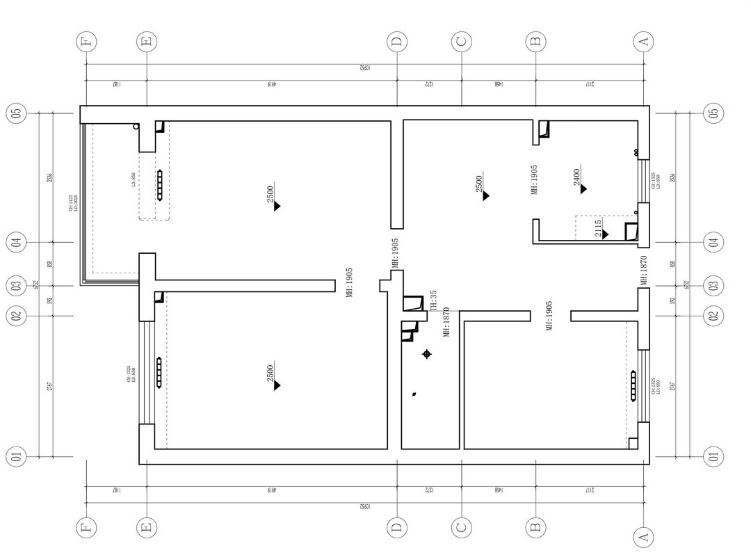
原始户型图上图是原始户型图 , 可以看出原来进门左侧是次卧 , 旁边的卫生间十分狭小 , 客厅还算宽敞 , 餐厨区也比较黑暗 , 因此 , 经过与设计师沟通 , 决定:1、将客厅改成主卧;2、原来主卧变老人房;3、卫生间向次卧一侧扩充 , 增加面积;4、次卧改书房 , 以后有宝宝也可变儿童房;5、客餐厨做开放式布局 , 提高空间利用率 。
经过整体改造 , 又原来黑暗小两居变身舒适实用温馨时尚的小三房 , 衣帽间、三分离卫浴全有 , 太舒适实用了!
入户玄关入户是一个小玄关 , 右侧墙面安装一面换衣镜 , 左侧做了一面通顶的实木大柜 , 门口处是玄关衣帽柜 , 收纳一家人出入穿的衣物和鞋子等 , 里侧大柜一直延伸到客厅 , 与电视柜融为一体 , 非常简洁时尚气派 。
整面的大柜中还设计两个实木隐形门 , 分别通向书房和卫生间 , 而棚顶上的电动投影幕布安装电视墙柜前方 , 方便家里一起看电影及电视节目 。
客厅这是正面看向电视墙柜的视角 , 正面大柜有藏有露 , 储物形式丰富 , 收纳置物展示皆宜 , 非常实用便利 。
对面白色背景墙上安装了投影仪 , 底部放一个米色布艺沙发 , 前方放一张圆形实木小茶几 , 平时父母经常在这里喝茶聊天 , 周末与儿子儿媳一起看场电影 , 一家人其乐融融十分幸福!
客厅由原来餐厅改造而成 , 打通厨房隔墙后让室内变得通透宽敞 , 白色+原木色空间一定不显压抑 。
餐厨区餐厨区做了一体化布局 , 采用开放式设计 , 时尚宽敞大气 。
餐厅厨房与客厅直接连接橱柜延伸出一个吧台 , 两侧摆放小餐椅 , 这里就是一家人用餐的餐厅 , 也起到区域划分的隔断作用 , 下厨时还可以作为厨房的备餐台 , 让一物多用功能叠加 。
经验总结扩展阅读
- 化妆品包装盒厂家告诉你,医美化妆品包装盒定制也可以设计成这样
- 田国辉|广西边境民警夫妻两次推迟婚礼 共同坚守南疆国门抗疫一线
- 01孔夫子说过:“饮食男女 夫妻感情不和,离不开两件事
- 经验教程电商详情页设计教程,平面设计素材,广告设计培训,美工设计培训
- 体系设计展厅设计视觉体系彰显空间档次
- 迫于生活的压力 夫妻两地分居,为何男人都不想老婆?
- 前段时间 夫妻相处8年后,经常做这5件事,说明关系不好,彼此不爱了
- 设计第244期(教程) 真棒! 欧美风酷炫网页设计WEB视频教程
- 设计第241期(教程) 平面设计师逆袭之路,学完这些工作轻松找
- 疫情下餐厅空荡荡,哈尔滨夫妻相拥痛哭,网友:哭出餐饮人心声!
