鑫东颖装饰装修|118㎡新中式,现代极简的硬装,古朴大气的软装,营造庄重雅致

文章图片

文章图片

文章图片

文章图片

文章图片

文章图片

文章图片

文章图片

文章图片

文章图片

文章图片

在这套118平米的房子装修中 , 空间整体以现代简约的大方格调 , 通过在家居与细节处加入端庄的中式元素 , 呈现出一种简洁大方而自然的禅意与雅韵 , 在这个静雅轻松的空间下 , 结合质朴端庄的中式气质 , 给人以安静从容的惬意感 。
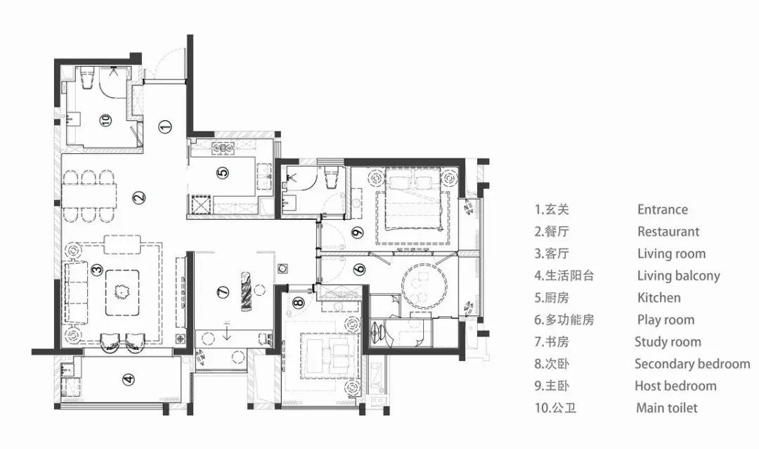
平面布置图
客厅
一日之计在于晨 , 朝露伴随着阳光一起迎接新的生活 。 同时加入素雅的室内墙体、大理石地板的铺设 , 多处的植物装饰进行点缀 , 让中式古典装修风格的传统意蕴从细节上凸显主人生活的典雅与高贵 。
▲在这个新中式的客厅 , 罕见地在新中式风格空间里采取了无主灯的设计 , 电视墙加入大理石背景墙的设计 , 布置上深木色的电视柜 , 布置花瓶与装饰画 , 带来一种现代高级的端庄与优雅感 。
▲灰色硬包背景的沙发墙 , 挂一幅横幅装饰画 , 搭配整体中式元素的家具与细节 , 也显得简约舒适而大气 。
▲边几上布置中式小鸟笼与盆景 , 上方一盏吊灯设计 , 也让空间充满端庄精致的儒雅气质 。
▲朴素的布艺沙发 , 布置上中式盆景、茶盘、抱枕与凳子等细节 , 在简约舒适的空间下 , 铺叙出一种端庄高级的中式雅韵感 。
▲靠窗位置布置一张休闲沙发与小茶几 , 也提供了一个惬意轻松的休闲一隅 。
餐厅
▲餐桌连贯着客厅空间 , 餐厅背景墙一幅圆形的挂画 , 结合餐桌上方一排气球状的玻璃灯泡 , 也使得用餐空间更加温情华丽而高级精致 。
▲“民以食为天” , 中式设计中 , 餐厅与餐桌的布置设计 , 是一种家的温馨的象征 , 石材餐桌+实木架的布艺餐椅 , 餐桌上布置精致的餐具与花瓶 , 花瓶插上丹红的插花 , 让用餐氛围温馨而又成熟端庄 。
经验总结扩展阅读
- 什么各大女星的卸妆照,赵丽颖可爱,你觉得谁变化大呢
- 整体圆脸女生该如何从土气变时尚?看赵丽颖就知道了!
- 穿衣搭配 瞿颖的超模底子没丢,穿深V领连衣裙配红唇,看不出已经是大婶了
- 张靓颖|张靓颖:在父母离婚阴影中长大,失婚后情感状况怎么样?
- 冉莹颖 “二胎后,女儿得了抑郁症”
- 一身赵丽颖、刘丹、彭小苒、唐嫣、热巴、安悦溪,谁的异域装扮最美?
- 整形胡颖恺:潜心钻研 服务于民
- 赵丽颖顶流女星卸妆前后对比照,有的并无差异,有的却恍若换脸
- |春节档10部新剧,赵丽颖的农村剧诱人,雷佳音的新剧令我望眼欲穿
- 因为赵丽颖这圆脸气质妆容美到我了!6个方法!你也可以土气到时尚。
