美宅设计|户型改造,解决痛点!越简单越好!

文章图片

文章图片

文章图片

文章图片

文章图片

文章图片

文章图片

文章图片

文章图片

文章图片

文章图片

文章图片

文章图片

文章图片

文章图片

文章图片

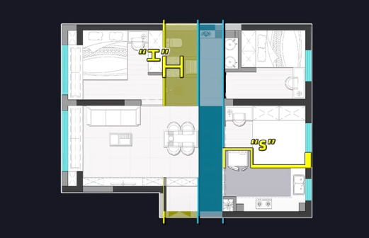
这是北京七十五平方米三居室 , 未来常住四口人 。 从这入户客餐厨 。
书房两间卧室 , 一个卫生间 , 非常紧凑的三居室 , 好在户型方方正正 。 一般人要是有这户型就知足了 。
但是委托人说入户没有鞋帽柜呀 。 书房只能床和书桌二选一 。
小卧室一点收纳空间都没有 。
四口人挤一个卫生间 , 哎呀 , 太难受 。
而且入户门对着卫生间门 。
小卧室这有一个很明显的羊角 。
总之就是房间数量够用 , 但是功能配置完全不够用 。
而且可调度的空间一共就这么大 。
可咋整?
我们来户型好 。
其他问题多少可以忍 , 但是卫生间必须优先处理 。 老少三代四口人需要三分离 , 卫生间可以做成 。
这样 。 但是洗衣机没地方了 。
而且入户门对着镜子 。
或者是这样 。
呃 。
洗衣机还是没地方?而且洗手盆当不当正不正的 。
很奇怪 。
所以我们试着 。 窗边给一米二五的内尺 。
有马桶区 , 有淋浴区 , 留出过道对面做洗漱区 , 这里再加一道工字墙 , 侧面嵌入壁龛 , 正面嵌入洗衣机 。
经验总结扩展阅读
- 化妆品包装盒厂家告诉你,医美化妆品包装盒定制也可以设计成这样
- 经验教程电商详情页设计教程,平面设计素材,广告设计培训,美工设计培训
- 体系设计展厅设计视觉体系彰显空间档次
- 设计第244期(教程) 真棒! 欧美风酷炫网页设计WEB视频教程
- 设计第241期(教程) 平面设计师逆袭之路,学完这些工作轻松找
- 科技?这样的创意一直用一直爽!台北国际电脑展 COMPUTEX Taipei 动态品牌视觉设计
- 方法用了图形创意设计肖像法让作品轻松吸睛
- 设计春节过年虎年海报设计!太太太赞了…
- 设计案例分享:适老化居家改造该怎么做?(下)
- 瘦脸 圆脸女生剪短发要记住这三点,按这八款发型设计,减龄瘦脸更时尚
