爱家仁家 150平老房改造 | 化繁为简,中国式大面积收纳,告别脏乱差!


爱家仁家 150平老房改造 | 化繁为简,中国式大面积收纳,告别脏乱差!
文章图片
爱家仁家 150平老房改造 | 化繁为简,中国式大面积收纳,告别脏乱差!
文章图片
爱家仁家 150平老房改造 | 化繁为简,中国式大面积收纳,告别脏乱差!
文章图片
爱家仁家 150平老房改造 | 化繁为简,中国式大面积收纳,告别脏乱差!
文章图片
爱家仁家 150平老房改造 | 化繁为简,中国式大面积收纳,告别脏乱差!
文章图片
爱家仁家 150平老房改造 | 化繁为简,中国式大面积收纳,告别脏乱差!
文章图片
爱家仁家 150平老房改造 | 化繁为简,中国式大面积收纳,告别脏乱差!
文章图片
爱家仁家 150平老房改造 | 化繁为简,中国式大面积收纳,告别脏乱差!
文章图片
爱家仁家 150平老房改造 | 化繁为简,中国式大面积收纳,告别脏乱差!
文章图片
爱家仁家 150平老房改造 | 化繁为简,中国式大面积收纳,告别脏乱差!
文章图片
爱家仁家 150平老房改造 | 化繁为简,中国式大面积收纳,告别脏乱差!
文章图片
爱家仁家 150平老房改造 | 化繁为简,中国式大面积收纳,告别脏乱差!
文章图片
爱家仁家 150平老房改造 | 化繁为简,中国式大面积收纳,告别脏乱差!

房屋地点:北京大兴区天宝园
户型:两厅三室两卫
面积:150平
风格:轻奢简约
尽管业主全程参与 ,
但是房子装修落地时 ,
还是给她带来了“惊艳”的感觉 ,
不同于之前房子到手时的“精装房” ,
设计师根据全家四口人的生活需求 ,
打造出一个风格简约 , 储物功能强大 , 区域划分合理的全新住所 。
房屋改造前

  1. 功能区域划分不明确 , 储物空间严重不足;
  2. 配色混乱无质感;

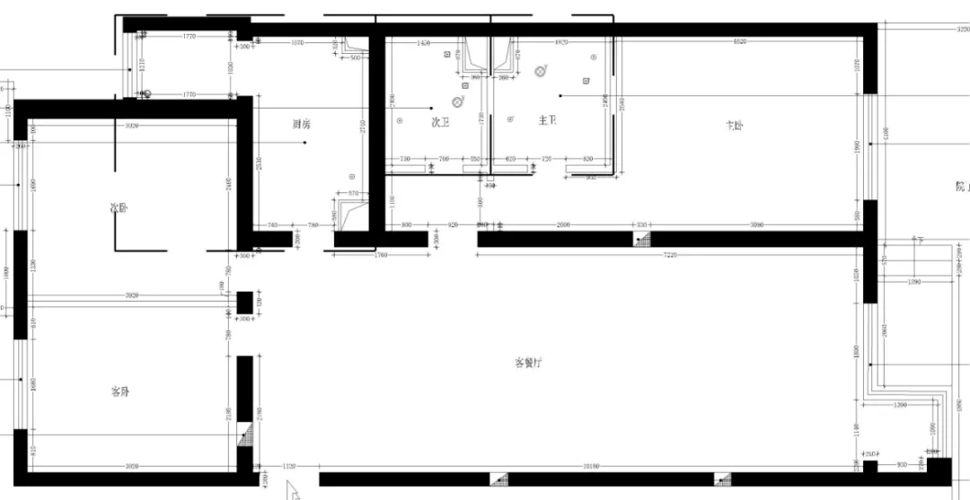
原始户型图
改造亮点
  1. 明确衣褥鞋帽储藏功能、餐边柜功能、读书区功能 , 保持动线舒适;
  2. 巧用橙色点缀 , 提升空间整体配色质感;

平面布局图
客餐厅
黑白呈现出的极简高级 , 加上原木色的自然温馨 , 与亮橙色的微微点缀 , 铺陈出专属于轻奢风格的精致与浪漫 。
极窄边黑框门窗既展现出艺术与前卫的气质 , 又能保障室内光线充足 。
▲客厅改造前
▲客厅改造后
“休闲吧台与读书角”定制空间既能充分利用户型死角 , 又能满足主人日常生活需求 。
自然摆放的书籍、小提琴、钢琴既彰显主人兴趣爱好 , 又塑造家庭生活品味 。

借助嵌入式电视背景墙打造平面效果 , 整个空间无过多装饰 , 简约大气 。 体现客厅完整性 , 凸显空间艺术气息 。
▲客厅改造前
▲客厅改造后
整面墙电视柜设计还可以增加很多储物空间 。
卧室
卧室整体色调以白色和原木色为主 , 打造简约气质 。 简单的顶天立地柜与书桌陈设可满足储物、收纳、休闲、办公等需求 。

经验总结扩展阅读