装修优姐 香港一家三口的小生活,43㎡也要装出仪式感,住着真安逸


装修优姐 香港一家三口的小生活,43㎡也要装出仪式感,住着真安逸
文章图片
装修优姐 香港一家三口的小生活,43㎡也要装出仪式感,住着真安逸
文章图片
装修优姐 香港一家三口的小生活,43㎡也要装出仪式感,住着真安逸
文章图片
装修优姐 香港一家三口的小生活,43㎡也要装出仪式感,住着真安逸
文章图片
装修优姐 香港一家三口的小生活,43㎡也要装出仪式感,住着真安逸
文章图片
装修优姐 香港一家三口的小生活,43㎡也要装出仪式感,住着真安逸
文章图片
装修优姐 香港一家三口的小生活,43㎡也要装出仪式感,住着真安逸
文章图片
装修优姐 香港一家三口的小生活,43㎡也要装出仪式感,住着真安逸
文章图片
装修优姐 香港一家三口的小生活,43㎡也要装出仪式感,住着真安逸
文章图片
装修优姐 香港一家三口的小生活,43㎡也要装出仪式感,住着真安逸

香港作为一座中国的高度繁荣的国际大都市 , 是国际性的一线城市 。 而香港的占地面积不算大 , 人口却众多 , 在2020年香港人口数量就达到了747万左右 , 香港的地可以说是“寸土寸金” , 房价更是高到“吓人” 。 今天我们要参观一下三口之家在香港定居后 , 装修的43㎡小家吧 。
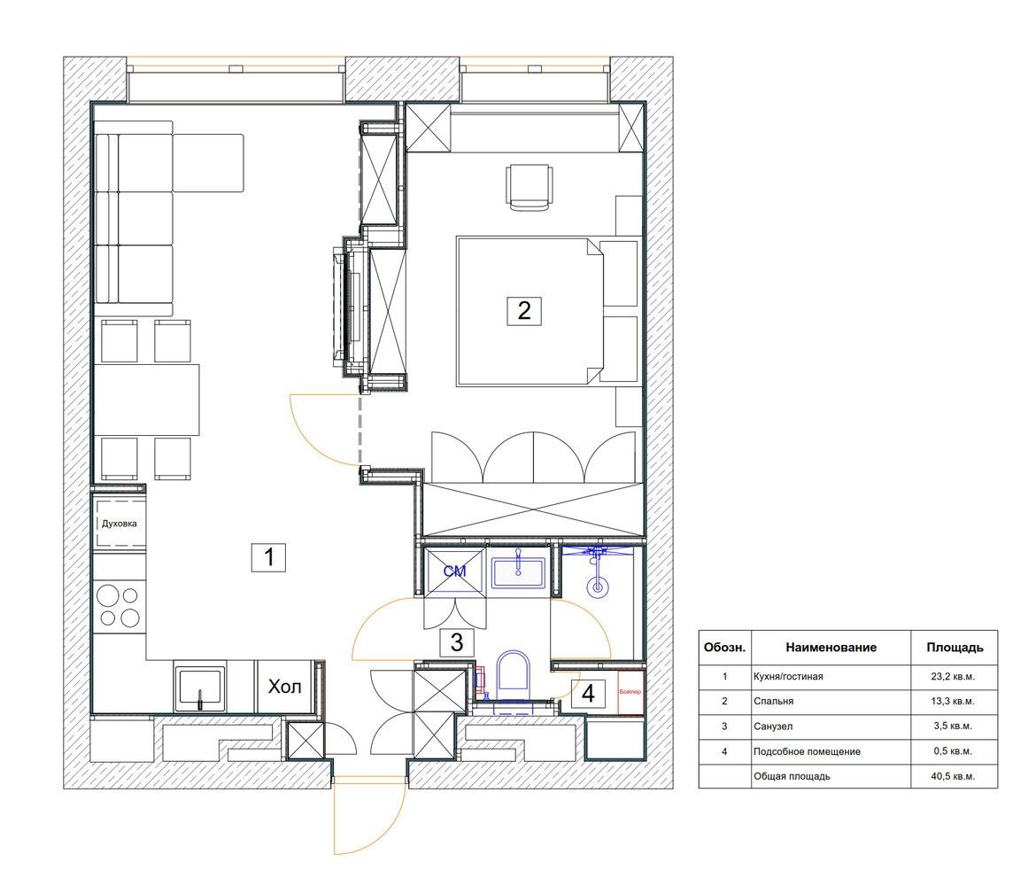
户型平面图
我们先来看看他们家的户型图 , 43㎡的房屋主要被分为四个区域 , 用餐区、客厅、卧室、卫生间 , 小小的屋子满足了三口之家在香港的基本生活 , 小家功能齐全 , 给人很踏实温馨的归属感 。
打开这家大门 , 进入玄关 , 我们可以看到左右两侧都按照了落地镜 , 这样的镜面墙装饰很有技巧 , 如果家里玄关空间较小也可以这样试试 , 能给空间有视觉上的扩大感 。
进入屋子就可以将客厅和餐厅一览无余 , 室内装修风格主要以简约为主 , 对于面积较小的房屋来说 , 简单的风格更能让空间看起来整洁美观舒适 。 客厅背景墙做了石膏线装饰 , 格子的形状让视觉上增加了设计感 。
客厅的沙发选择的亮黄色布艺沙发 , 鲜明的颜色让简约为主的室内装饰看起来更加明亮有色彩活力 。
【装修优姐 香港一家三口的小生活,43㎡也要装出仪式感,住着真安逸】电视机背景墙做成了壁炉式样的 , 一面墙的位置不仅放了电视机 , 还放了取暖器 , 既美观又做到了空间利用的合理化 。 电视墙边上开辟了一个书架的位置 , 利用本来的闲置空间增加了储物功能 , 而且书架靠近阳台 , 主人挑选书籍的时候 , 有自然的光线 。
客厅边上就是餐厅 , 摆放了一张四人餐桌 , 并且能给客厅和厨房做一个中间隔断 , 避免客厅沾染过多油烟味 。 餐桌灯非常别致 , 葡萄藤的造型为灵感 , 很有设计感 , 提升了整体空间的档次 。
餐桌边上就是厨房了 , 由于空间不足 , 九安装了开放式厨房 , L字型的厨房台面设计能利用到厨房的墙面空间 , 也不会显得厨房空间拥挤 。
厨房的橱柜门选用的是胡桃木的面料材质 , 这样的板材带给整体空间一种美式装修的风格 , 让本来简单的设计更加的多元化 , 看起来也很温馨 。

经验总结扩展阅读