无锡丽景佳苑二期南地块安置房项目(地址+规划)
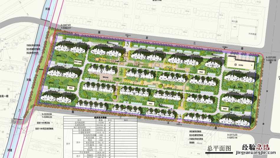
项目概况:项目位于新吴区振发三路南侧、孙安路西侧 。
规划设计方案:总用地面积约11.6万平方米,总建筑面积约30.2万平方米 , 其中地下建筑面积约9万平方米 。项目建成后,将提供2000余套安置房 。

文章插图
丽景佳苑三期东地块安置房项目
项目概况:项目位于新吴区长江东路北侧、孙安路西侧 。
规划设计方案:总用地面积约13.9万平方米 , 总建筑面积约32.8万平方米,其中地下建筑面积约9万平方米 。项目建成后,将提供约2200套安置房 。该小区配建一个15班幼儿园,占地面积约7200平方米 。
【无锡丽景佳苑安置房项目名称 无锡丽景佳苑安置房项目】

文章插图
