南京市秦淮区人才房具体的户型图如下:
人才房建面约92㎡H户型

文章插图
【钟山峰景苑人才房户型图】来源:钟山峰景
人才房建面约93㎡G户型

文章插图
来源:钟山峰景
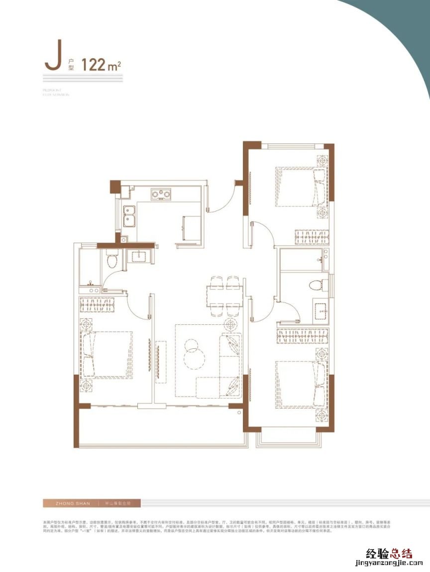
人才房建面约122㎡J户型

文章插图
来源:钟山峰景
以上内容仅供参考,以实际为准 。
拓展阅读:南京秦淮钟山峰景苑房价多少
根据南京网上房地产可知:南京钟山峰景苑住宅总均价为46723元/㎡
根据南京人才安居官网发布的《钟山峰景苑人才房预售公告》可知:南京钟山峰景苑人才房均价为46999元/㎡
以上价格仅供参考,以实际为准 。
经验总结扩展阅读
-
-
-
-
2022年9月20日适合修造坟墓吗 2022年9月20日是修造坟墓吉日吗
-
-
-
-
-
-
-
-
理发师|理发店理发先洗头再剪头发,里面有什么“套路”?说出来你都不信
-
-
-
女人,想要活出“高级感”,请要学会主动丢掉这5样东西!
-
-
2022年10月12日乔迁新居吉日一览表 2022年10月12日乔迁新居黄道吉日
-
“好色”的女人,通常都有这3个生活“习惯”,聪明男人一看便知
-
乐施会|国际组织乐施会:全球最富有的2153人资产比全球46亿人加起来还要多
-
星座先森|十二生肖中,一生极容易有好事发生的4个生肖