印集设计|「印集设计」国盛园墅360㎡现代极简风格案例

文章图片

文章图片

文章图片

文章图片

文章图片

文章图片

文章图片

文章图片

文章图片

文章图片

文章图片

文章图片

文章图片

文章图片

文章图片

文章图片

文章图片

文章图片

文章图片
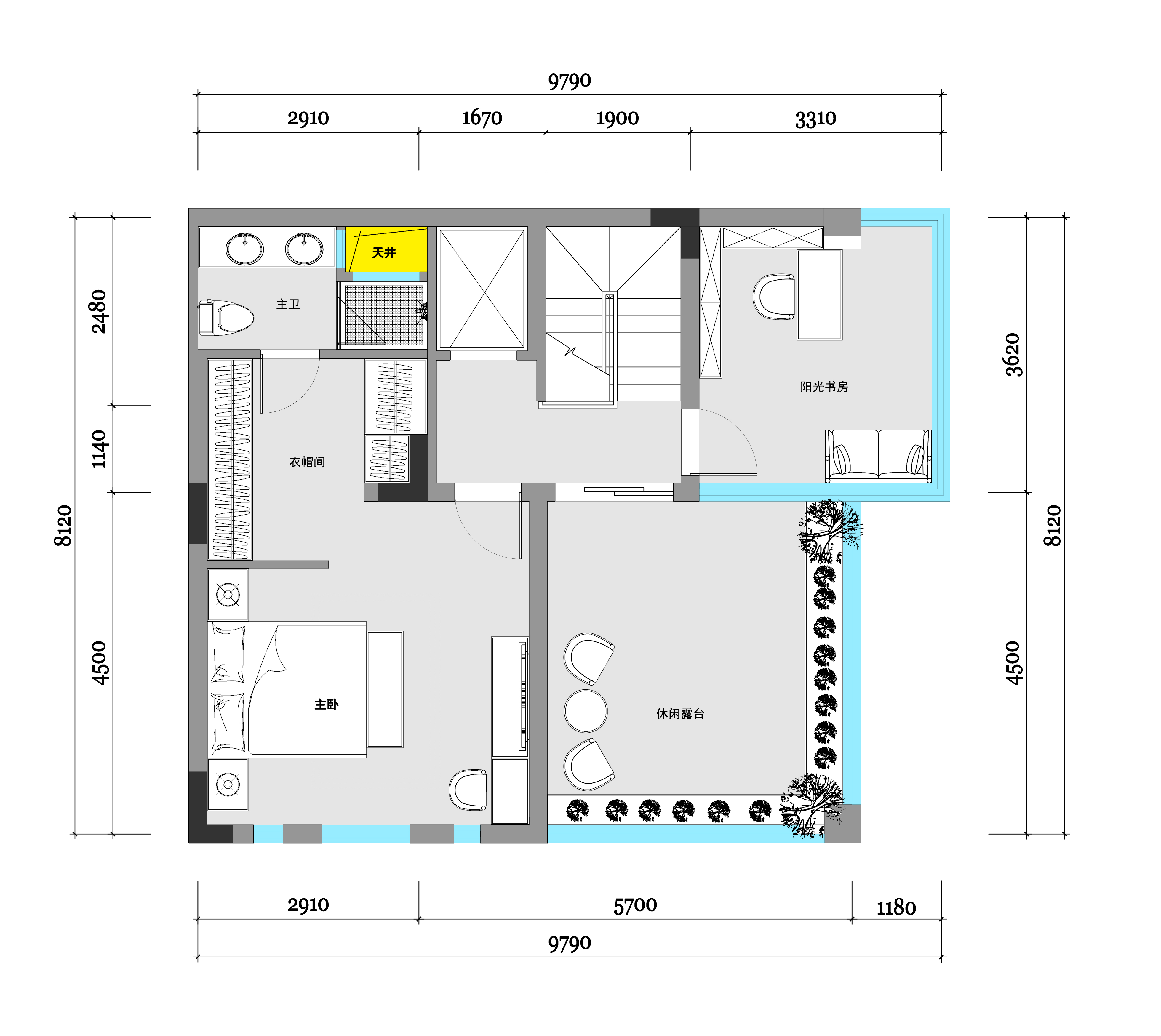
该项目位于目前火热的西永科学城片区 , 与融创茂、渝乐小镇等大热地点近在咫尺 。 是繁华都市中的静谧之所 。
项目Location:国盛园墅
面积Square meters:360㎡
户型House type:联排
风格style:现代极简
业主需求:
1.三代同堂 , 需要6个卧室 , 未来考虑二孩;
2. 注重室内空间合理性 , 期望每个空间都比较宽大;
3. 娱乐室要兼具休闲与亲子互动;
4. 特别要求要加装电梯;
5. 娱乐休闲空间要求:台球区、棋牌室、舞蹈练习区、儿童玩耍区;
6. 储物量比较大;
7.需要独立的书房;
8.厨房功能要求:宽大的台面 , 需要盛放泡菜坛子、米桶等等;
9. 餐厨空间要强调家庭互动 , 餐厅的酒柜、西餐台、水盆等等;
项目分析Project Analysis
▲一楼原始结构图
▲项目类型为联排而且是联排中少见的大横厅户型 , 端户 , 有前花园和侧花园 。
经验总结扩展阅读
- 人口「斑后」万亿颜值蓝海市场
- 雀斑「斑后」关于长斑你了解多少?吐血整理知识点必须要记住!
- 在我的印象中,冬天的阳光格外的暖
- 唯一被印在外国钞票上的中国人,凭自己的力量,拯救一个国家
- 发型 三个月甩24kg!日妞疯传「踮脚尖瘦身法」
- 毛孔疯了吗?「SK-II神仙水四件套」199元!囤再多都不够
- 用户「众测研究团」谁也逃不过真人实测!400人实测霓姿多功能美容仪
- 方法Summerccici老师为你介绍一下:去除印第安纹的方法
- 当面试官问「你能加班吗」是想问什么?怎么回答能加分?
- 水印低投入创业,新手开网店怎么选产品图
