装修优姐 台湾一位60岁阿姨,旧房大改造,装2个客厅真高级,拍照给大家看

文章图片

文章图片

文章图片

文章图片

文章图片

文章图片

文章图片

文章图片

文章图片

文章图片

现在许多老一辈的爷爷奶奶们还居住在十分老旧的小区里面 。 虽然整个小区的外面已经跟着市政的改造重新装修了一下 , 但是内部的装修和设计依然保留了以前的风格 。
本期给大家分享的家装案例是位于我国宝岛台湾上一个60岁阿姨的家 , 她和她的老伴已经在这个老旧的房子里面居住了三十多年 。 由于整个的房屋还是以前的装修 , 在这个信息化和现代化不断迸发的时代里面 , 显然这种装修设计已经淘汰了 。 而去年的时候 , 这对老夫妻 , 也重新的将他们的家进行了装修设计 , 赶了一波时尚和潮流 。 这段夫妻十分可爱地说 , “我们也要做时代的弄潮儿 , 而不能被时代落下” 。 这个改变就要从家装设计开始 , 追求现代时尚简约大气的装修风格 , 就是我们所踏出的第一步 。 说这个话的时候 , 他们自信满满 , 而从他们新的家装设计中 , 我们也很容易看出他们热爱生活 , 积极向上的一种心理状态 。
装修前
装修前整个房屋的风格是偏灰暗调的 , 整体上黄色、红色等颜色的运用都使整个房屋看起来十分压抑 。
由于整个的房屋空间设计的不合理 , 因此卧室区非常狭小和拥挤 , 造成的空间分配不合理 。 老旧又复古的装修风格 , 也会给人一种压迫感 , 在家里面居住着 , 会有一种学生沉闷的感觉 。
尤其是卫生间杂乱不堪 , 整个管道线路等等都暴露在外面 , 既不安全也不卫生 , 卫生间用品随意摆放 , 整个的储物空间也十分狭小 。
简而言之 , 整个的装修风格和格局都需要进行大改造 。
大家想知道这一波赶着时代的老年人夫妻 , 他们所装修的家是什么样子的吗?
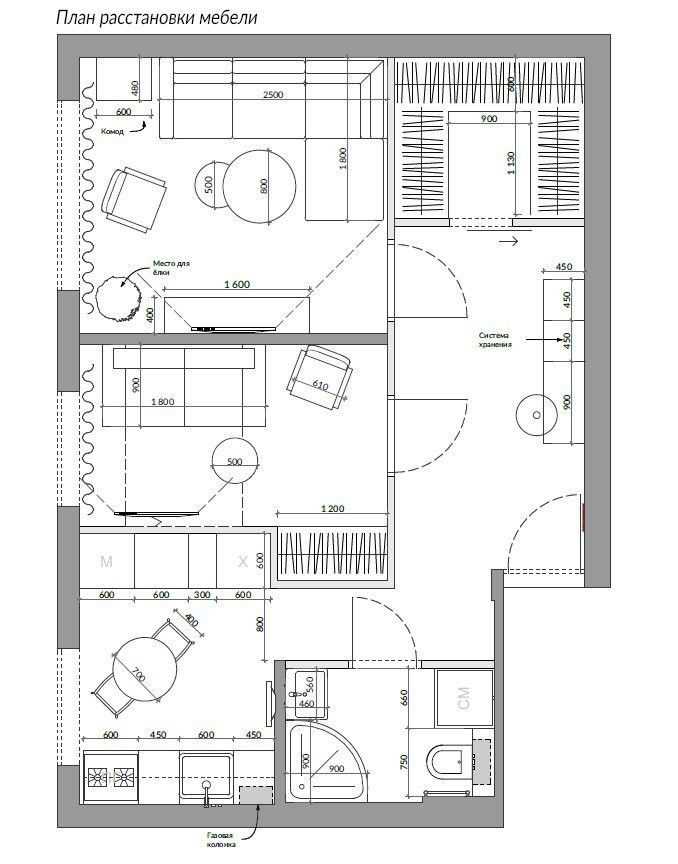
空间布局图
整个的空间总面积是41平方米 , 整体上户型比较规则 。
改造之后的户型 , 在原户型的基础之上做了一些调整 , 将客厅区缩小 。 另一侧做了一个衣帽间 , 将玄关处的面积扩大 , 整个一进去便给人一种敞亮感 。 而卧室和厨房之间的墙壁重新做了设计 , 增加储物功能 , 同时也作为一个隔断 , 整体上改造之后的设计风格是现代时尚风 。 在房屋内大量地使用白色和看起来比较敞亮的颜色 , 增加整个空间的视觉敞亮感 , 而不再像以前给人一种沉闷和压抑的感觉 。
经验总结扩展阅读
- 婚姻到底是什么?是相濡以沫还是相爱相杀?在台湾太原国际机场 情绪失控的时候,应该怎么做?
- 杨宗纬 台湾著名女星定居杭州,杨宗纬、王耀庆也移居,这就是落叶归根
- |台湾老少恋感情生变!李坤城林靖恩9年无子,男方收入降到谷底
- 台湾 96岁台湾老兵想回大陆,给亲侄子打电话:我没钱,你愿意养我吗?
- 对于现在年轻人来说 新房装修,婆家为什么不给彩礼?
- 理想搞笑GIF趣图:二哈:这家装修不行呐,还得我来
- 杜新枝放空炮袖手旁观,熊磊无奈只能自己开店,新店装修即将开业
- 结婚 婚后才知房子在小叔子名下,妻子搬空家具砸烂装修:搬进去结婚吧
- 护肤品 装修墙面,乳胶漆、硅藻泥、彩妆漆和墙纸怎么选?都有哪些特点?
- 台湾台湾美腿小姐,腿长110cm,模特身材,你敢相信这身材47岁?
