室内设计师苏哥|80平的三口之家,拥有超强的储物空间,再也不用为收纳发愁了
文章图片
文章图片
文章图片
文章图片
文章图片
文章图片
这个房屋是一个80平的两居室 , 房屋的面积不大 , 家里的常住人口有业主夫妻和他们可爱活泼的孩子 , 小孩子现在还没有上学正是活泼顽皮的时候 , 平时在家的时候也是经常会把家里弄得乱糟糟的 , 而女主人除了要整理孩子弄乱的家以外 , 还很喜欢“囤货” , 当然这也可能是很多初为人母的习惯 , 平时孩子需要用到的东西有很多 , 提前买好放在家里似乎也会安心很多 , 所以装修的时候女主人的要求就是需要更多的储物空间 , 让家里可以整洁一些 。
80平的三口之家 , 拥有超强的储物空间 , 再也不用为收纳发愁了
房屋户型:两室
房屋面积:80平方米
装修预算:10到20万元
所在城市:合肥
设计师:赵璐璐
主要建材:大理石、灰玻、线板、特殊色漆
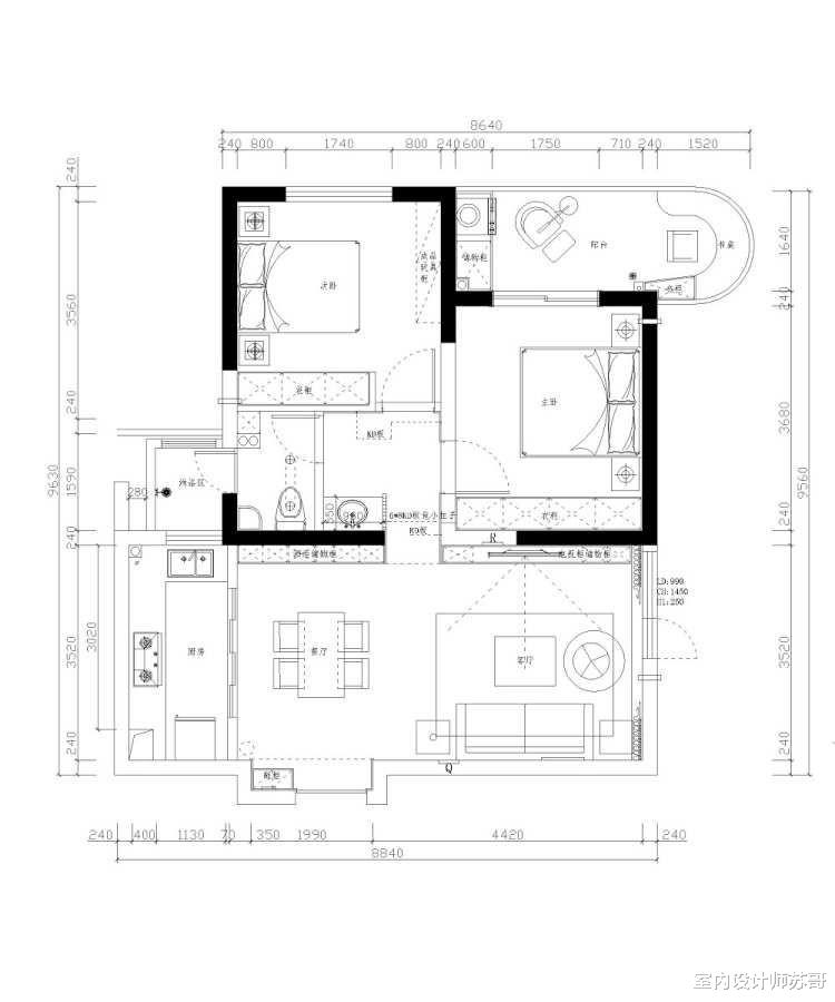
【户型图】
家里的使用面积不是很大 , 为了满足业主一家人的生活需求 , 装修的时候也对一些空间做出了调整和规划 , 将客厅和餐厅合并到同一个空间 , 让家里有更多的活动空间 , 同时增加家里的储物柜 , 来满足女主人日常的储物需求 , 让这个80平的房子拥有了超强的储物空间 , 以后业主也不用再为了收纳而发愁了 。
【客厅】
设计重点:利用电视柜储物
客厅选择了亮棕色的皮质的沙发 , 不仅有着很好的质感还不会很沉闷 , 起到了活跃空间的效果 , 客厅还准备了一个懒人沙发 , 方便移动和更好的休息放松 , 拼色的窗帘也是根据客厅的主色调来选择的 , 形成了一个更具统一性的空间 。
【室内设计师苏哥|80平的三口之家,拥有超强的储物空间,再也不用为收纳发愁了】
客厅的电视背景墙选择了蓝色和白色结合在一起的设计 , 亮蓝色的位置是开放式的储物柜和内嵌式的电视机区域 , 白色的位置则是封闭式的储物柜 , 这样一整面墙壁都可以用来储物 , 完美的解决了孩子玩具无处摆放的问题 。
【餐厅】
设计重点:墙壁收纳
餐厅的储物柜是和客厅背景墙同一个色系的设计 , 中间蓝色的区域也是开放式的可以用来放置摆件和杯子等物品 , 旁边白色的封闭式区域就可以用来放置女主人平时的“囤货”了 , 这样就不用担心家里储物空间不足的问题了 。
【厨房】
设计重点:黑白简约
厨房选择了简约的黑白搭配 , 上下不同颜色的橱柜也增强了空间的层次感 , 上面的橱柜还特意设计了一个玻璃门 , 这样常用的物品就可以放在里面 , 拿取的时候也会更方便 。
【卧室】
设计重点:顶天立地的衣柜
经验总结扩展阅读
- 因为室内养猫要注意什么你知道吗?你家猫咪在散养吗?
- 设计第241期(教程) 平面设计师逆袭之路,学完这些工作轻松找
- 头发 5款短发过渡期发型图鉴!不用设计师也好整理,轻松撑过卡脖期
- 进行保姆级设计师色彩攻略
- 发型换发型堪比整容,网红设计师示范大饼脸胖妹到“瓜子脸宋慧乔”
- 实时UI设计师好用的配色网站和实时预览技巧
- 护肤品 被包装劝退,却被品质折服,这些国产护肤品难道请不起设计师吗?
- 广西|广西一男子发现失联多日妻子和陌生男子在浴室内赤裸倒地而亡
- 已婚 50岁老总侵犯女秘书,办公室内持续输出,还强迫女秘书做特殊按摩
- 女神为了瘦,女人们极尽能事,为了瘦,设计师们的想象力变得丰富。