韩胖说装修|140㎡简约原木风,没有奢华的元素,却每个细节都让人感到惊艳

文章图片

文章图片

文章图片

文章图片

文章图片

文章图片

文章图片

文章图片

文章图片

文章图片
这是一套位于杭州的140㎡大户型 , 面对高昂的房价 , 能够买得起这么一套大房子 , 家底一般都是挺殷实的 。 这套新房采用简约原木风装修 , 并非舍不得花钱 。 而是好的装修效果 , 要符合房主的审美和生活习惯 。 只有让人感觉舒适 , 那才能有家的温馨感 。
房屋资料▼
房屋坐标:杭州
建筑面积:140㎡
装修风格:现代简约风格
装修费用:硬装25万左右
图片来源:小记
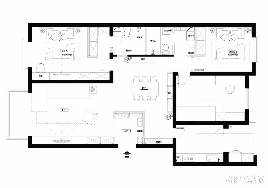
平面户型图▼
这套房子是三室两厅一厨两卫格局 , 因为空间足够大 , 每个功能区都能设计得游刃有余 。 户型方方正正 , 南北通透 , 客厅和厨房都带有阳台 。
入户玄关▼
入户有一个独立的玄关 , 为了和客餐厅有一个明确的划分 , 地板采用灰色的仿古瓷砖 。 一进门就被强大的收纳效果给圈粉了 , 白色柜门的玄关柜、鞋柜 。 不仅收纳功能强大 , 颜值效果也是非常在线 。
白色的柜门 , 和墙面的颜色浑然一体 。 白色的柜门和墙面 , 与地板的灰色调相互搭配 , 给人一种时尚清新的视觉感受 。 右手边的玄关柜底部 , 还有一排的双层鞋架 。 方便进出门的时候替换鞋子 , 不用每次都去翻鞋柜 。 中间是换鞋凳 , 换鞋子也更方便 。
客厅▼
玄关进来就是开放式的客餐厅 , 客厅的阳台直接打通 , 让整个客厅看起来非常的敞亮大气 。 灰色的沙发、灰色的大理石电视墙 , 定制的原木风电视背景墙 。 灰色调和原木色调互相融合 , 呈现出清新雅致的效果 。
整个客厅看起来简约又个性十足 , 天花板没有设计吊顶 。 电视墙的顶部是筒灯 , 沙发的上方是一排的轨道射灯 。 电视墙的电视柜连接着一套定制的原木柜子 , 收纳功能非常给力 。
给原木收纳柜来个正面的特写 , 两边都是原木门的收纳柜 , 中间是开放式的展示架 。 展示柜方便摆放一些装饰品、书本、古董、小盆栽等等 。
客厅的沙发背景墙没有做多余的造型 , 简单的乳胶漆而已 。 后期布置软装的时候 , 挂了一幅抽象的个性挂画上去做点缀 。
把客厅的阳台打通是一个明智的决定 , 安装上落地窗之后 。 客厅的视觉效果立马提高了接近一倍 , 主要是采光条件足够强大 , 视觉效果非常通透大气 。 除了自然光之外 , 天花板的萤火虫吊顶 , 轨道射灯 , 墙壁的臂杆灯 , 都可以提供充足的氛围和光照条件 。
经验总结扩展阅读
- 致我们人生中,那些说散就散的人
- 人群染发对身体有伤害吗?不妨直说:这几类人群可能不适合染发
- 阿富汗与不同国家商业体系
- 生活听语兮:大声说爱你,喜欢就大胆说出来
- 真正的友情,从不喧哗
- 深圳宝山技工学校│有些事,说出来,那都不是事!
- 直发 为什么说直发是纯欲天花板?那些直发女神都有什么发型秘诀呢?
- 换一种思维,换一种人生
- 会偷三种懒,享尽一生福
- 短发 女士发型别乱来,选对目标再裁剪,都说很不赖
