雪雀大家居 装修干货丨看完这篇学会所有装修改造知识

文章图片

文章图片

文章图片

文章图片

文章图片

文章图片

文章图片

文章图片

文章图片

文章图片
我 们遇到了很多客户 , 掏空了钱包买的房子 , 等收房的时候才发现原来自己买的房子设计的如此不合理……
为什么要对户型改动呢?
采光不好、
空间布局不适合、
房屋利用率很低......
【雪雀大家居 装修干货丨看完这篇学会所有装修改造知识】这对于动辄几万一方买来的房子 ,
如何极致地利用好每一平米?
每个问题都成为了装修人的心结 , 同时户型改造也成了打开他们心结唯一的一个办法 。
我们在户型改造中 ,
解决客户的功能需求永远是第一位 ,
主要通过从动线、采光、动静分区、
功能、通风、布局等方面来改造 。
关于户型改造技巧
户型改造重点
1.动线设计
端个菜要从厨房绕过卫生间?
进大门换鞋要绕过客餐厅 , 放到阳台上?
晒个衣服要绕着整个房子过道 , 才到晾晒区?
......
不要怀疑 , 这样的反人类的动线设计 , 在我们接触的案例比比皆是!
下面以我们设计过的客户案例举例 , 来说明动线如何设计 。 请记住家要住得舒适 , 动静分区很重要 。
1
动静分区设计要点
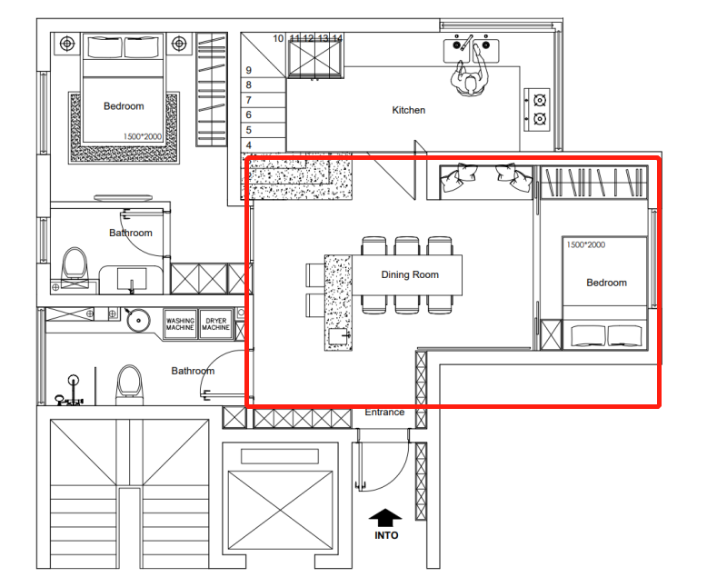
▲改造前 , 一开大门就是卧室 , 隐私暴露 , 玄关没有鞋柜 , 需要到阳台上换鞋非常不便 。
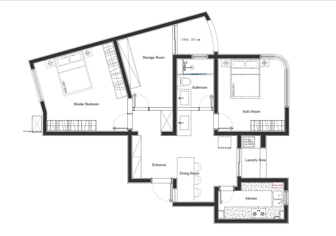
▲改造后 , 卧室改书房 , 门开向客厅 。 客人进门换鞋直接在玄关处 。 两个阳台打通后利用起来 , 整个客餐厅南北对流 , 视野更开阔 。
- 红色框→动(公)区:玄关、客厅、餐厅、厨房、阳台、客卫 。
- 蓝色框→静(私)区:卧室、主卫、书房 。
2
家居动线设计要点
2-1)家务动线:
家务动线越短越好 , 洗衣打扫尽量在一个空间完成省时省力 。
▲我们给客户单独设计了一个家务间 , 在这里各种清洁工具、扫地机器人、洗衣机烘干机以及各种杂物都可以收纳在这里 。
▲单独的家务间 。
传统的洗衣动线:卫生间→洗衣机→晒衣服→叠衣服;新的洗衣动线:卫生间→家务间 , 在家务间可以完成洗衣晾衣叠衣 , 甚至熨烫衣服所有工作 。
经验总结扩展阅读
- 大寒 等一场雪停,等一朵花开,只要心存热望,寒尽就是春生
- 充满遗憾的人生,你最大的遗憾是什么
- 差不多8年过去了,《爸爸去哪儿》的孩子们已经长大,你还能认出几个?
- 一个人开始变得强大的5种迹象
- 穿衣搭配 迪丽热巴高马尾+西装杀,可御可甜!网友大呼“迪总娶我!”
- 张萌:走出人生至暗时刻,我有三大方法
- 棕色童瑶的私服搭配挺“普通”,棕色大衣配贝雷帽简约大气,挺显气质
- 一个没太大能力又无学历的离异女人在深圳有房有车,未来会怎样?
- 上海容大:凝聚团队力量 铸造企业精神
- 母猫人会出现难产,猫也会,当你的猫遇上难产的问题时保大还是保小呢
